|
|
|
||||||||||||||||||
住むほどに感じるプロの業 |
||||||||||||||||||||
|
||||||||||||||||||||
|
||||||||||||||||||||
|
||||||||||||||||||||
|
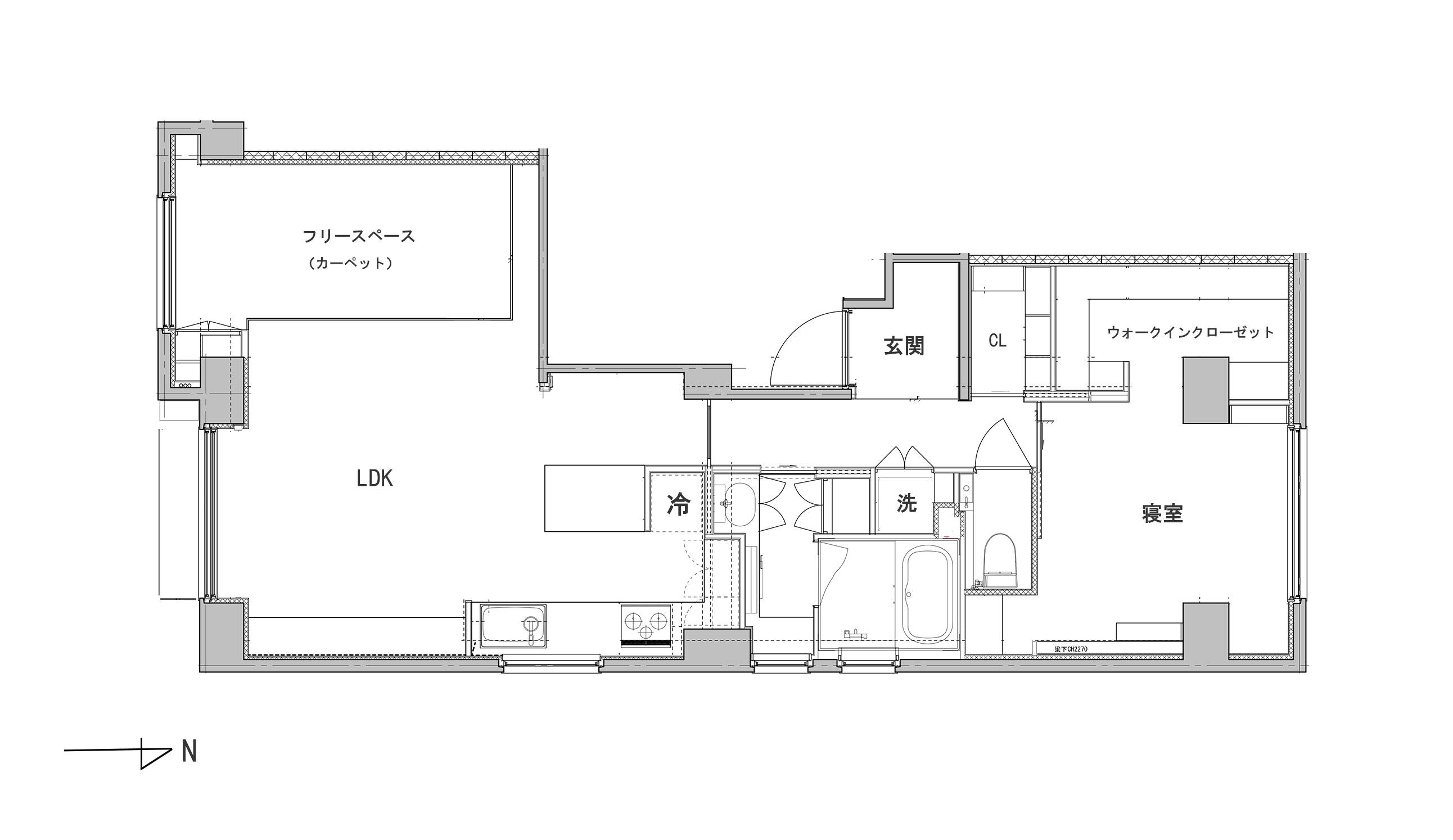
R不動産に何度も賃貸物件をご提供いただいているオーナーさんのご自宅です。 リフォーム会社にお勤めの売主さんが、自らの暮らしのために作り込んだ空間。 リビング天井のラワン合板、床材の切り替えによるゾーニング、レンガタイルの壁、寝室のベッドヘッド。デザインの素敵さはもちろん、隙間という隙間を収納に変える徹底ぶりからは、「自分が住む家だからこそ」の思想が伝わってきます。 2013年にフルリフォームを実施し、13年間この住まいで暮らしを楽しまれてきました。お子さんの成長をきっかけに、惜しまれつつの売却です。 「いつかまた中板橋に戻ってきます」と話されるほど、この街の住み心地は良好だったそう。池袋へのアクセスの良さ、大型スーパーや商店街、高速インターチェンジも近く、生活利便性の高さは初めて訪れる方にも伝わるはずです。春が待ち遠しかった石神井川の桜とも別れを惜しまれているようでした。 現状、カーペットの貼り替えとエアコンの交換は検討したいところ。それ以外は大きな改装をせず、住みながら少しずつ手を入れていくのも楽しそうです。 本マンションは自主管理につき、年に2回、共用部の清掃日があり。専用のごみ置き場はありませんので、行政の指定された日時に出すルールです。会計係も持ち回り制です。その分、管理費・修繕積立金は控えめ。住人の手で建物を育てていくスタイルです。よって、立派な管理体制のマンションをご所望の方にはお勧めしません。 「このマンションをもっと良くしていきたい!」 そんな気持ちを持てる方に、ぜひ住んでいただきたい物件です。 |
![]() |
|
| ダイニングテーブルとしても使えそう |
|
| カーペットはお好みの色に張り替えましょう |
|
| レンガタイル壁がアクセント |
|
| 南側にバルコニー |
|
|
| 価格 | 3,280万円 | 専有面積 | 65.08㎡ |
| 管理費 | 7,800円 | 修繕積立金 | 管理費に含む |
| 所在地 | 板橋区双葉町 | ||
| 交通 | 東武東上線「中板橋」駅 徒歩6分 | ||
| 建物構造 | 鉄筋コンクリート造 4階建て | 所在階 | 2階 |
| 築年 | 1982年 | 土地権利 | 所有権 |
| 敷地面積 | 216.10㎡ | 都市計画 | 市街化区域 |
| 用途地域 | 第一種中高層住居専用地域 | 建蔽率/容積率 | 60%/200% |
| その他費用 | 取引態様 | 媒介 | |
| 設備 | |||
| 備考 | ペット不可/地目:宅地/分譲会社:株式会社住宅建設/施工会社:株式会社住宅建設/管理形態:自主管理/総戸数:7戸/バルコニー面積:2.86㎡/現況:空室/引渡時期:即可/自転車置き場:各住人1台/人 | ||
| 情報修正日時 | 2026年4月8日 | 情報更新予定日 | 2026年4月23日 |
あなたにおすすめの物件


