|
|
|
||||||||||||||||||
緑に触れ、土を感じる【建築条件付き土地】 |
||||||||||||||||||||
|
||||||||||||||||||||
|
||||||||||||||||||||
|
||||||||||||||||||||
|
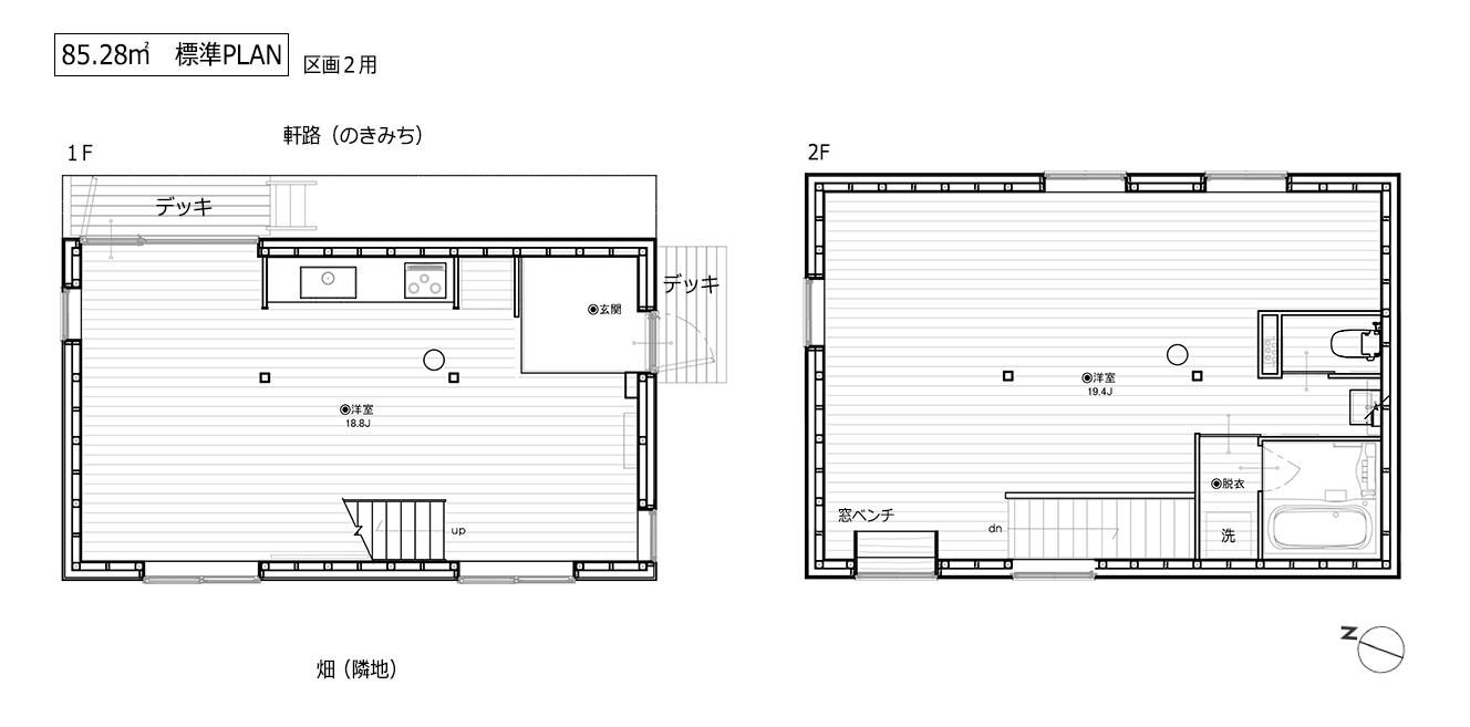
農地に囲まれたのどかな土地が、新しく分譲宅地として開発されます。 「広い土地が、細かく切られ、小さな家が密集して建つ。」その開発サイクルにどこか切なさを感じる人も多いと思いますが、人間が暮らしを営むには必要な活動なのかもと思うところもあり。この場所での開発は、少しでも街の景色を緑豊かに、そして土壌や環境はを守るように設計しようという志があり、人と地球が歩み寄りながらつくる住まいの形なのかな、と思いました。 農地に面した細長い開発地に、2列の住戸が並ぶような形で宅地が分譲されます。区画は全部で11。区画11は少し広めで土地価格は4,200万円。その他の土地価格は一律で3,450万円です。 北側には公道、東側には私道。南・西には農地が広がり、2列に並んだ住戸の外周に余白が生まれるのが魅力的。特に区画11に関しては、南・西に農地が広がり、東側には自分の庭がつくれるようになっています。 2列に並んだ住戸の間に細い軒道(のきみち)をつくり、緑に囲まれた通路となるような設計に。各区画の境には塀などを設けない条件としており、分譲地一体がみんなの庭のような形で広がるようになっています。プライバシーをしっかり確保するというよりは、住人同士が緩く繋がるようなかたちで、各住戸のウッドデッキも軒路に面するように配置される計画です。暮らしをオープンにし、コミュニティを育みたい人によさそうな、住まい方かなと思いました。 また、外から人を招きやすいように考えられており、自宅で小さな営みをしたいという人に良いような動線設計になっています。 建築条件付きの土地となっており、建物に関しては、指定の設計・施工会社が建築をすることが条件です。また外壁の仕様が決められており、選んだ土地区画に合わせて、建物の標準プランが決まっている形になります。 主要な区画は建物面積84〜90㎡のプラン。区画1•3•10は、小ぶりな64.46㎡のプラン。なお、区画3•10は別途、「舎庫」という離れを配置することが条件です。 建物はドミノ住宅といって、自由な間取りが可能な構造で建築されます。外周壁と床で構造上必要な強度を確保しているため、室内の構造体は、1〜2本の柱のみで成立し、各階が大空間となり、自由に間取りをプランできます。 建築費は、標準仕様でつくると、64.46㎡PLAN で3,520万円(税込)、84.29㎡・85.28㎡PLAN で3,850万円(税込)、90.90㎡PLANで3,960万円(税込)です。舎庫の費用は現在算出中です。 標準仕様の内装スペックとしては、杉の無垢床、シナ材の天井、壁はシックハウス対策に優れたモイスで仕上げます。キッチンはステンレス天板の造作タイプ。デザインのアクセントになる、窓ベンチの造作が1箇所つきます。2LDKや3LDKに部屋を区画する費用も標準仕様の中に含まれます。浴室・トイレ1個・洗面はもちろん、エアコン2台分も標準仕様につく設備です。 また、標準仕様の性能が高スペックになっています。「OMソーラー」という太陽の熱や空気を利用して、部屋を温めるエコシステムも標準仕様に。「HEAT20 G3グレード(現・断熱等級7)」「耐震等級3」の性能での建築となります。 設計・施工をするのは明治5年に創業した新座市の地元工務店。耐震性や断熱性にこだわり、安心と心地のよさを大切にした家づくりをしている工務店です。無垢材など自然素材を使い、年を重ねるたび美しくなる空間をつくることも大切にしています。新築でよく見る、ツルテカした新建材で構成された家ではないということが嬉しいです。 駐車場は各住戸についていて、区画1•3•5•7•9は1台分、区画2•4•6•8•10は縦列で2台分置けるようになっています。区画11は敷地が広いため、横並びで2台の駐車が可能となっています。 ちなみにこの駐車場は、地中で水脈をつくる構造でつくられ、昨今の水害にも備えた仕様。そして土と敷地に植えられた植物たちによって、夏の暑さを少し抑えてくれる役割も担っています。こういった取り組みにより、環境認証LEEDの認証が得られるよう現在打ち合わせを進めているのだとか。 なお、清瀬駅は西武池袋線の快速や準急が止まる駅で池袋までは電車で約20分ほど。東京に程近いながら、農地が多く残るエリアで長閑な空気感が落ち着くエリアです。 最近のR不動産では、コーポラティブビレッジの新築企画も多く、どれがいいのかわからない、という方も多いかもしれないですが、まずは説明会に参加してみて、イメージを具体的にしてみてはいかがでしょうか? 直近で12月21日(日)・1月11日(日)・1月18日(日)のいずれも13:00から説明会を開催予定です。もちろん、このタイミングが合わない場合には個別での事業説明の機会を調整いたします。 〈募集区画〉 区画1 敷地103.39㎡ 土地価格3,450万円 建物64.46㎡PLAN 区画2 敷地129.84㎡ 土地価格3,450万円 建物85.28㎡PLAN 区画3 敷地106.39㎡ 土地価格3,450万円 建物84.29㎡PLAN 区画4 敷地132.84㎡ 土地価格3,450万円 建物90.90㎡PLAN 区画5 敷地106.39㎡ 土地価格3,450万円 建物64.46㎡+舎庫PLAN 区画6 敷地132.84㎡ 土地価格3,450万円 建物90.90㎡PLAN 区画7 敷地106.39㎡ 土地価格3,450万円 建物84.29㎡PLAN 区画8 敷地132.84㎡ 土地価格3,450万円 建物90.90㎡PLAN 区画9 敷地106.39㎡ 土地価格3,450万円 建物84.29㎡PLAN 区画10 敷地132.83㎡ 土地価格3,450万円 建物64.46㎡+舎庫PLAN 区画11 敷地165.09㎡ 土地価格4,200万円 建物84.29㎡PLAN ※建物の標準PLANは参考です。イメージパースやイメージ写真は実際の内容とは異なる可能性があります。 ※建物の標準PLANは価格の変更がある場合がございます。 ※こちらの物件は仲介手数料が発生いたしません。 ※敷地の環境を守るため、植栽剪定や道路街路灯の管理費として月額5,000円(予定)を想定しています。 |
![]() |
|
| 畑だったこの場所を宅地として分譲していきます |
|
| 完成イメージ。黒い建物群が今回の分譲地。上空から見ると3方向が農地に囲まれた、のどかな環境です |
|
| 完成イメージ。床は杉の無垢材、天井はシナ材、壁はモイスが標準仕様。造作棚はオプションですが、内装に合わせて大工さんにオーダーができるのが嬉しい |
|
| 参考写真。外観はガルバリウム鋼板をメインにしつつ、一部を杉板張りにしたデザインとなります |
|
|
| 価格 | 3,450万~4,200万円 | 専有面積 | |
| 管理費 | 5,000円 | 修繕積立金 | なし |
| 所在地 | 埼玉県新座市新堀1-14 | ||
| 交通 | 西武池袋線「清瀬」駅 徒歩15分 | ||
| 建物構造 | 木造 2階建て | 所在階 | 1-2階 |
| 築年 | 2027年 | 土地権利 | 所有権 |
| 土地面積 | 103.39㎡~165.09㎡ | 都市計画 | 市街化区域 |
| 用途地域 | 第一種中高層住居専用地域 | 建蔽率/容積率 | 60%/200% |
| その他費用 | 取引態様 | 該当せず | |
| 設備 | 上下水道/区画1・2のみ都市ガス可(オプション対応) | ||
| 備考 | ペット可/地目:宅地/分譲会社:増木工業株式会社/施工会社:増木工業株式会社/接面道路:東側私道(幅員約6m)・北側公道(幅員約6m・区画1,2のみ)/総開発面積:1368.66㎡/2026年9月建物着工予定・2027年3〜5月建物竣工予定/庭付き/バイク置場あり/駐車場あり/住居兼事務所可/新築/楽器演奏可 | ||
| 情報修正日時 | 2025年12月16日 | 情報更新予定日 | 2025年12月31日 |
あなたにおすすめの物件


