|
|
|
||||||||||||||||||
月の質感 |
||||||||||||||||||||
|
||||||||||||||||||||
|
||||||||||||||||||||
|
||||||||||||||||||||
|
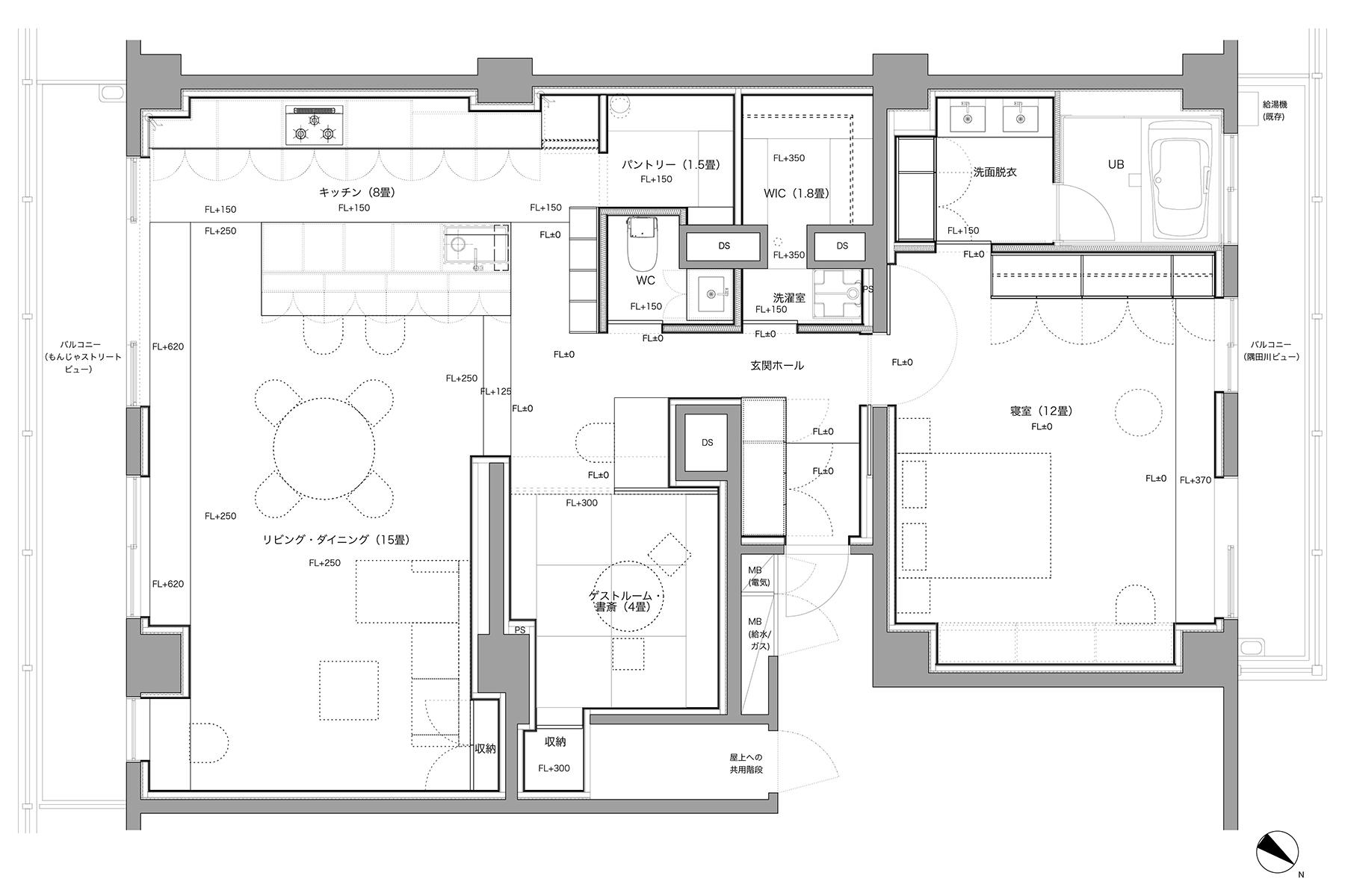
11階の最上階にある約114㎡のマンションの一室を、2026年にフルリノベーション。異なる素材を使いつつ、色を統一してあるのが最大のポイントです。 フルリノベーションにより出来上がった空間は、爽やかで落ち着いた雰囲気。足を踏み入れるとわかるのですが、室内は「静か」というより「静寂」という言葉が合うような、凛としたものを感じます。 仕上材は一見、同じような色ですが、漆喰とモルタルを混ぜた左官材やコルクや畳、キッチンの自然石や家具の面材、ソファやハニカムブラインドなど、すべて異なる質感をもった材料で構成されています。色は似ているのに触れるとそれぞれ質感が違う。さわる・歩く・座るといった体験が楽しくなる、そんな空間です。 間取りは、和室も部屋に含めると2LDK。広々としたLDKと寝室、ゲストルームにも使える和室、景色も楽しめる浴室と、それぞれの部屋に特徴があります。 まず、LDKは約23畳のゆったりとした空間。キッチン側の高さとリビング側の高さがちょうど良くなるように、わざと床を上げているのが特徴です。 床を上げることで窮屈になりそうですが、天高は約2.4m確保されているので、そうは感じません。むしろ、天高はいい塩梅で、室内全体の色が統一されているからか、包み込まれるような感覚を持ち、心が落ち着く空間だと思いました。 目を引くのは窓際には備え付けられたソファ。これがまた腰掛けると立ち上がりたくなくなる心地よさ。室内を向いて座るので、リビングやキッチンにいる家族や友人と自然と会話が生まれる装置になっています。 ちなみに、窓の一角にデスクスペースが設けられています。南東向きの窓から入ってくる光によって、仕事や読書がはかどりそう。いろんな居場所があって、気分や使い方で使い分けるのが楽しそうです。 キッチンも広々とした対面式で、食洗機とワインセラーがついています。これはもはや「ここに人を呼んでワイワイ楽しんで」と言っているようなものですね。冷蔵庫やパントリーは奥にまとまっていて、あまり視界に入らないようになっているのは嬉しいポイントではないでしょうか? 玄関を挟んで北西側にあるのは約12畳の寝室、その奥に洗面脱衣室と浴室。こちら側は、窓から隅田川を眺めることができるのもポイント。ゆったり流れる水面や行き交う船、夜景を楽しむことができます。 また、寝室にはLDKと同様に備え付けのソファが。また、壁にまとまった収納の一角にデスクスペースもあります。「寝る」だけではなく、「寝る前にくつろぐ」、「メイクや身支度をする」スペースが確保されているのが、余裕を感じます。 もちろん、収納量は申し分なし。寝室の収納だけではなく、洗濯機置き場の奥にウォークインクローゼットもあるので、家族全員の荷物は収納できると思います。 さら、寝室に奥にある浴室にも特徴が。浴室はこれまでの部屋とは打って変わって黒が基調なのです。浴槽でゆったりするだけではなく、腰掛けて外の景色を楽しむことができる設計になっているのが、憎いところです。 極めつけは、ペット飼育可能という点とこの部屋の所有に駐車場1区画も付いている点。 ペットは中型犬程度または猫を合計2頭まで飼育可能。隅田川テラスが近いので、散歩コースには困らなさそう。ちょっと足を伸ばして対岸の築地まで散歩がてら買い物に行ったりするのも楽しそうです。 また、この部屋に付随する駐車場は、大きさが幅約2.2m・奥行き約4.6m(タイヤ留めまで約3.7m)・高さ約2.2m。普通乗用車やコンパクトSUVくらいまでなら駐車することが可能そうです。月々2,000円の駐車場管理費がかかりますが、この金額で駐車場を利用できるのは嬉しいポイントではないでしょうか? ここは中央区月島。駅からもんじゃストリートを抜けてた先の、隅田川沿いにあります。マンションは古き良きマンションで、部屋は最上階にあります。月島や勝どき界隈ではマンション建設がいくつも進んでいますが、このマンションの周りには昔ながらの細い路地や長屋も残っています。そこには個人で営む飲食店もあって、まちが今も元気な様子が見て取れます。 この広さであれば、もうひと部屋つくる工事を行いそうですが、あえてこの間取りにしています。想定しているのは「ゆったりとふたり暮らし」や「東京に来た際のお家」といった、ちょっと大人な暮らし方。 和室は子ども部屋として利用すれば家族世帯にもいい物件ですが、子どもが増えたりした際にどう使うか考えないといけなくなるかもしれません。 いずれにせよ、ひと味違った、ディテールまでこだわって作られた空間を探していた方にぜひ。 設計:山野井靖建築事務所 |
![]() |
|
| 壁と天井は漆喰とモルタルを混ぜた左官材で仕上げ、あえて質感を強調しています。天井はまるで月面のような雰囲気です |
|
| 広々としたキッチン。対面式で、換気扇頭は壁側に寄せておるので開放感があります |
|
| 窓際に備え付けられたソファがいいんです。ゆっくりくつろげる場所で、サイドテーブルなどを用意すれば、ちょっとした仕事もできちゃいそうです |
|
| 隅田川沿いにある古き良きマンション。その最上階にこの部屋はあります |
|
|
| 価格 | 2億1,800万円 | 専有面積 | 114.07㎡ |
| 管理費 | 20,970円 | 修繕積立金 | 20,750円 |
| 所在地 | 中央区月島 | ||
| 交通 | 有楽町線・都営大江戸線「月島」駅 徒歩6分 | ||
| 建物構造 | 鉄骨鉄筋コンクリート・鉄筋コンクリート造 11階建て | 所在階 | 11階 |
| 築年 | 1982年 | 土地権利 | 所有権 |
| 敷地面積 | 3,365.56㎡ | 都市計画 | 市街化区域 |
| 用途地域 | 第二種住居地域 | 建蔽率/容積率 | 80%/400% |
| その他費用 | 分譲駐車場管理費:2,000円 | 取引態様 | 媒介 |
| 設備 | 公営水道・公共下水・都市ガス/エアコン4台(リビングダイニング2台、和室1台、寝室1台)/ガスコンロ4口/食洗機/ワインセラー/追いだき/浴室乾燥機/ウォシュレット | ||
| 備考 | ペット可/分譲会社:大洋住宅経営株式会社・大東通商株式会社/施工会社:鹿島建設株式会社/管理会社:アズマビルサービス株式会社/管理形態:全部委託/総戸数:58戸/現況:空室/引渡時期:即可/2026年3月にフルリノベーション工事実施/壁芯面積:114.07㎡、登記簿面積:108.88㎡/自転車置き場あり(空きあり、1台目:年額3,000円、2台目:年額5,000円)/バイク置場あり(空きなし、125cc以下:月額3,500円、125cc超:月額4,000円)/駐車場あり(共用駐車場、空きあり、普通車用:月額19,000円、大型車用:月額22,800円)/楽器演奏可 | ||
| 情報修正日時 | 2026年3月17日 | 情報更新予定日 | 2026年3月31日 |
あなたにおすすめの物件


