|
|
|||||||||||||||||||
RとLと平和な眺め |
||||||||||||||||||||
|
||||||||||||||||||||
|
||||||||||||||||||||
|
||||||||||||||||||||
|
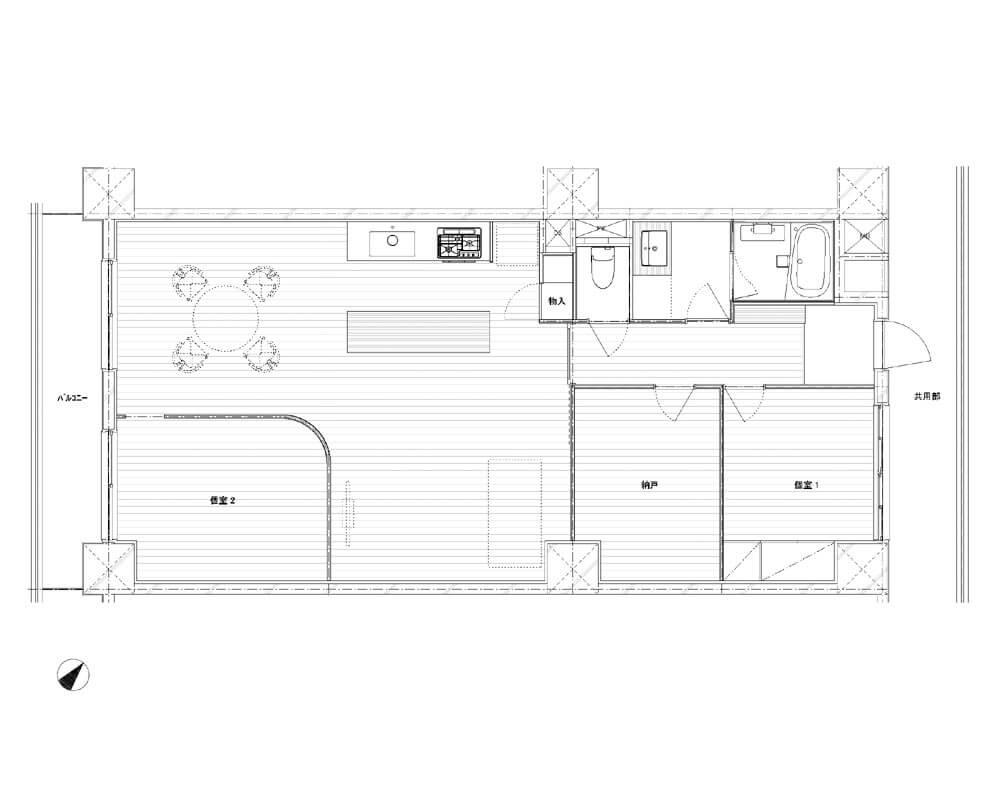
わざとらしさのない、馴染みやすいリノベーション。 駅アクセスのよいレトロなマンションで、広々としたリビングと愛らしいキッチン、そして平和な眺めもついてくる部屋の紹介です。 リビングでぱっと目を引いたのは、Rのついた壁面とアーチ状に切り取られた入口です。日本の住宅ではあまり使われない曲線を取り入れてみたら、空間は一気にやわらかな表情を見せてくれるんですね。 L字形になったリビングは、キッチンを挟んだ両サイドで雰囲気ががらりと変わります。日だまりで気分よく過ごせそうな光のコーナーと、心を落ち着けて映画や読書に耽りたくなるような陰のコーナー。2面性のあるスペースを、自分らしく使いこなしてもらえたらうれしいです。 南西を向いたバルコニーの視界は、抜けはなくとも、目の前が戸建なので圧迫感はありません。土の庭や植栽の木々を見下ろしながら、季節を感じたり、空を仰ぐこともでき、ほどよく平和な眺めなんです。 全面に敷かれたパーケットフローリングは、キッチンのグリーンのタイルとも好相性。大きなカウンターは即席でカフェになったり、夜な夜なバーになったり、家での過ごし方にアイデアを与えてくれます。 リビングから玄関の間には、バスとトイレと個室が2つ。1つめはクローゼット付きの主寝室で、もう1つは納戸扱いの窓がない部屋。収納が少ない家なので、ウォークインクローゼットにしてしまうか、光が一切入らずぐっすり眠れそうだから、敢えて寝室にしてもいいのかも。 今回のフルリノベーションで窓が全て二重サッシになり、断熱性能は少し上がったはずで、同年代の建物で想像する暑さ寒さに比べれば、夏冬の過ごしやすさに期待できそう。ちなみにこのマンション、築年数と部屋の面積に対して管理修繕費が抑えめなことと、2帖程度のトランクルームが付いてくるありがたさも、見逃せないポイントです。 国領は駅前と徒歩圏内にショッピングモールがあり、何でも揃っている調布駅にも自転車で行ける便利さと、同時に地域の農家さんから採れたての野菜や果物を直接買えるようなローカル感もよく、ファミリーが暮らす環境としてちょうどいい落としどころ感があって、京王線になじみのある人が家を買うときに、選択肢に入ってきやすい場所です。 周辺の新築や築浅マンションはだいぶ価格が上がってきている中、都内はもう無理かもと諦めかけている人に。リノベーション済みでこの広さこの環境を得られるなら、意外とアリな選択肢じゃないですか? |
![]() |
|
| じゃーん、ゆったり広々 L字形のリビング |
|
| キッチンの先に窓際の日だまりコーナー |
|
| リビングと隣り合う個室はアーチ状の入口から |
|
| 明るさを生かし日中過ごす書斎や子どもの遊び場にも |
|
|
| 価格 | 5,280万円 | 専有面積 | 81.90㎡ |
| 管理費 | 11,400円 | 修繕積立金 | 14,590円 |
| 所在地 | 調布市国領町 | ||
| 交通 | 京王線「国領」駅 徒歩4分 | ||
| 建物構造 | 鉄筋コンクリート造 7階建て | 所在階 | 2階 |
| 築年 | 1975年 | 土地権利 | 所有権 |
| 面積 | 都市計画 | 市街化区域 | |
| 用途地域 | 近隣商業地域/第一種中高層住居専用地域 | 建蔽率/容積率 | |
| その他費用 | 取引態様 | 媒介 | |
| 設備 | エレベーター | ||
| 備考 | ペット不可/分譲会社:第百商事株式会社・国際興産株式会社/施工会社:安藤建設株式会社/管理会社:日本ハウズイング株式会社/管理形態:全部委託/総戸数:185戸/現況:空室/引渡時期:相談/駐車場空きなし | ||
| 情報修正日時 | 2026年3月30日 | 情報更新予定日 | 2026年5月2日 |
あなたにおすすめの物件


