|
|
|
||||||||||||||||||
山麓の棲み家 |
||||||||||||||||||||
|
||||||||||||||||||||
|
||||||||||||||||||||
|
||||||||||||||||||||
|
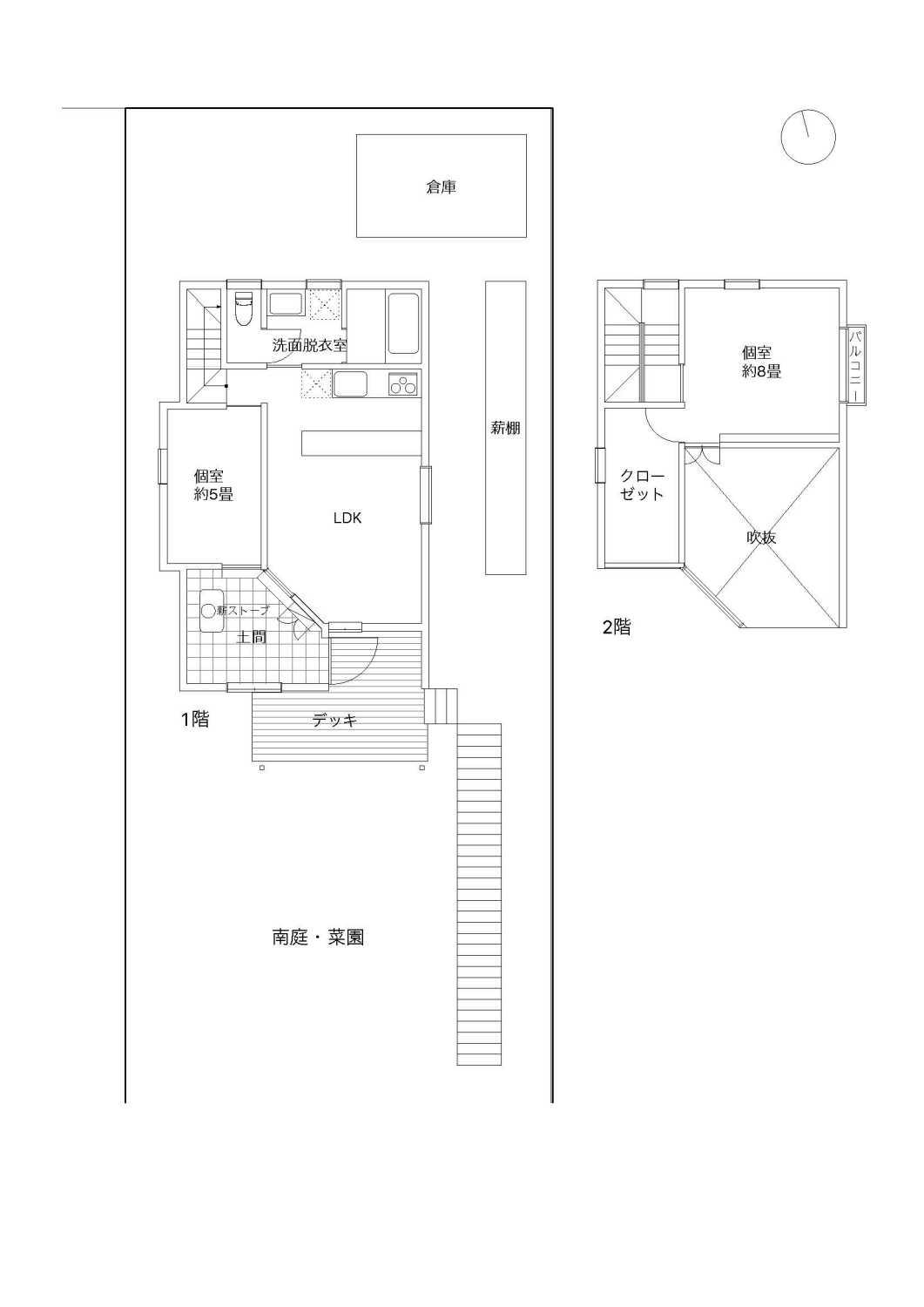
北アルプスの麓、安曇野にたたずむ端正な家。山の気配を近くに感じながら、菜園と室内を行き来するように暮らせる物件です。 敷地面積に対してコンパクトに抑えられた居住空間は、2人暮らしまでであれば過不足ない印象。1階には吹き抜けのリビングとコンパクトな個室、水まわり。2階には、視線の先に山の稜線を望む個室とクローゼット、小さなバルコニーが配置されています。 菜園と建物のあいだには屋根のかかったウッドデッキが設けられ、屋外での作業と室内の生活がゆるやかにつながる設計になっています。 シンプルながら、細部までぬかりなく選び抜かれた家具や設えも、この物件の大きな魅力です。天井にはさわらの無節板、壁は珪藻土、床には栗のフローリングを使用。キッチンは地元の家具作家による造作、照明も金工作家のものが取り入れられており、空間全体に統一感と質の良さが感じられます。 モダンなデザインの薪ストーブは、デンマーク・HETA社製のもの。室内の随所にパネルヒーターも設置されているので、冬の厳しい安曇野でも心地よく過ごせそうです。 パネルヒーターは、冬の冷え込みが厳しい朝でも、あらかじめタイマー設定しておけば、起きたときから暖かく過ごせます。午後に冷え込む日は、薪ストーブに火を入れて、じんわりと暖を取りながら冬を楽しめそうです。 敷地は南側道路に面した細長い形状で、手前から駐車スペース(3台分)、菜園、奥に母屋という配置。澄んだ空気に日当たりの良い菜園は、植物もよく育ちそう。バックヤードには物置もあり、庭仕事も生活の楽しみのひとつとなりそうです。 物件のある穂高有明は、北アルプスのなかでも、とりわけ常念岳を身近に感じられるエリア。近隣には宅地と別荘地が混在しており、飲食店やスーパー、病院なども多いことから、自然豊かな場所で暮らしを始める第一歩として無理なく馴染めそうな環境です。 また、車で20分程の場所に安曇野ICがあり、物件から東京までは約3時間、松本市までは約30分と、他地域へのアクセスの良さも魅力です。 季節の移ろいを感じながら、自分たちのペースで生活を組み立てていきたい方におすすめしたい一軒です。 |
![]() |
|
| 建物をコンパクトに、南側に贅沢な菜園とウッドデッキを配置しました |
|
| 1階:天井が高く開放的なLDK。壁、天井、床と天然素材にこだわった素敵な空間。金工作家さんの照明が素敵な空間 |
|
| 1階:天井は無垢さわら、壁は珪藻土、床には信州栗の無垢フローリングを使用。質感の良い空間が広がっています |
|
| 2階からの眺望はこんなにも気持ちよく、山々が遠くに連なっています |
|
|
| >>大きな地図で見る  |
| 価格 | 3,800万円 | 建物面積 | 73.07㎡ |
| 管理費 | なし | 修繕積立金 | なし |
| 所在地 | 長野県安曇野市穂高有明 | ||
| 交通 |
JR大糸線「穂高」駅 4.7㎞(車約11分) 安曇野IC 11㎞ |
||
| 建物構造 | 木造 2階建て | 所在階 | |
| 築年 | 2020年 | 土地権利 | 所有権 |
| 敷地面積 | 337.74㎡ | 都市計画 | 市街化区域 |
| 用途地域 | その他(無指定) | 建蔽率/容積率 | 60%/100% |
| その他費用 | 取引態様 | 媒介 | |
| 設備 | 公営上水道/合併浄化槽/中部電力/プロパンガス/パネルヒーター/薪ストーブ/エアコン3台/シーリングファン/ウッドデッキ | ||
| 備考 | ペット可/地目:宅地/私道負担:なし/総戸数:1戸/現況:空室/引渡時期:相談/南側幅員約5mの公道に約9.7m接道/土砂災害警戒区域/住宅建設瑕疵担保責任保険付き(令和12年9月まで)/地盤保証書付き(令和12年4月まで)/敷地内に薪だなと倉庫(未登記)有り/庭付き/バイク置場あり/駐車場あり/住居兼事務所可 | ||
| 情報修正日時 | 2026年4月28日 | 情報更新予定日 | 2026年5月12日 |
あなたにおすすめの物件

