|
|
|||||||||||||||||||
惹かれる奥行き |
||||||||||||||||||||
|
||||||||||||||||||||
|
||||||||||||||||||||
|
||||||||||||||||||||
|
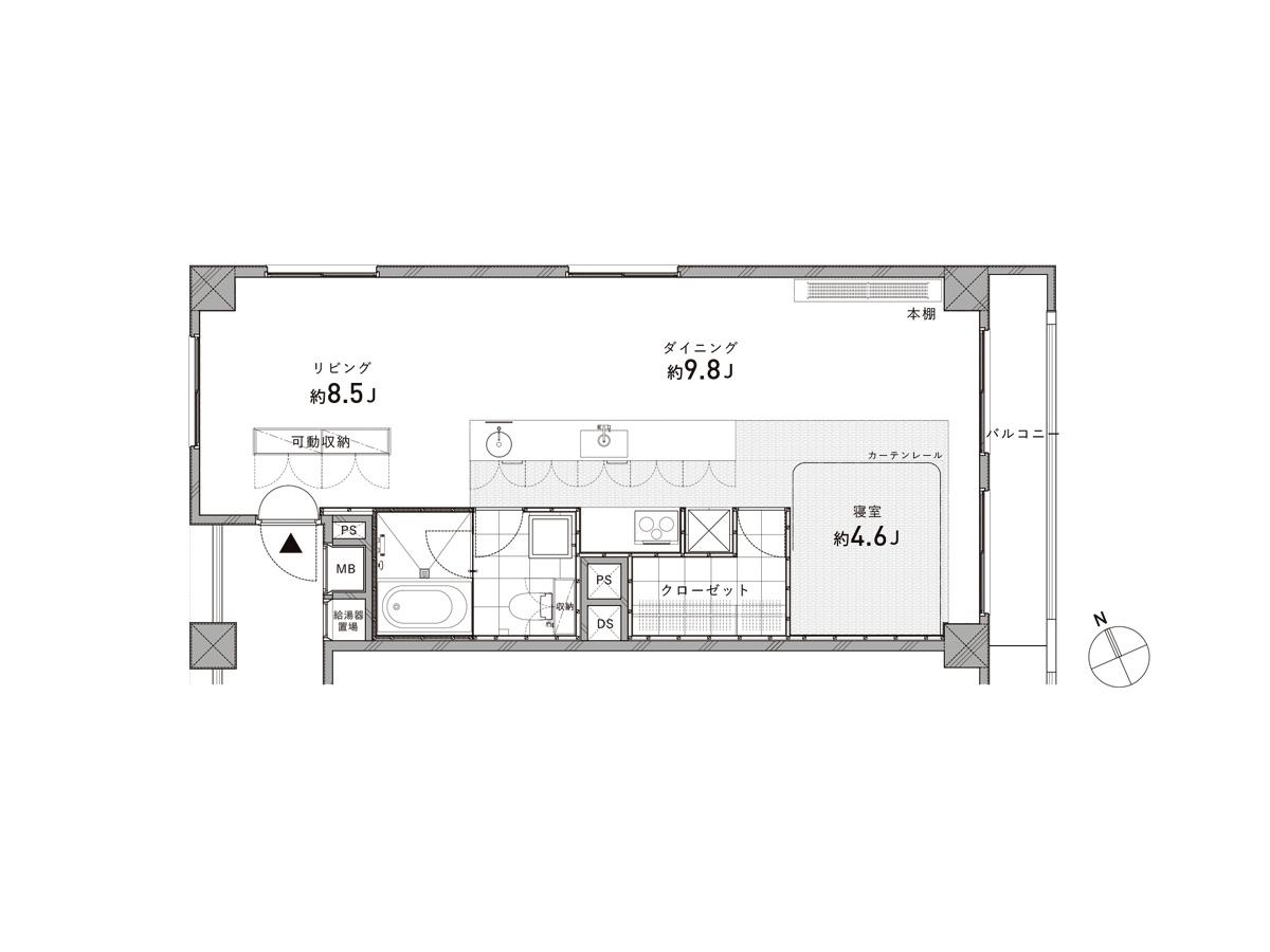
建築家のオーナーが細部までデザインした濃密な空間。なんだかドラマのワンシーンのような日々が始まりそうです。 中央にキッチンと水回りを据え、東西に伸びた間取り。さんさんと光が降り注ぐ部屋ではありませんが、そのぶん、やわらかく差し込む光と陰影の美しさが際立ちます。 塗装と左官、グレートーンの床材でクールに整えたベースに、木の温もりが溶けこむ内装。なめらかな手触りの合板に包まれた寝室にいると、張りつめた心も自然とほぐれます。 玄関側にある可動収納は、この部屋を使いこなすための大事なパーツ。写真の配置なら、こもれる書斎のような居場所に。間取り図の配置なら、西からの光も部屋の奥まで届き、空間全体をのびのびと使えます。暮らし方に合わせて、柔軟に組み替えてもらえたら。 ちなみに可動収納の裏面は、スクリーンとしても使えます。テレビの代わりにプロジェクターを導入するのがおすすめです。 場所は東小金井駅と武蔵小金井駅のあいだ。周辺は落ち着いた住宅街で、近くにはOKストアがあり、緑豊かな武蔵野公園へも自転車で約6分。生活しやすく、都内ながらも穏やかな暮らしが想像できます。 マンションの端っこにある区画で、上はほとんどがバルコニー、下は駐輪場になっているので、ほかの区画と面するのは隣だけ。生活音の心配は少ないですし、奥行きのある秘密基地のような感じも、個人的にかなり好みです。 |
![]() |
|
| 東側の窓際。小上がりをカーテンで仕切る寝室に |
|
| 東側の窓から |
|
| 玄関前にある可動収納の配置によって、空間をつなげたり分けたりできる |
|
| マンション外観 |
|
|
| 価格 | 4,850万円 | 専有面積 | 62.18㎡ |
| 管理費 | 11,370円 | 修繕積立金 | 17,055円 |
| 所在地 | 小金井市中町 | ||
| 交通 |
中央線「武蔵小金井」駅 徒歩13分 中央線「東小金井」駅 徒歩15分 |
||
| 建物構造 | 鉄筋コンクリート造 5階建て | 所在階 | 2階 |
| 築年 | 1977年 | 土地権利 | 所有権 |
| 敷地面積 | 1,768.99㎡ | 都市計画 | 市街化区域 |
| 用途地域 | 第一種中高層住居専用地域 | 建蔽率/容積率 | 60%/200% |
| その他費用 | 取引態様 | 媒介 | |
| 設備 | エレベーター | ||
| 備考 | ペット不可/地目:宅地/管理会社:株式会社サニーライフ/管理形態:一部委託(日勤)/総戸数:57戸/現況:居住中/引渡時期:相談/駐輪場あり(空きあり、年額1,200円)/駐車場あり(空きなし、月額15,000円) | ||
| 情報修正日時 | 2026年3月2日 | 情報更新予定日 | 2026年5月5日 |
あなたにおすすめの物件

