|
|
|
||||||||||||||||||
コンパクトに心地よく |
||||||||||||||||||||
|
||||||||||||||||||||
|
||||||||||||||||||||
|
||||||||||||||||||||
|
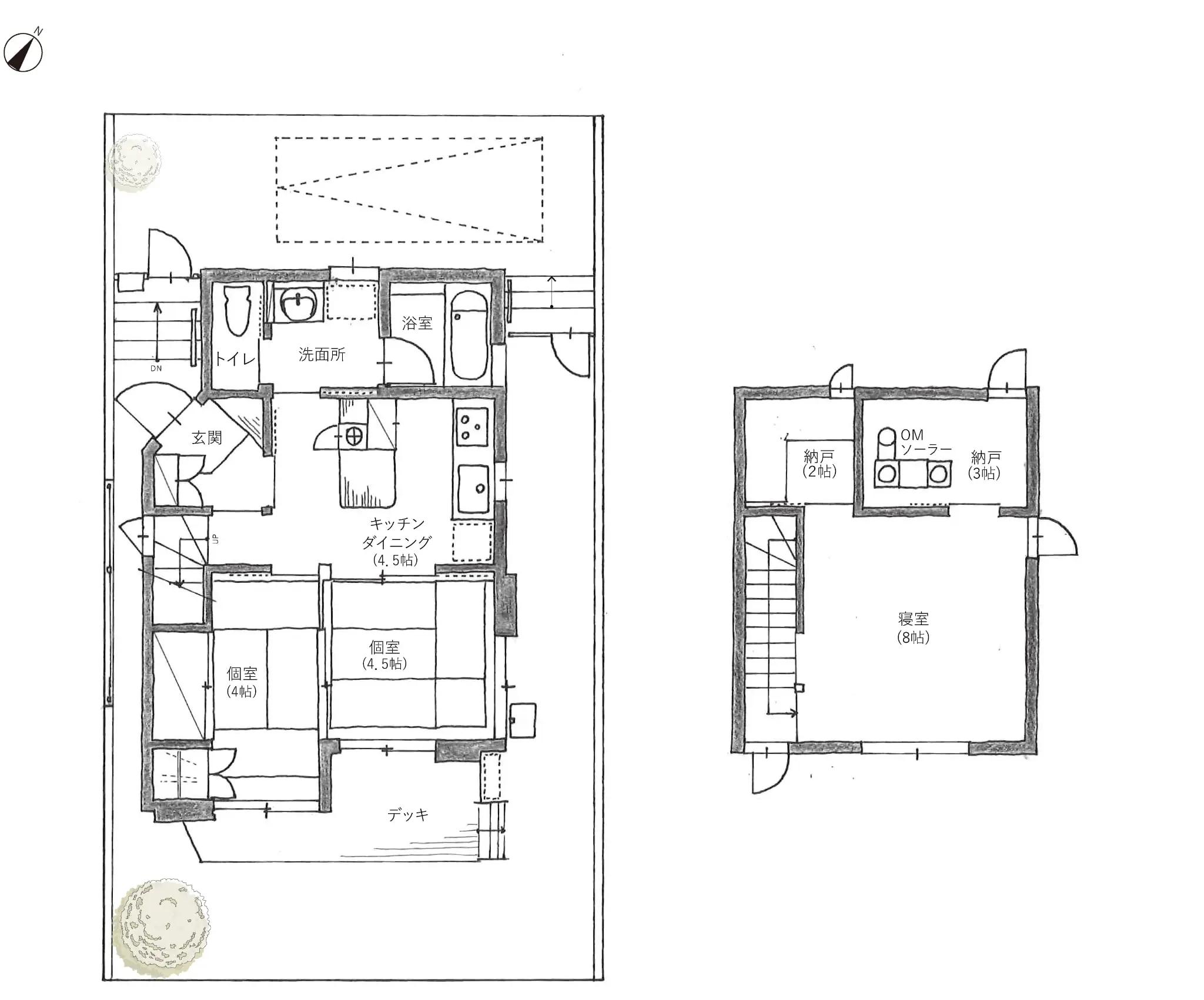
コンパクトながらもしっかりとした戸建です。注文住宅ならではの建材が使われており、経年変化を楽しむことができます。 僕らの仲間の工務店が手がけ、2008年に建てられた物件。築18年ながら丁寧に、大切に扱われてきたことが容易に想像できる室内状況です。 キッチンや浴室など、生活感や使用感が出がちな部分はほんとに築18年なの?と思うほどに元気な状態。 元々は現オーナーのお母さんがひとりで住んでいました。サイズや間取り的に、お子さんがいるご家庭というよりは単身、もしくは2名までの暮らしがしっくりきます。 さすがに1階の床や畳は若干の使用感があります。が、設備類はそのまま使えると思います。また2階は、ほぼ物置としてしか使われていなかったであろうな、ということは現地で床の状態を見るとよく分かります。 1階はダイニングと水回り、そして4.5畳と4畳の部屋。住んでいた家族構成的に部屋を分けたのだと思いますが、新たに住むにあたってはいっそ戸を取り払って、大きなリビングとして使いたい印象。 南向きで庭もあるので、日当たりは上々だし。この際、思い切って改装して、床を畳からフローリングに切り替えつつ1室にした方が気持ちよさは上がるはず。 この戸建てを建てた工務店が近隣にあるので、改装についてもいろいろ相談しやすいと思います。一番この建物をわかっている工務店が地元にしっかり残っているということも、この物件をお勧めしたい理由のひとつです。 2階は8畳の洋室と、2つの納戸。とくに2畳の納戸は窓もついているので閉塞感はなく、集中できる書斎やワークスペースにしてみるのも楽しいと思います。 最寄駅からはけっこう距離があります。通勤を毎日する方よりは、家で仕事をするタイプの方にはちょうどよく響く予感がします。職住一体でペットと暮らしつつ週末は車でどこかへ、そんな妄想を叶えてみませんか。 1階:40.16㎡ 2階:24.84㎡ 合計床面積:65.00㎡ |
![]() |
|
| 南側にある庭のおかげで日当たりは上々(家具などは撤去されます) |
|
| 室内は心地よい経年変化がある |
|
| コンパクトに、かつ必要十分に仕上げられている キッチンは築18年と思えないほどきれいな状態 |
|
| 1階は水回りとダイニング、そして4.5畳と4畳の部屋 |
|
|
| 価格 | 3,850万円 | 建物面積 | 65㎡ |
| 管理費 | なし | 修繕積立金 | なし |
| 所在地 | 東村山市青葉町 | ||
| 交通 |
西武新宿線「東村山」駅 徒歩24分 西武新宿線「久米川」駅 バス5分 「恩多町五丁目」バス停 徒歩9分 |
||
| 建物構造 | 木造 2階建て | 所在階 | |
| 築年 | 2008年 | 土地権利 | 所有権 |
| 敷地面積 | 103.16㎡ | 都市計画 | 市街化区域 |
| 用途地域 | 第一種低層住居専用地域 | 建蔽率/容積率 | 50%:100% |
| その他費用 | 取引態様 | 媒介 | |
| 設備 | |||
| 備考 | ペット可/地目:宅地/施工会社:相葉建設株式会社/現況:空室/引渡時期:相談/OMソーラーシステム暖房あり/駐車スペースあり(1台)/土地面積103.16㎡(公簿) 他、私道持ち分あり(32.71㎡)/庭付き/バイク置場あり/駐車場あり/住居兼事務所可 | ||
| 情報修正日時 | 2026年3月1日 | 情報更新予定日 | 2026年3月15日 |
あなたにおすすめの物件


