|
|
|
||||||||||||||||||
小麦畑を未来へつなぐ |
||||||||||||||||||||
|
||||||||||||||||||||
|
||||||||||||||||||||
|
||||||||||||||||||||
|
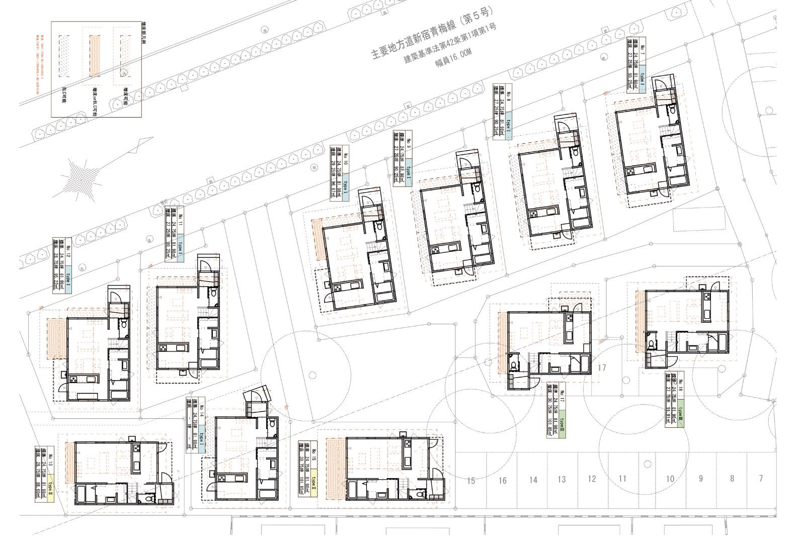
※これは通常の売買物件情報ではありません。コーポラティブビレッジの参加者募集のお知らせです。 舞台は東久留米市。駅からは少し距離のある立地ですが、だからこそ守られてきた環境があります。空が広く、風が抜ける。深呼吸すると、ちゃんと空気が美味しい。 この地で300年にわたり農業を営んできた秋田家。江戸時代から続く農家の12代目、秋田茂良さんが守ってきた畑の一角にある小麦畑が今回の計画地です。 相続をきっかけに手放さざるを得なくなったこの土地を、「細かく分割し、敷地いっぱいに建物を詰め込むような量産型の宅地にはしたくない」「街の景観を思いながら、代々耕し続けてきた場所を、次の世代へどうつなぐか」。その問いへの答えとして生まれたのが、住まいと風景、そしてコミュニティを一緒につくっていく「コーポラティブビレッジ」のプロジェクトです。 それは、完成した家を購入する分譲住宅ではありません。 敷地には、高木、中木、そして続いていく緑の小道。一つの住戸では決してつくれない、連続する緑の情景をつくります。緑を通じて、自然に生まれるコミュニケーション。物理的にも心理的にも距離を保ちながらも、ゆるやかにつながる関係性。まちの緑や風景を守りたいという、似たマインドを持つ住人たちとともに、コーポラティブ方式による住まいづくりに取り組みます。 設計を手がけるのはビオフォルム環境デザイン室。設立以来、自然と調和する住まいを追求してきた設計者です。素材の選び方、風や光の取り入れ方、時間とともに草花や木々が育つ余白まで含めて住まいを考えます。 敷地内には、住民同士を穏やかにつなぎ、緑の管理のアドバイスもするコミュニケーターも1区画住まう予定です。 コーポラティブ方式とは、完成品を購入するのではなく、組合員として参加し、みんなで敷地と住まいをつくっていく方法です。とはいっても完全なゼロベースではありません。プロジェクトの方針やガイドラインはすでに策定されていますのでご安心を。 標準プランの建物面積は81.98㎡。暮らし方に合わせて、追加費用により90〜100㎡ほどへの増床プランも検討可能です。 建物は自然素材をベースに計画しています。外壁は腰壁に杉板、上部は漆喰仕上げ。室内は構造をあらわした天井、床には無垢の杉材を使用し、壁は塗装仕上げ。時間とともに風合いが深まり、この土地の環境になじんでいく素材選びです。 キッチンや浴室、トイレなどの設備は、LIXILやTOTOなどのメーカー品が標準仕様。シンプルで自然素材にも馴染むようなものをセレクトしていますが、オプションでよりこだわりのものへ変更も可能です。 各住戸には1台分の駐車場を確保。歩車分離とし、駐車スペースは敷地の一角にまとめることで、住戸まわりには連続した緑の風景を優先しています。 注文住宅よりも手頃に、建売よりも自由に。量産型ではない、でも無理のないかたちで自分たちらしい住まいをつくる選択肢。そこに、いま求められる宅地分譲の未来を感じました。 道を挟んだお向かいには秋田さんが温めてきた「タネニハガーデン」があるのも心強い。農園で花の栽培や苗を販売していたり、隣接の店舗では昼間はカフェ、夜はコース料理も楽しめたり。自然や人とのつながりの豊かさを大切にしたい人々が集まる場所です。 風景と人の活動が、ゆるやかにつながる日常。家は建てて終わりではなく、土地とともに時間をかけて育てていくもの。ここに住む人自身が、風景の一部になっていく。家を購入するだけでなく、この環境がよりよく成長していくことを、ともに楽しむプロジェクトです。 自分の暮らしを、風景を自分で耕し育てる。そんな暮らしを、この場所で始めませんか。 <説明会スケジュール> 個別での現地案内、説明会を随時行っております。 3/7(土)14:00~16:00 現地説明会 3/5(木)19:00〜20:30 WEB説明会 3/14(土)14:00~16:00 現地説明会 3/21(土)14:00~16:00 現地説明会 3/28(土)14:00~16:00 現地説明会 ※参加のお申し込みは問い合わせ欄から。 ※記載以外の日程をご希望の場合も、お問い合わせください。 〈募集区画〉 No7 敷地122.21㎡ 価格6,314万円 No8 敷地115.03㎡ 価格5,964万円 No9 敷地114.68㎡ 価格5,994万円 No10 敷地101.8㎡ 価格6,494万円 No11 敷地115.16㎡ 価格6,144万円 No12 敷地107.99㎡ 価格6,464万円 No13 敷地125.75㎡ 価格6,291.5万円 No14 敷地128.26㎡ 価格5,871.5万円 No15 敷地151.61㎡ 価格6,332.5万円 No16 成約済 No17 敷地150.55㎡ 価格6,668.5万円 No18 敷地134.8㎡ 価格6,721万円 ※表示価格は土地取得費、建築設計・工事費(標準プラン建物費用)、造成設計・工事費、外構工事費の一部、消費税を含む参考価格です。 ※標準プラン建物面積は一律81.98㎡。(オプションで増床可能) ※工事費や設計料は、標準プランからの設計内容の変更によって変動します。 ※プロジェクトの進行に伴い計画が記載と異なる内容になる可能性があります。 |
![]() |
|
| 完成イメージ。設計はビオフォルム環境デザイン室。自然と調和する住まいを追求してきた設計者です |
|
| 今回の計画地。道路越しにタネニハガーデンのレストランや農園、そして歴史を感じる大木の景色が続きます |
|
| ビオフォルムさんが手がけた別物件。小道に緑が茂り、そこに自然素材の家が馴染むような設計を目指します |
|
| 参考写真。こちらと同様に床には無垢材、木の勾配天井に白い塗装壁。窓からの緑の景色も大切にします |
|
|
| 価格 | 5,871万5,000~6,721万円(税込) | 建物面積 | 81.98㎡ |
| 管理費 | 2,500円 | 修繕積立金 | 4,000円 |
| 所在地 | 東京都東久留米市南町 | ||
| 交通 |
西武池袋線「ひばりヶ丘」駅 バス9分 「イオンモール東久留米南」バス停 徒歩8分 西武新宿線「花小金井」駅 徒歩28分 西武新宿線「田無」駅 バス4分 「西原グリーンハイツ」バス停 徒歩8分 |
||
| 建物構造 | 木造 2階建て | 所在階 | 1-2階 |
| 築年 | 2027年 | 土地権利 | 所有権 |
| 敷地面積 | 101.80㎡~151.61㎡ | 都市計画 | 市街化区域 |
| 用途地域 | 第一種中高層住居専用地域/第一種低層住居専用地域 | 建蔽率/容積率 | 30・60/60・200 |
| その他費用 | 取引態様 | 該当せず | |
| 設備 | 上下水道/都市ガス | ||
| 備考 | ペット可/地目:宅地/施工会社:相羽建設株式会社/総開発面積:2,985.12㎡/入居開始予定:2027年夏頃/高木の剪定費用などは、修繕積立金より捻出することを想定しております/庭付き/バイク置場あり/駐車場あり(1台分)/住居兼事務所可/新築/楽器演奏可 | ||
| 情報修正日時 | 2026年3月2日 | 情報更新予定日 | 2026年3月16日 |
あなたにおすすめの物件


