|
|
|
||||||||||||||||||||
構想に応える一棟 |
||||||||||||||||||||||
|
||||||||||||||||||||||
|
||||||||||||||||||||||
|
||||||||||||||||||||||
|
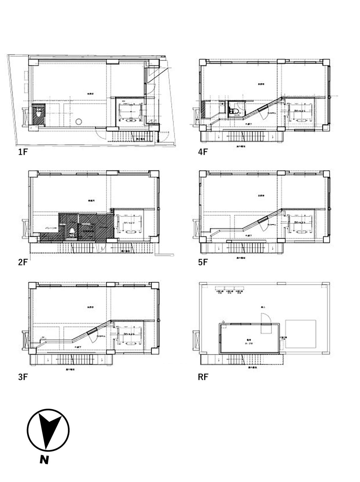
首都高の高架に寄り添うようにして、スッと背筋を伸ばした1一棟ビル。 内装・外装ともにフルリノベーション。築年数を感じさせる部分はほとんどなく、全体がしっかりと整っています。 建物の”顔”となる1階は、天井高約3メートル。空間に力強い第一印象を与えている。ショールームやギャラリー、フラッグシップ的なオフィスにも似合う力強い構えで、街に対して開かれたこのフロアから、何かが始まる予感。 2階にはキッチンが設けられており、オフィススペースとしては最もちょうどいいフロア。 3・4・5階は基本的に同じ形のフロア構成。4階にトイレとミニキッチンがある点を除けば、大きな違いはありません。ただ、内装は似ていながらも少しずつ表情が異なり、完全にコピーされたフロアということではありません。また、エレベーターを降りて、一度屋外を経由してから入室するアプローチという点も共通しています。 最後、5階から外階段で屋上へ。屋上はスタッフだけの憩いの場としても良さそうです。屋上に設けられた塔屋部分も、実はしっかりと使える一室になっており、簡単な作業や一人での作業場所としても活躍しそうです。 一棟使いという条件をどう活かすかは、構想次第。立地や首都高沿いという環境も含めて、合うかどうかは現地でご判断いただければと思います。 ▪︎各階面積▪︎ 1F:50㎡、2F:55㎡、3-5F:56㎡、RF:11.3㎡(塔屋) |
![]() |
|
| 1F:天高約3mの開放感ある大空間。建物の印象を象徴する、まさに“顔”となるフロアです |
|
| 1F:自然光が優しく奥のほうまで差し込み、心地よい明るさがあります |
|
| 1F:入り口付近 |
|
| 建物に向かって右側に1階の入り口。左側にエレベーターがあります |
|
|
| 賃料 | 189万2,000円(税込) | 建物面積 | 284.30㎡ |
| 敷金 | なし | 礼金 | 1ヶ月 |
| 償却 | なし | 管理費 | なし |
| 所在地 | 品川区上大崎 | ||
| 交通 |
山手線「目黒」駅 徒歩9分 南北線・都営三田線「白金台」駅 徒歩11分 |
||
| 建物構造 | 鉄筋コンクリート造 6階建て | 所在階 | |
| 築年 | 1971年 | 取引態様 | 媒介 |
| 設備 | エアコン(各階)/トイレ(1・2・4F)/キッチン(2・4F)/エレベーター | ||
| 備考 | ペット不可/定期借家契約(期間:相談(3〜5年間)/再契約:相談)/敷金:相談/保証会社利用必須(初回保証料:月支払い総額の100%)/1階・路面/要火災保険契約 | ||
| 情報修正日時 | 2026年1月17日 | 情報更新予定日 | 2026年1月31日 |
あなたにおすすめの物件


