栃木県那須塩原市埼玉の賃貸物件/1階店舗部分:店舗部分は約40㎡
栃木県那須塩原市埼玉の賃貸物件/1階店舗部分:天井を抜いてスッキリと。ここの部分は借主側で手を入れやすいよう、あえてほぼ何もしていません
栃木県那須塩原市埼玉の賃貸物件/1階住居部分:ちゃんと人が住めるように大幅に手を入れました
栃木県那須塩原市埼玉の賃貸物件/1階住居部分:古い家は寒いので、とくに断熱に気を配っています
栃木県那須塩原市埼玉の賃貸物件/1階住居部分
栃木県那須塩原市埼玉の賃貸物件/1階店舗部分:住居部分からお店にサッと出られる、昔ながらの住居兼店舗の形
栃木県那須塩原市埼玉の賃貸物件/1階店舗部分:外への間口が広い
栃木県那須塩原市埼玉の賃貸物件/1階店舗部分:ガバッと天井を上げて開放的にしました
栃木県那須塩原市埼玉の賃貸物件/外観
栃木県那須塩原市埼玉の賃貸物件/1階住居部分:写真右手の階段から2階に上がります
栃木県那須塩原市埼玉の賃貸物件/1階住居部分:水回りには特に力を入れて改装しました
栃木県那須塩原市埼玉の賃貸物件/1階住居部分:キッチンも新規入れ替え
栃木県那須塩原市埼玉の賃貸物件/1階住居部分:トイレとお風呂も交換済みです
栃木県那須塩原市埼玉の賃貸物件/2階:光がよく入ります
栃木県那須塩原市埼玉の賃貸物件/2階への階段と廊下
栃木県那須塩原市埼玉の賃貸物件/2階
栃木県那須塩原市埼玉の賃貸物件/2階
栃木県那須塩原市埼玉の賃貸物件/2階:ウッドデッキも新規交換済みです
栃木県那須塩原市埼玉の賃貸物件/外観:写真左手の部分に庭があります
栃木県那須塩原市埼玉の賃貸物件/庭:整備して家庭菜園なんかしても楽しいはず
栃木県那須塩原市埼玉の賃貸物件/1階住居部分:庭へ足を放り出して、スイカの種をプププッとする子供が目に浮かびます
栃木県那須塩原市埼玉の賃貸物件/1階住居部分:型ガラスなど、古くても味わいのある部分はそのまま残して

rent   NEW 住宅 店舗・その他

移住の一歩目を踏み出す

 
賃料:
13万円
面積:
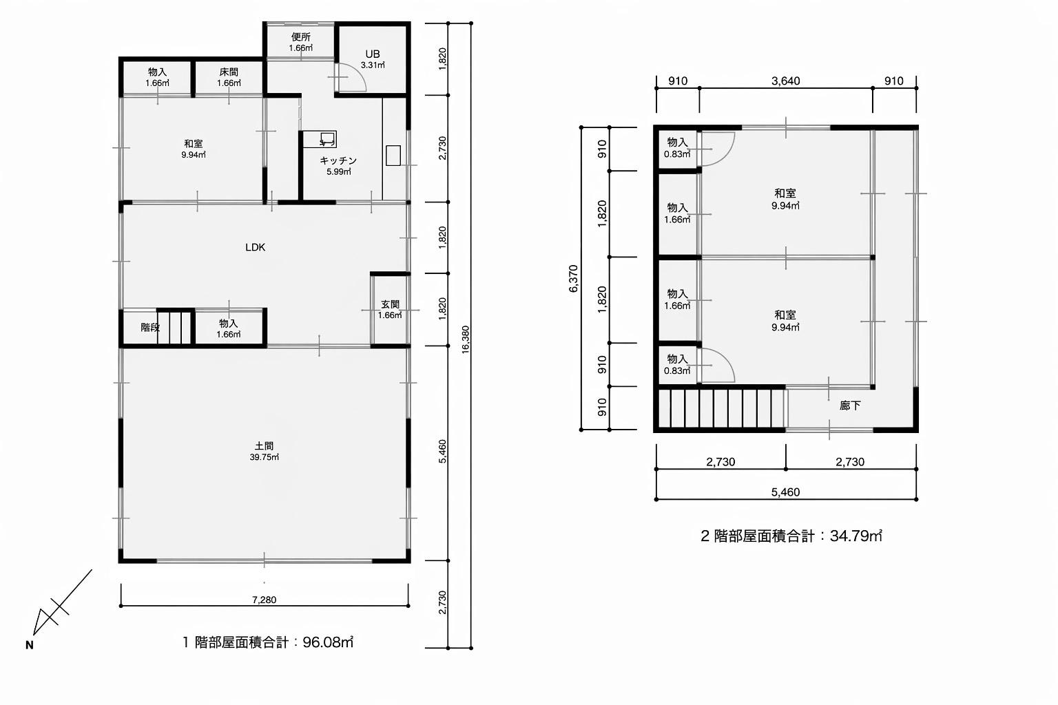
130.87㎡
所在地: 栃木県那須塩原市埼玉
交通: 宇都宮線「黒磯」駅 3㎞(車約7分)/東北新幹線・宇都宮線「那須塩原」駅 7.7㎞(車約15分)
管理費 なし
敷 金 2ヶ月  礼金: なし

昔ながらの店舗併用住宅をリノベーションをした、小商いをしながら暮らせる戸建て賃貸です。栃木県那須塩原市に移住してお店を開きたい方いませんか?


都心からの移住ならば、いまの家賃と同じくらいの賃料で住居とお店が持てます。


チャレンジショップとして物販はもちろん、カフェやブルワリー兼立ち飲み屋、お惣菜やおにぎり屋さんなどこじんまりな飲食、アトリエやサロン、習い事のお教室など、リスク少なめに初めてみるのはいかがでしょう。


古い物件には、新築とは違った良さがあります。しかし、元の間取りは洗面台も脱衣所も、洗濯機置き場もありませんでした。ちゃんと現代の暮らしにフィットするよう更新しましたのでご安心ください。


単なる古い水回り設備の交換だけではなく、築古戸建ては寒いので、内窓で隙間風をなくしました。気密断熱は窓が大事。ほか、全部畳だった部屋は、一部をダイニングテーブルが置けるように板間にして、床下地には断熱材も入れました。


3LDK+店舗スペースと、ファミリーで住める広さの戸建てなので、子供の騒音の心配から解放されるのもよし。小さいけれど庭もあるので、家庭菜園も可能です。小中学校も近く、子育て世代にも好立地です。ペットもご相談ください。


近所にはコンビニ、スーパー、薬局、飲食店もあり、雪の心配もなく、運転しやすい道、移住初心者でも安心な立地。街にも山にも近いので、那須塩原ライフを楽しめると思います。


那須塩原はどんどんおしゃれになり移住者は増えているのに自分の暮らしにフィットする賃貸が無さすぎる。そんな考えを持った大家は、実はR不動産とは兄弟会社「toolbox」のスタッフです。


東京からの移住の先輩でもあるので、那須での暮らしの情報や、お店の宣伝など、全力でサポートしてくれることでしょう。また大家自身が内装に詳しいので、「追加リノベでここをこう変えたい」などすぐに相談ができるのも良いところ。


住居部分はすぐに住める状態へリノベーション済みですが、店舗部分は、店のイメージ合わせて改装してもらいたいので、あえて工事をせず残してあります。「働きながら暮らす」を賃貸で気軽にはじめてください。



※正直、同じ賃料払ってくれるなら誰でも良いとは思っておらず、同じ価値観や店主のキャラが重要だと思っているので、早い順ではなく面談にて決めさせていただきます。ご了承ください。


※店舗部分:約40㎡、住居部分:約90㎡

賃料 13万円 専有面積 130.87㎡
敷金 2ヶ月 礼金 なし
償却 なし 管理費 なし
所在地 栃木県那須塩原市埼玉
交通 宇都宮線「黒磯」駅 3㎞(車約7分)
東北新幹線・宇都宮線「那須塩原」駅 7.7㎞(車約15分)
建物構造 木造 2階建て 所在階 1〜2階
築年 築年不詳 取引態様 媒介
設備 エアコン1基/3口ガスコンロ/グリル/ウォシュレット/追いだき/ファンヒーター1台
備考 ペット相談可/退去時は2ヶ月前予告/保証会社利用必須(初回保証料:月支払い総額の50%〜)/庭付き/バイク置場あり/駐車場あり(月額3,000円)/1階・路面/飲食店可/要火災保険契約
情報修正日時 2026年4月26日 情報更新予定日 2026年5月11日
※掲載の情報が現状と異なる場合には、現状を優先するものとします。