|
|
|
||||||||||||||||||||
茅ヶ崎ヤバタハウス【平屋】 |
||||||||||||||||||||||
|
||||||||||||||||||||||
|
||||||||||||||||||||||
|
||||||||||||||||||||||
|
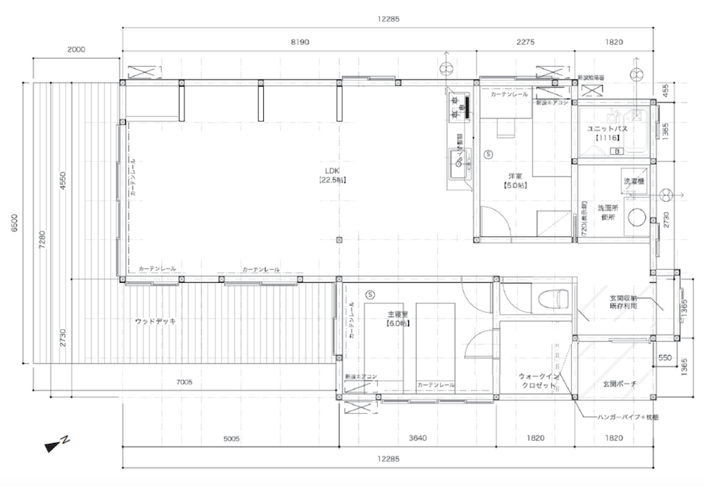
広めの敷地に、平屋が悠々と立っています。 外観は古き良き感じを残しつつ(屋根等補修済み)、古くなった室内は13年前くらいにリノベーションされ、木の温もりいっぱいになりました。風通しと日当りが良くて、ほんとに気持ち良い。ここでの生活が容易に想像していただけると思います。 間取りは2LDKです。玄関はゆったり、隣接してユニットバス、洗面、洗濯機置き場、トイレがまとまっています。その横に洋室が二つ。一つは庭に面していない、こもる感じの洋室、もう一つは庭に面して緑が見える洋室です。 そして庭に面する広々としたLDKに到着します。庭を見て正面と左側にぐるりと造作されたウッドデッキはLDKが延長されたようなイメージです。右側には壁に棚が設置されているので、書籍や小物をたくさん収納できます。 庭は木々が程よくあって、外側からの目線も気にならないので、ウッドデッキと庭先を使用して、みんなでBBQとか良さそうですね。 気になる点は駅までの距離と、敷地内駐車場がないことでしょうか。物件所在地は茅ヶ崎駅の南側の海エリアではなく、北側の山エリアです(駅までは平坦)。 |
![]() |
|
| 広々としたLDK、奥にキッチン |
|
| デッキもLDKと同じ高さ |
|
| LDKをぐるっと取り囲むデッキ |
|
| 平屋の雰囲気が素敵 |
|
|
| 賃料 | 14万8,000円 | 建物面積 | 61.96㎡ |
| 敷金 | 1ヶ月 | 礼金 | 1ヶ月 |
| 償却 | なし | 管理費 | 賃料に含む |
| 所在地 | 茅ヶ崎市矢畑 | ||
| 交通 |
東海道線「茅ヶ崎」駅 徒歩21分 東海道線「茅ヶ崎」駅 バス7分 「円蔵」バス停 徒歩3分 |
||
| 建物構造 | 木造 1階建て | 所在階 | 1階 |
| 築年 | 取引態様 | 媒介 | |
| 設備 | 給湯(プロパンガス)/キッチン(3口コンロ)/エアコン | ||
| 備考 | ペット相談可((敷金2ヶ月))/建築年不詳/写真は前回募集時のものです/退去予定3月下旬(内見開始予定4月上旬〜)/要火災保険契約 | ||
| 情報修正日時 | 2026年2月26日 | 情報更新予定日 | 2026年3月12日 |
あなたにおすすめの物件


