|
|
|
||||||||||||||||||||
来たれ!コーヒースタンド |
||||||||||||||||||||||
|
||||||||||||||||||||||
|
||||||||||||||||||||||
|
||||||||||||||||||||||
|
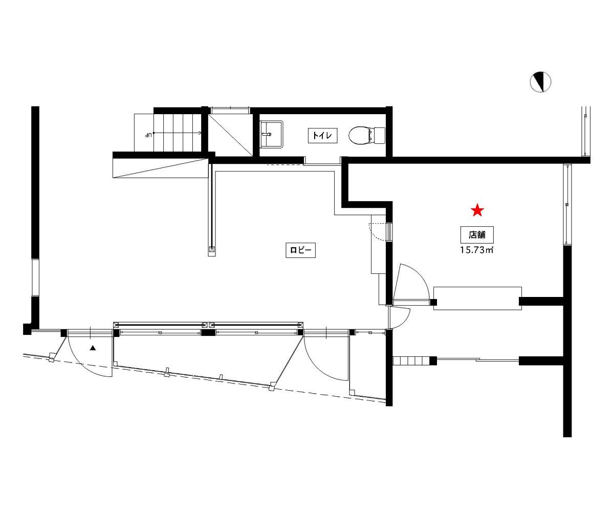
地域のよき交流場となっていた元コーヒースタンドの跡地にて、新たな町の顔となってくれるスタンドの担い手を募集します! 築70年越え、通りに面したファサードがやけに心くすぐる、元は質屋さんだったというこの建物。心意気ある大家さんが再生を目指したリノベーションを行い、1階はコーヒースタンド、ショップ、ギャラリー、2階はシェアオフィスとして稼働する、複合的な施設になっています。 大家さん自身のチャレンジとして、1階には地域に開いたラウンジエリアが設けられ、ベンチ仕様になったショーウインドや、使い込まれて馴染みのよくなった座席、当時の床材のポップな雰囲気も手伝って、楽しい出会いや交流が生まれそうな寛ぎのスペースになっています。 町の人がコーヒー片手に一息ついたり、シェアオフィスの入居者さんが打ち合わせに使ったりの日常と、ときにはイベントや展示などの利用を受け入れ、盛り上がりを見せる場として運用されることもあります。 今回募集するスタンドは、店内に席を設けるのは厳しそうなサイズ感ですが、テイクアウトで購入したお客さんが、となりのラウンジやベンチで飲食する分にはOKという、ありがたい環境が整っています。 リノベーション直後から営業を始めたコーヒースタンドは、お客さんとの楽しい会話が聞こえてくるような、地域に溶け込んだ存在となっていましたが、やむを得ぬご事情で惜しまれつつ閉店となり、地域の方々もスタンドの再開を待たれているのではと思います。 引き渡しは写真の状態で、改装はもちろん可能ですが、カウンターは壊さずこのまま生かしてもらえるとうれしいそうです。コーヒースタンドなら比較的すんなり始められそうですし、コーヒー以外のスタンドや飲食以外の店舗も相談できるので、まずは気軽に問い合わせてください。 1階ではセレクトショップが営業中で、2階にはシェアオフィスが4区画あり、ラウンジは大家さんが運営してと、職は違えど、同じ施設に仲間がいるのは他にはない魅力かもしれません。今まで縁のなかったエリアの出店でもどこか心強く、町の人と繋がるきっかけも多そうです。 最後に、ロケーションの面白さも見逃せません! 目と鼻の先にある六角橋商店街は、バラックが集まる戦後の闇市から発展し、レトロな昭和の面影をいまも残しながら、周辺を含め約170店が軒を連ねているそう。撮影のセットみたいな渋さと、なんとも言えないごった煮感がたまらなく、寄り道が楽しい通りになっています。 商店街では夜のヤミ市やうまいもの市など見逃せない企画があり、この場所でも連動したイベントをメンバーで立ち上げてみたりと、普段は各々気ままに働きながら、ときには誰かの発案に乗っかってラウンジや庭を生かした企画が発動することもあります。ご近所の商店とも顔が見え合う距離感の、ローカルな環境はおすすめですよ。 賃料:107,800円 + 共益費:29,700円 = 月額:137,500円(税込) ※共益費は共用wifiと水道電気代込み(ガス設備はありません) |
![]() |
|
| 地域の憩いの場になっていた1階のコーヒースタンド |
|
| オフィス入居者も地域の人も使える開かれたラウンジ |
|
| スタンドで買ったコーヒーはラウンジでも楽しめます |
|
| この角に新しい風を吹かせてください! |
|
|
| 賃料 | 10万7,800円(税込) | 専有面積 | 15.73㎡ |
| 敷金 | 3ヶ月 | 礼金 | 1ヶ月 |
| 償却 | 1ヶ月(解約時) | 共益費 | 29,700円(税込) |
| 所在地 | 横浜市神奈川区六角橋 | ||
| 交通 | 東急東横線「白楽」駅 徒歩4分 | ||
| 建物構造 | 木・鉄筋コンクリート造 2階建て | 所在階 | 1階 |
| 築年 | 築年不詳 | 取引態様 | 媒介 |
| 設備 | |||
| 備考 | ペット不可/定期借家契約(期間:5年間/再契約:相談)/保証会社利用必須/共益費は共用wifiと水道電気代込み/ガス設備なし/1階・路面/飲食店可((軽飲食のみ))/要火災保険契約 | ||
| 情報修正日時 | 2026年3月31日 | 情報更新予定日 | 2026年4月14日 |
あなたにおすすめの物件


