墨田区業平の賃貸物件/レトロなビルに新しさをインストールしたデザイン。駅出た瞬間に目につく、路面店となっています
墨田区業平の賃貸物件/室内はスケルトン。写真は2区画が繋がった状態。テナントが決まり次第、壁を立てて、貸し出しを想定していますが、一括希望であればこのままの引き渡しも可
墨田区業平の賃貸物件/印象的なカウンターを造作してお店をつくるのはいかが?床はモルタル敷きで、この感じのままもかっこいい
墨田区業平の賃貸物件/こちらはA区画のファサード。凹みの部分にベンチを置いたり、お店のカラーを街に滲ませることができる
墨田区業平の賃貸物件/押上駅B2出口を出ると、このビルが待ち構えています。奥にはスカイツリー。2階にも店舗、3-4階は事務所に
墨田区業平の賃貸物件/通りに大きく開口したB区画。木製サッシを開口すると、オープンに使えます。ステップ部分に小さくベンチや植物を置いても◎
墨田区業平の賃貸物件/このサッシの向こうに目を引くカウンターをつくり、立ち飲みバルなんてどうでしょうか?
墨田区業平の賃貸物件/A区画側を引きで。右手には2階店舗区画の入口も並んでいます
墨田区業平の賃貸物件/木製サッシ、壁のカラー、床のタイルの素材がかわいいファサードです
墨田区業平の賃貸物件/左奥には地下鉄の出入口。駅とはこれくらいの距離感です
墨田区業平の賃貸物件/A区画側から見た、店内。壁の立ち上げラインは天井の梁の手前くらいです
墨田区業平の賃貸物件/階段下にはトイレを配置できるよう、排水管が用意されています
墨田区業平の賃貸物件/別のアングルで。天井高は3mほどあります
墨田区業平の賃貸物件/A区画から外をみて。人通りは結構あります。道路はバス通りにもなっていて車もたくさん通ります
墨田区業平の賃貸物件/B区画から外をみて
墨田区業平の賃貸物件/B区画の奥のスペース
墨田区業平の賃貸物件/B区画には残置物のトイレがあります
墨田区業平の賃貸物件/B区画側からの建物外観
墨田区業平の賃貸物件/A区画側に古いサッシが残っていますが、テナント工事で交換をしてもOKです
墨田区業平の賃貸物件/通りから見て
墨田区業平の賃貸物件/A区画ファサードを引きで。外壁ラインにシャッターが下ろせるようになっています
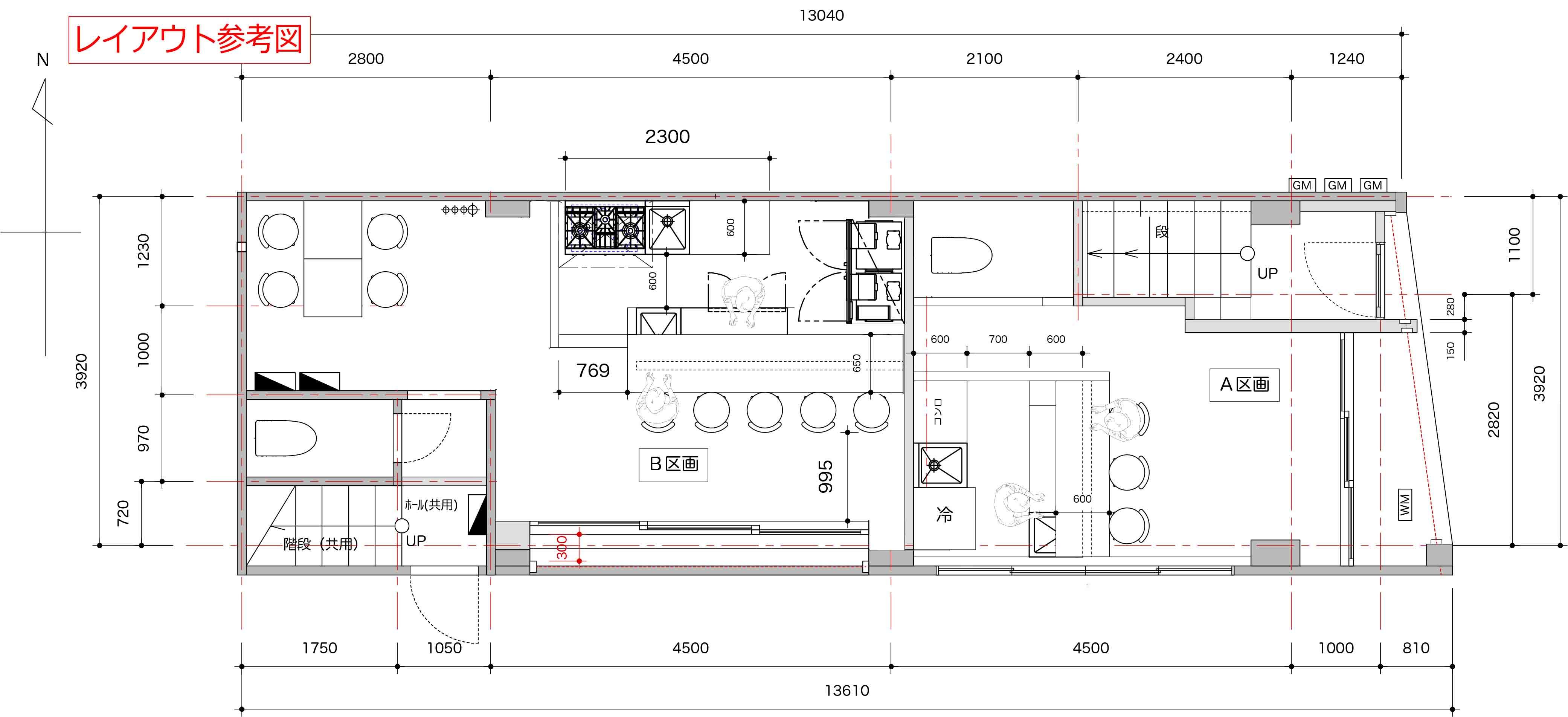
墨田区業平の賃貸物件/レイアウト参考図

rent   NEW 店舗・その他

押上の「星」になる -路面店-

 
賃料:
13万2,000円~31万9,000円 (税込)
面積:
20.18㎡~48.88㎡
所在地: 墨田区業平
交通: 半蔵門線・都営浅草線・京成線「押上」駅 徒歩1分
管理費 なし
敷 金 6ヶ月  礼金: なし

押上駅B2出口を出て、すぐ目の前。レトロな空気をまとった古ビルが、街の新しい拠点として生まれ変わりました。


「街を盛り上げる店舗が入ってくれたら」そんな貸主の想いから、一棟丸ごとリノベーションが行われています。


こちらで紹介するのは、その1階の路面区画。角地に建つ建物らしく、2方向に大きな開口を持つ、視認性の高いつくりです。人通りの多い道に面した区画と、ワイドに通りへ面した区画。自然と人を引き込むようなつくりになっています。


スモール店舗を2区画想定してリノベーションされていますが、現在は間仕切り壁を設けていないため、2区画をつなげて少し広めに使うことも可能。コンパクトに2店舗でも、ゆとりを持って1店舗でも。使い方の自由度があります。


間口には、木製フレームのガラス引き戸を新設。レトロな外観に、新しさを重ね、目を引くデザインとなっています。外壁から少し凹ませたデザインとし、余白のスペースも。ベンチや植栽、看板などを置けば、お店の雰囲気が街ににじみ出るようなかたちに。


室内はスケルトン渡しで、用途に合わせて内装設備の工事をする必要があります。電灯・動力は分電盤まで設置済み、給排水も室内まで引き込み済みです。ガスを利用する場合には建物外のメーターから借主側で引き込みを行う形となります。


B区画の奥、階段下には残置のトイレもあり、そのまま活用することもできます。もちろん、レイアウトに合わせて新設しても問題ありません。


建物は一棟丸ごとリノベーション済みで、2階にも店舗区画、3〜4階は事務所区画。上階と組み合わせて借りることも可能です。ショップ+アトリエ、店舗+事務所など、広がりのある使い方も想像できます。


押上といえばスカイツリーのイメージが強いですが、ここ数年、街には小さく個性的なカフェやショップが増え始めています。宿泊施設も多く、外国人の往来も多いエリア。半蔵門線、浅草線、京成線などが利用でき、渋谷・大手町・羽田方面へも一本でアクセスできる立地です。


清澄白河や蔵前のように、じわじわと面白い街になっていく気配も。そんな変化の途中にある押上で、新しい風景をつくる一角になりそうな場所です。


スカイツリーの中だけではなく、街の中にこそ面白さを。この場所から、押上の次の空気をつくってくれる方を、お待ちしています。



■募集区画

1A区画 20.18㎡ 賃料13.2万円(税込)

2B区画 28.70㎡ 賃料18.7万円(税込)

一括 48.88㎡ 賃料31.9万円(税込)



賃料 13万2,000~31万9,000円(税込) 専有面積 20.18㎡~48.88㎡
敷金 6ヶ月 礼金 なし
償却 なし 管理費 なし
所在地 墨田区業平
交通 半蔵門線・都営浅草線・京成線「押上」駅 徒歩1分
建物構造 鉄筋コンクリート造 5階建て 所在階 1階
築年 1972年 取引態様 媒介
設備 シャッター/電灯・動力電源/水道/ガス(メーターまで)
備考 ペット可/定期借家契約(期間:5年/再契約:相談)/募集戸数:2戸/保証会社利用必須(初回保証料:賃料の80〜100%、年間保証料:賃料の10%)/1階・路面/飲食店可/要火災保険契約
情報修正日時 2026年4月14日 情報更新予定日 2026年4月29日
※掲載の情報が現状と異なる場合には、現状を優先するものとします。