|
|
|
||||||||||||||||||||
求む、本気の〇〇兼用住宅! |
||||||||||||||||||||||
|
||||||||||||||||||||||
|
||||||||||||||||||||||
|
||||||||||||||||||||||
|
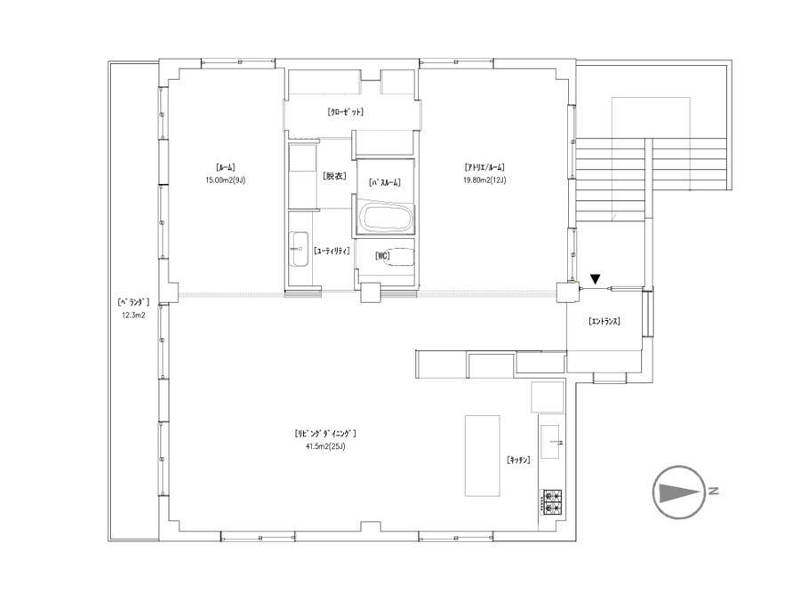
たいした自慢にもならないのですが、実はちょっとした持論がありまして。それは、医院として使われていたこの年代の建物は、だいたい素敵なつくりである。というもの。 まちを歩いていて、角ばったフォルムにビビッときたり、ファサードのタイルの色味にそそられたり、だいたいそんな建物をみつけると、表札には「〇〇医院」とあったりします。 ご紹介するのも医院(一部は住宅利用)として使われていた建物ですが、例に漏れず素敵な物件でした。 素焼きのようなタイルと、深い青が美しいタイルが良い塩梅で組み合わされ、建物のフォルムのかわいらしさも相まって素敵な表情を生み出しています。 そんな建物の魅力も相まって、無事に1階が地域のつながりを深めるカフェとして再生され、訪れる人々にリラックスできる時間を提供しています。 さて、だいぶ前置きが長くなりましたが、今回の募集は2階部分。つい先日リノベーション工事が終わり、全面改修されています。 住居兼店舗・事務所としての利用が相談可能な区画で、何か新しいことを始めたい、でもまずは住みながら小規模に事業をスタートしたい方におすすめです。 間取りは2LDKで、建具の一部は、医院から残された棚やレントゲン室の下地を巧みに利用し、新しい風合いを味わうことができます。 フローリングは無垢材とフレキ板で構成され、空間を床の仕上げで心理的に仕切っています。壁の一部はDIYに適したベニア板で仕上げられていて、造作を備え付けるなども可能。 玄関側の12帖の部屋は給排水管の立ち上がりがあるため、飲食店や美容室などの水まわりが必要な業種にも適しています。 そして、LDKは25帖があり、イベントスペースとしても最適で、セミナーやワークショップなど多目的に利用できそう。キッチンは、元々病院で使用していた収納をカトラリー入れとして蘇らせました。 もともとポテンシャルが高い建物を、設計事務所のデザインで再生させたのですから、当然のように素敵になりますよね。 駅から8分という立地ですが、駅から金沢文庫へ向かう人、海の公園に向かう人など常に人の往来がある場所でした。特に夏は潮干狩りなども有名なスポットのようですね。 海の公園までは歩いて10分ほど。惣菜、パン、軽食などなどテイクアウトの要素があってもいいかも。飲食でなくても面白いアイディアをお持ちの方、ぜひ一度お問い合わせください。 ※写真は全て前回募集時のもの ※住居兼店舗・事務所の場合、賃料は別途消費税かかります。 ※借主は、貸主の書面による事前の承諾を得て、DIY等の工事が可能です。(ただし構造躯体などに関わることは不可)原状回復工事については、都度相談となります。 |
![]() |
|
| 壁の一面はレントゲン室の解体で発生した部材を再利用 |
|
|
|
| この素敵な顔がたまらない。旧医院の1階はカフェに再生。募集区画の2階部分は右手の外階段からアクセス |
|
|
| >>大きな地図で見る  |
| 賃料 | 23万円 | 専有面積 | 108.35㎡ |
| 敷金 | 2ヶ月 | 礼金 | 1ヶ月 |
| 償却 | なし | 管理費 | なし |
| 所在地 | 神奈川県横浜市金沢区寺前 | ||
| 交通 | 京急本線「金沢文庫」駅 徒歩8分 | ||
| 建物構造 | 鉄筋コンクリート造 2階建て | 所在階 | 2階 |
| 築年 | 1976年 | 取引態様 | 媒介 |
| 設備 | 公営水道(水道メーター2つ)/公共下水/都市ガス | ||
| 備考 | ペット可(敷金・償却1ヶ月積み増し)/定期借家契約(期間:3年/再契約:相談)/募集戸数:1戸/近隣駐車場空きあり(月額:16,000円)/駐輪場・バイク置き場空きあり(物件前・無料)/保証会社利用必須(初回保証料:賃料の50%〜、更新料:1年毎に10,000円〜)/事業用途専用としての利用不可/住居兼事務所利用の場合、賃料等に別途消費税/再契約料:新賃料の1ヶ月分/バイク置場あり/住居兼事務所可/シェア可/楽器演奏可(近隣への配慮をお願い致します)/飲食店可/要火災保険契約 | ||
| 情報修正日時 | 2026年3月23日 | 情報更新予定日 | 2026年4月6日 |
あなたにおすすめの物件


