|
|
|||||||||||||||||||||
飽きないパノラマ |
||||||||||||||||||||||
|
||||||||||||||||||||||
|
||||||||||||||||||||||
|
||||||||||||||||||||||
|
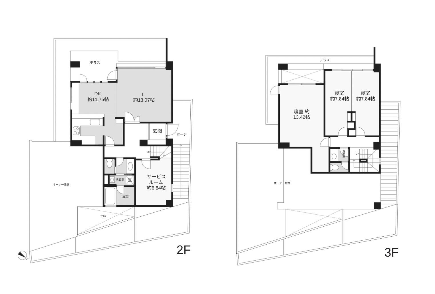
遮るものが何もない爽快な眺望を楽しめます。約30㎡のテラスでバーベキューを楽しむことも可能。ペットの飼育や楽器の演奏も相談ください。 丘の上にそびえる白く瀟洒な一軒家。オーナーが親族の建築家に依頼して建てたものを二世帯住宅に改装し、現在の形になりました。 下の階には大家さんが住んでいますが、エントランスは別々です。壁が厚い構造になっているので喋り声はもちろん、楽器を弾いてもお互い聞こえてくることはないそうです。道路沿いのお部屋ですが、車の音もほとんど聞こえてきませんでした。 なんといってもハイライトは、街を見渡す180°のパノラマ景色。目覚めた瞬間から眠りにつくまで、料理をしている時も、家族団欒の時も、窓からの眺望を楽しむことができます。 LDKは約25畳と広々しており、テラスと繋げてアウトドアダイニングにすることも可能。テラスでバーベキューをしたり、友人を招いてホームパーティを開催するのも楽しそうです。 個室は3部屋あり、子ども部屋として使われていた3階洋室はパーテーションで2部屋に分けることも可能です。2〜3人お子様がいる家庭でも、それぞれ個室を作ってあげることができます。 徒歩1分ほどのバス停からはものすごい頻度で鶴見駅行きのバスが出ています(最後の写真参照)。駅から距離はありますが、車がなくても意外とやっていけそうな環境です。 京急鶴見駅からは羽田空港まで1本(乗車時間17分ほど)、新横浜駅にも車を使えば15分ほどで行くことができます。飛行機にも新幹線にもアクセスが良く、出張や旅の多い方にも不便がない立地です。 小学校学区:旭小学校(徒歩約4分) 中学校学区:寺尾中学校(徒歩約15分) ※写真は前回募集時のもの |
![]() |
|
| 30㎡ほどあるテラスでは、バーベキューを楽しむことも可能 |
|
| 3階洋室)大きな窓からのぞくパノラマ景色 |
|
| 3階洋室)遮るものが何もない爽快な眺望。日によってはみなとみらいの高層ビル群や富士山も見渡せます |
|
| 瀟洒な建物外観。右側の専用エントランスを使います |
|
|
| 賃料 | 32万円 | 専有面積 | 134.56㎡ |
| 敷金 | 1ヶ月 | 礼金 | 1ヶ月 |
| 償却 | なし | 管理費 | 30,000円 |
| 所在地 | 横浜市鶴見区北寺尾 | ||
| 交通 |
鶴見線「鶴見」駅 バス7分 「三ツ池口」バス停 徒歩1分 京急本線「京急鶴見」駅 バス12分 「三ツ池口」バス停 徒歩1分 横浜線・東急東横線「菊名」駅 バス13分 「貯水池前」バス停 徒歩6分 東急東横線「綱島」駅 バス20分 「三ツ池口」バス停 徒歩1分 |
||
| 建物構造 | 鉄筋コンクリート造 3階建て | 所在階 | 2-3階 |
| 築年 | 1993年 | 取引態様 | 媒介 |
| 設備 | エアコン/ガスコンロ3口/グリル/追いだき/ウォシュレット | ||
| 備考 | ペット可(犬猫2匹まで。敷金1ヶ月上乗せ、償却1ヶ月)/定期借家契約(期間:2年間/再契約:相談)/保証会社加入必須(初回保証料:総賃料の50%〜、1年ごとに更新料:10,000円〜)/専用駐輪スペースあり/バイク置場あり(賃料に含む)/駐車場あり(賃料に含む)/楽器演奏可(ピアノなど大型楽器の持ち込みは事前に相談ください)/要火災保険契約 | ||
| 情報修正日時 | 2026年2月7日 | 情報更新予定日 | 2026年3月26日 |
あなたにおすすめの物件


