|
|
|||||||||||||||||||||
裏路地文化のポテンシャル |
||||||||||||||||||||||
|
||||||||||||||||||||||
|
||||||||||||||||||||||
|
||||||||||||||||||||||
|
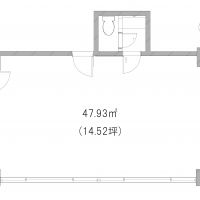
裏路地文化の根付く下町、神保町。 「錦華通り」から一本入った路地の角地に立つ古ビル。これまで5区画ほどご紹介してきたこの建物には、建築設計事務所、デザイン事務所、レコーディングスタジオなどが入居し、路面にはスタジオ・ギャラリーも構えています。気づけばこのビル全体が、神保町らしい「つくる人の場所」として静かに育ってきました。今回はそんなビルのリノベーションした二区画のご紹介です。 せっかくすてきな内装に仕上げたのに、退去するときに普通のオフィスの内装に戻さなければならない、通常の原状回復文化を考えると、昨今右肩上がりな改装費と、原状回復費どちらも抑えられるのは大きな魅力。 いずれの区画も、特徴はワイドに取られた南側の約7m幅の水平窓。おかげで部屋全体がやわらかい光で満たされます。また天井を撤去したシンプルなかたちの間取りなので、好みのレイアウトを組みやすいと思います。 2020年にリノベーションした、窓台の天板が石素材の201号室。すこしクラックが入っていますが味わいを感じられるポイント。奥行きが約30cmあるので飾り棚としても使えそうです。 リノベーション後の写真を掲載しているため、現況の床と異なります。似た色味のタイル張りに変更していますので、ご承知おきください。 続いて、改装にあたり2部屋を一つにまとめた301号室。床はPタイルを剥がしてクリア塗装仕上げで個性を出しました。こちらは2023年のリノベーションです。 用途は事務所のほかに店舗もご相談。多くの人が行き交う通りではないぶん、店舗の場合は、ここをめがけて訪ねてくるお客さんを迎えるような業態に向いていると思います。 神保町駅から歩いて5分。オフィス街のど真ん中ながら、東へ歩けばすぐ「錦華公園」というロケーション。 ステキにこの空間を使ってくださる方に巡り会えることを、楽しみにしています。 201号室 46.91㎡/賃料225,500円(税込) 301号室 47.93㎡/賃料225,500円(税込) *管理費は全室5,500円(税込) ※写真は全て前回募集時の改装後のもの ※入居中につき下見はテナントさんと日程調整のうえ、ご相談(引き渡しは4月中旬以降でご相談) |
![]() |
|
| 光の中に包まれるような、南側の水平窓(301号室) |
|
| 築57年の深みを感じられる空間を生かしたリノベーション(201号室) |
|
| レトロな雰囲気が残った室内。建具はグレーに塗装(201号室) |
|
| 二面が通りに面した角地の外観。路地に溶け込むように立つレトロビル |
|
|
| 賃料 | 22万5,500円(税込) | 専有面積 | 46.91㎡~47.93㎡ |
| 敷金 | 3ヶ月 | 礼金 | 1ヶ月 |
| 償却 | なし | 管理費 | 5,500円(税込) |
| 所在地 | 千代田区神田猿楽町 | ||
| 交通 |
半蔵門線・都営新宿線・都営三田線「神保町」駅 徒歩5分 中央線「御茶ノ水」駅 徒歩7分 |
||
| 建物構造 | 鉄筋コンクリート造 5階建て | 所在階 | 2階・3階 |
| 築年 | 1969年 | 取引態様 | 媒介 |
| 設備 | エアコン | ||
| 備考 | ペット不可/定期借家契約(期間:4年/再契約:相談)/光熱費:33,000円/水道代:2,640円/募集戸数:2戸/保証会社利用必須(初回保証料:月支払い総額の100%、更新料:月支払い総額の10%)/連帯保証人必須/飲食店不可/要火災保険契約 | ||
| 情報修正日時 | 2026年3月13日 | 情報更新予定日 | 2026年5月22日 |
あなたにおすすめの物件

