|
|
|||||||||||||||||||||
心機一転 カオスな町へ! |
||||||||||||||||||||||
|
||||||||||||||||||||||
|
||||||||||||||||||||||
|
||||||||||||||||||||||
|
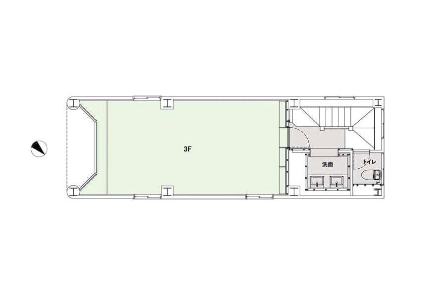
カオスな都心の小さなビルに空きが出ました。1フロアに1組、計3組でシェアする一棟は、最上階にごきげんな屋上が待っています。 東京にいても、案外足を運んだことのない人が多いここ馬喰横山は、日本最大とも言われる江戸時代からの問屋街。周囲は衣料中心の卸問屋がひしめき合い、目的もなく迷い込む人の姿はほとんどなく、初めて来ると旅人同然、異世界感たっぷりの町並みがとても新鮮です。 最近はそんな町のすき間や周辺に、クリエイティブな若い世代が徐々に居場所を見出していて、話題のシェアオフィスや気の利いた飲食店など、新しい風が吹いています。新旧&異業種と、グラデーションのない交錯ぶりは、住むにも働くにもワクワクするカオスな環境です。 今回募集するのは、3階の部屋。4年前に一棟丸ごとざっくりとリノベーションされ、2,3,4階の各フロアは30㎡にも満たない部屋なので、水回り機能は室内に持ち込まず、共用部に設けて3組でシェアする形です。 おかげで室内が全て有効に使える上、室内に詰め込むより勝手のいい設備が使えるメリットも。トイレだけでなく、洗面・洗濯・シャワー・キッチンまで完備されているから、住めるオフィスにもできそうです。 最大の楽しみは屋上で、隣接するキッチンからそのまま外に出て食事ができちゃうし、シェアする仲間と楽しい交流だって生まれそう。都心で働きながら、青空の下でゆるゆる仕事したり、人と話せたりと、部屋以外の居場所や仲間に付加価値を感じられる人におすすめです。 室内は白塗装にタイルカーペットと極めてシンプル。家具や照明やラグをツールに自分らしく彩っていくイメージで、特徴のある窓回りをうまく活用したいところです。改装は内容次第で相談に応じます。 1階の店舗は日替りのコーヒースタンドが営業中で、こちらも通うごとに仲間うちの距離感が生まれ、日々の楽しみが増えそうです! ※エレベーターなし ※館内は禁煙&下足禁止(1階の共同玄関から靴を脱ぐスタイル) ※写真は全て前回募集時のもので現況優先となります (*マークの写真は全て 撮影:千葉正人) ■3F(29.69㎡) 賃料:198,000円+管理費:4,400円+光熱費:22,000円 =月額合計:税込 224,400円 |
![]() |
|
| カオスな問屋街に潜むワクワク感 * |
|
| 1階は現在コーヒースタンドが営業中、左奥の共同玄関から靴を脱いで館内に * |
|
| 3階: 突き当りの窓が印象的、足元の段差はベンチ代わりに使えそう * |
|
| 3階: 町の変化を見守る大きなモニターみたいです(現在は道を挟んで目の前にビルが建っています) * |
|
|
| 賃料 | 19万8,000円(税込) | 専有面積 | 29.69㎡ |
| 敷金 | 1ヶ月 | 礼金 | 1ヶ月 |
| 償却 | なし | 管理費 | 4,400円(税込) |
| 所在地 | 中央区日本橋馬喰町 | ||
| 交通 |
都営新宿線「馬喰横山」駅 徒歩2分 総武快速線「馬喰町」駅 徒歩2分 都営浅草線「東日本橋 」駅 徒歩4分 日比谷線「小伝馬町」駅 徒歩6分 |
||
| 建物構造 | 鉄骨造 6階建て | 所在階 | 3階 |
| 築年 | 1979年 | 取引態様 | 媒介 |
| 設備 | エアコン/キッチン・シャワー・洗面・トイレ(全て共用)/共用部備品(冷蔵庫・洗濯機・掃除機・電子レンジ・調理器具・食器等)/Wifi | ||
| 備考 | ペット不可/定期借家契約(期間:2年間/再契約:相談)/光熱費:22,000円(税込)/禁煙/住居兼事務所可/要火災保険契約 | ||
| 情報修正日時 | 2026年2月2日 | 情報更新予定日 | 2026年5月2日 |
あなたにおすすめの物件


