|
|
|
||||||||||||||||||||
むしろ豊かなシェアハウス |
||||||||||||||||||||||
|
||||||||||||||||||||||
|
||||||||||||||||||||||
|
||||||||||||||||||||||
|
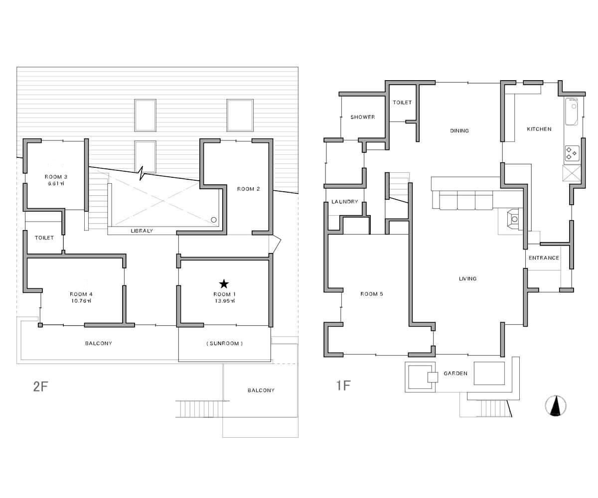
シェアハウスが最初から選択肢にない人や、少し抵抗を感じてしまう大人でも、ここなら検討の余地があるかもしれません。 交流、身軽さ、費用面など、通常のシェアハウスのメリットに加え、ここならではの魅力は、1人では借りることができない建築作品にシェアすることで住めること。ワンルームのアパートでは得られない豊かな空間体験は、シェアのハードルをも飛び越えてくれそうです。 フランク・ロイド・ライトの最後の日本人弟子だった遠藤楽の設計で、家族4人の住宅として建築されたこの建物。家族が集まる場を中心に、そこから家中の気配を感じ取れるような設計は、シェアハウスに改修された今も生かされ、150㎡の空間を5人で悠々と堪能できます。 ダイナミックなリビングダイニングは、吹き抜けの天井が高く、天窓や暖炉が印象的で、5人には贅沢すぎるほどの広さ。物理的な距離感が十分保てるから、共用スペースは交流を楽しむこともできるし、趣味や読書など部屋に籠らずとも自分の時間に没頭できる場にもなっています。 他にも小さな居場所が点在する建物で、リビングの隅っこ、部屋と部屋の間、すてきな庭と、全員在宅していても、各々が好きな場所を見つけマイペースに過ごすことができそう。吹き抜けに面した2階の廊下には、歴代の住人が持ち込んだ本でライブラリーまでできています。 結果的にメンバーは、1人暮らしのように独立した生活スタイルを保ちながら、1人では持てないものを共有し、時間や気持ちが向いたときに合流する。そんなバランスを保った共同生活を実現し、メンバー同士のクリエイティブと生活が交わる場であり続けるよう運営されています。 駅からは少し離れた場所ですが、自転車は屋根ありで駐輪できるし、リモートワークなら、居所が多く息の詰まらないこの環境はきっと貴重なはず。キッチンの充実や庭が使える環境も大きくて、日常の過ごし方ひとつにも自分なりのワクワクを見つけられそうな場所です。 ※写真は2018年入居開始前 / 改修直後の状態です ※撮影:千葉正人 ■room1(13.95㎡) 賃料:75,000円+管理費:4,000円+光熱費:10,000円=89,000円 |
![]() |
|
| 5人全員で集合してもゆったり使えるリビング |
|
| シェアだから実現した豊かな空間体験、建築が持つ力を実感させられます |
|
| 吹き抜けに面したダイニングは天窓から光が届く、右側のドアを開けるとキッチンへ |
|
| ダイニングに居ながらリビングと庭と2階まで見渡せる、垂直にも水平にも奥行あるダイナミックな空間 |
|
|
| 賃料 | 7万5,000円 | 専有面積 | 13.95㎡ |
| 敷金 | 1ヶ月 | 礼金 | なし |
| 償却 | なし | 管理費 | 4,000円 |
| 所在地 | 杉並区今川 | ||
| 交通 |
西武新宿線「井荻」駅 徒歩18分 中央線・丸ノ内線「荻窪」駅 徒歩20分 |
||
| 建物構造 | 木造 2階建て | 所在階 | 2階 |
| 築年 | 1976年 | 取引態様 | 該当せず |
| 設備 | エアコン/共用部備品(冷蔵庫・洗濯機・乾燥機・掃除機・テレビ・電子レンジ・調理器具・食器等)/Wifi | ||
| 備考 | ペット不可/定期借家契約(期間:2年間/再契約:相談)/光熱費:10,000円/契約事務手数料1ヶ月分(入居時)/禁煙/保証会社利用必須/火災保険加入任意 | ||
| 情報修正日時 | 2025年11月17日 | 情報更新予定日 | 2025年12月1日 |
あなたにおすすめの物件


