|
|
|||||||||||||||||||
ちいさなお店のある暮らし |
||||||||||||||||||||
|
||||||||||||||||||||
|
||||||||||||||||||||
|
||||||||||||||||||||
|
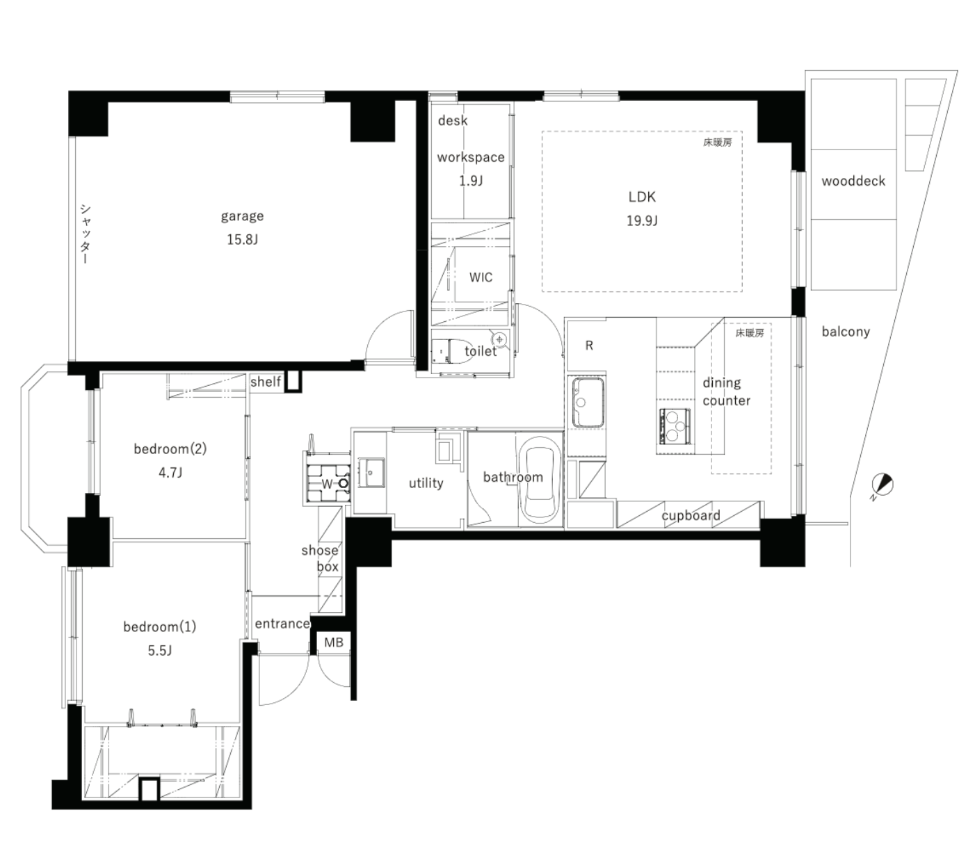
ガレージ付きの、珍しい区画の募集がはじまりました。文京区の落ち着いたエリアに建つ、2LDK(+書斎+ガレージ)のゆとりある住まい。家族が増えても余裕のある広さです。 室内は2025年10月にフルリノベーションされたばかり。設備・内装ともに清潔感があり、収納量も十分に確保されています(エアコンだけ買主側での手配が必要です)。 なかでも特筆すべきはキッチン。備え付けのダイニングテーブルはコンロと一体になり、作る人と食べる人が自然と同じ場に集えるつくり。調理しながら会話ができるので、お子さまの見守りやホームパーティーにも相性が良さそうです。 ダイニングをL字に囲むようにぐるりと収納が配置されていて、大型調理器具から細かなカトラリーまで、追加の棚いらずでスマートに収まりそうでした。 一点だけ、立地は坂の中腹。LDKは半地下のため、光の入りは控えめに感じました。天候によっては日中でも照明をつけたほうが快適かもしれません。ただ、視線の高さがずれることで外からの視線も届きにくく、落ち着いて過ごせるのは半地下ならではの利点です。 リビング脇には半個室の書斎スペースも。リモートワークの多い方でもストレスなく使える、ちょうど良いお籠もり空間です。100㎡超のゆとりある空間の中に、気の利いた+αの工夫が散りばめられている点も、この物件の魅力といえそうです。 そして、この物件のもう一つの大きな特徴がガレージの存在。駐車場としての利用はもちろん(道路との間に段差がある点、注意が必要です)、物置きとして使ったり、子どもを遊ばせるスペースにしたりと、使い道はいろいろ。路面に面しているので、ショップやギャラリーとして街にひらくことも可能です。 パンデミックを経て働き方が多様化したいま、副業として小さなビジネスを始めたり、趣味のものづくりを外に向けて発信する人も増えているように感じます。いきなり本業にするのは難しくても、自宅の一部を活用した“スモールスタート”なら負担も少ないはず。マイホーム購入を機に、小商いをはじめる一歩を踏み出すのも良いかもしれません。 文京区小石川は学校が多く、公園も点在する緑豊かなエリア。最寄りの茗荷谷駅までは占春園沿いを歩くルートで、季節ごとに紅葉や桜が楽しめます。にぎやかさを求める方にはやや物足りないかもしれませんが、腰を据えて長く暮らしたい方にはぴったりの、風情ある街並みです。 マンション自体は新耐震基準でまだまだ長く住めそうですし、大規模修繕も定期的に実施済み(1999年と2014年)で、次回は2028年を予定しています。管理の行き届いた、安心感のある住まいです。 今回のリノベーションで室内配管もすべて更新され、当面は手を入れることなく快適に暮らせると思います。 ※写真に写っている家具・雑貨は付属しません |
![]() |
|
| 室内は配管含めてフルリノベーション済み |
|
| マンション外観。坂の中腹にあります |
|
| エントランス向かって左側。シャッターの閉まっている部分がガレージ |
|
| シャッター側からガレージ。右奥の扉からも室内へアクセス可能 |
|
|
| 価格 | 1億2,990万円(税込) | 専有面積 | 108.66㎡ |
| 管理費 | 34,010円 | 修繕積立金 | 32,820円 |
| 所在地 | 文京区小石川 | ||
| 交通 | 丸ノ内線「茗荷谷」駅 徒歩7分 | ||
| 建物構造 | 鉄筋コンクリート造 地下1階付き 7階建て | 所在階 | 1階 |
| 築年 | 1983年 | 土地権利 | 所有権 |
| 面積 | 都市計画 | 市街化区域 | |
| 用途地域 | 第一種住居地域 | 建蔽率/容積率 | |
| その他費用 | 取引態様 | 媒介 | |
| 設備 | 床暖房/IHコンロ3口/食器洗浄機/追いだき/浴室乾燥機/追いだき | ||
| 備考 | ペット不可/施工会社:不二建設株式会社/管理会社:日本ハウズイング株式会社/管理形態:全部委託/総戸数:38戸/バルコニー面積:12.44㎡/現況:空室/引渡時期:相談/駐輪場あり(空きあり、月額200円)/駐車場あり(空きあり、月額35,000円、幅2200・高さ1650)/1階・路面(ガレージを路面店に転用可能) | ||
| 情報修正日時 | 2025年11月18日 | 情報更新予定日 | 2026年2月2日 |
あなたにおすすめの物件


