第5回 出来てきた!
お待たせしました、今回は現場の様子を紹介します。
(今回は、写真メインでお送りします。)
工事も順調に進み、着々と出来てきています。

A棟2F、壁や天井を抜いたらこんな感じに。がらんとして、ちょっと倉庫みたい。 写真左右、空間が奥に奥に続いています。(図面中①)

反対の部屋からみたところ。 写真の右側が新しく開けた通路で、2Fをぐるっと一周できるようになりました。(図面中②)

工事が進んで引き戸がつきました。 開けた状態だと大きな空間、閉めると手前の空間が個室になります。

ドアを閉めるとこんな風。

ここはもともと和室だった部屋。右側には大きな収納があります(最近トビラも付きました)。 写真左側の窓から庭のデッキテラスに出られます。(図面中③)

リビング側から見てみると、こんな感じ。窓の外にはまだまだ工事中の庭が。(図面中④)

各住戸、壁にアクセントカラーを入れていて、B棟1Fは、光沢のあるチョコレート色の壁。 庭を囲んで落ち着いた雰囲気になってます。(図面中⑤)

あの屋根裏とつなげた吹き抜けの部屋、壁を白く仕上げていったら、こんな風になりました。 梁と白壁で不思議な雰囲気が出ております。(図面中⑥)

上から見下ろしたらこんな感じ。白壁に梁の色が映えてキレイです。

そして全体はこんな感じ。(図面中⑦)
ここ、天井がかなり高くて、おまけに屋根裏にあったトップライトから下までフワッと光が落ちてくるのです。(寝転んでみたら気持ちがよかった...…。)
ちなみに、奥に見えている白い場所がキッチン。右側の柱のエリアは大きなリビングです。

B棟2Fの壁は、焼き芋色。(図面中⑧)
ちなみに、壁の中から出てきていたあの柱たち(ブログ4回目、出てきた柱に登場)、今こんな感じの存在感になってます。
実に堂々と、空間に参加しています。
写真左側に見えている引き戸のところは、新しくできた通路で、その奥の白いタイルの小部屋は、洗濯室。さらに洗濯室の奥にはキッチン、そしてリビングがあります。
元々の廊下は写真右側に少しだけ見えていて、リビングへ繋がってます。
こっちも一周できるようになりました。

A棟B棟、ただいま塗装中。(図面中⑨) 外側は工事真っ最中、です。カバーが取れたら白くきれいになっている予定。
以上現場レポートでした。
予定通り、明るくて気持ちのいい空間ができてます。
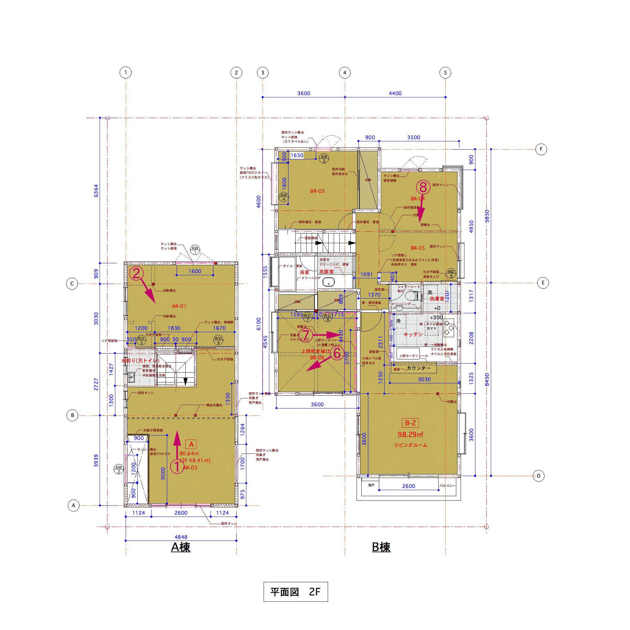
図面はコチラ↓。クリックで拡大します。
(図面中に記した番号は、写真の番号と対応しています。)
さて次回でいよいよこのブログも最終回。
次回は内見のお知らせも合わせて行う予定ですので、どうぞご覧下さい!
このブログについて東京R不動産を共同運営している建築設計事務所 Open A が設計中の物件についてレポート。題して「プロジェクトブログ by Open A」。
第2弾となる今回は、桜上水にある木造住宅をリノベーションする模様をお伝えします。
Open Aとは東京R不動産を共同運営している設計事務所。日本橋の裏路地にある倉庫を拠点にしている。月曜の夜にはスタッフ全員でサッカーをする運動系アトリエ。空間を身体で感じるように努めている。最近の仕事は、東京でのリノベーションや集合住宅、房総半島の家々、オフィスインテリアなど。東京R不動産ディレクターの馬場正尊が代表。
Open AのHP
著者紹介吉野美奈子(Open A)



