第4回 めざしたのは広々感!
今回の建物は、もともと普通の木造住宅なので、玄関、廊下、個室、トイレ、洗面所、お風呂、キッチン、リビングルーム、和室...。壁も部屋もたくさんあります。でも、約100平米の広い住宅も、こんなに細かく仕切られていると、あまり開放感が感じられなくてちょっともったいない感じ。空間が細切れで、「広々感」が消えています。
そこで、考え方を変えてみました。
計画をするとき、「個室×人数分」ではなく、それよりも、共用スペースのあり方を考えました。「個室」はあくまで、「寝る部屋」「こもれる部屋」という捉え方で必要最小限の面積にとどめ、残りはなるべく「オープンスペース」に。大きなワンルームを作るような感覚で、要らない間仕切り壁、トビラ、フスマはどんどん取っていきます。そうすると出来た空間は、全部ががらんと見渡せる、ってわけじゃないけど、部屋が奥へ奥へ、途切れずにつながっていく感じ。一気に広い感じが出てきました。
そしてもう一工夫。
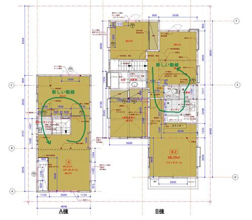
一本道だった廊下には、回遊性があるような「新しい動線」を作り、動きを出しました。だって「ぐるっと回れる」って、なんか楽しくないですか?もちろん使い勝手もしっかり考えて、のことです。

さっきまでごくごく普通の住宅だったはずなのに、不思議。
広々としてイキイキと動きのある空間に変わってきました。
個室以外のオープンな「場所」って、どういう使い方があるのでしょう。
たとえば、
大きな机とPCを置いて、家族みんなの共用勉強部屋。
家の本を一カ所に集めて、図書室。
広いスペースがとれるから、バサッとものも広げられます。
大きなソファを置いて、もう1つ雰囲気の違うリビングを作ってみる。
きれいに飾っておきたいものが多いコレクターさんにはうってつけ。
「こもれる部屋」と「オープンな空間」、2種類あるから、家の中で仕事をするのにも向いてそうです。
ちなみに私だったら、
大きな作業机が好きなので、たぶん大きい机をドンと置いて、それから周りに好きな椅子を並べて、PCもってって、なんでもそこでやってるんだろうなあ。
今回の建物は木造住宅。
簡単な間仕切りは取れても、構造上、外せない柱や壁もあります。
このプロジェクトでは、壁は取れるところだけ、出てきた柱や筋交いは動かさず、そのまま残して置くことにしています。

出てきた柱。
壁がなくなって広々の空間に、柱だけが残っている。
これがなかなか良いんです。
昔の間取りを残った柱からなんとなく想像できるのも楽しいし、残った柱が空間をゆったりと仕切っている、というのは案外心地いいものです。
こういうのが、リノベーションの面白いところ。
新築では計画しないようなものでも、不思議に空間に深みがでるんです。
さて、次回はいよいよ「出来てきた!」
現場の様子を写真でご紹介します。
このブログについて東京R不動産を共同運営している建築設計事務所 Open A が設計中の物件についてレポート。題して「プロジェクトブログ by Open A」。
第2弾となる今回は、桜上水にある木造住宅をリノベーションする模様をお伝えします。
Open Aとは東京R不動産を共同運営している設計事務所。日本橋の裏路地にある倉庫を拠点にしている。月曜の夜にはスタッフ全員でサッカーをする運動系アトリエ。空間を身体で感じるように努めている。最近の仕事は、東京でのリノベーションや集合住宅、房総半島の家々、オフィスインテリアなど。東京R不動産ディレクターの馬場正尊が代表。
Open AのHP
著者紹介吉野美奈子(Open A)

