|
|
|
||||||||||||||||||||
世田谷で田舎暮らしと小商い |
||||||||||||||||||||||
|
||||||||||||||||||||||
|
||||||||||||||||||||||
|
||||||||||||||||||||||
|
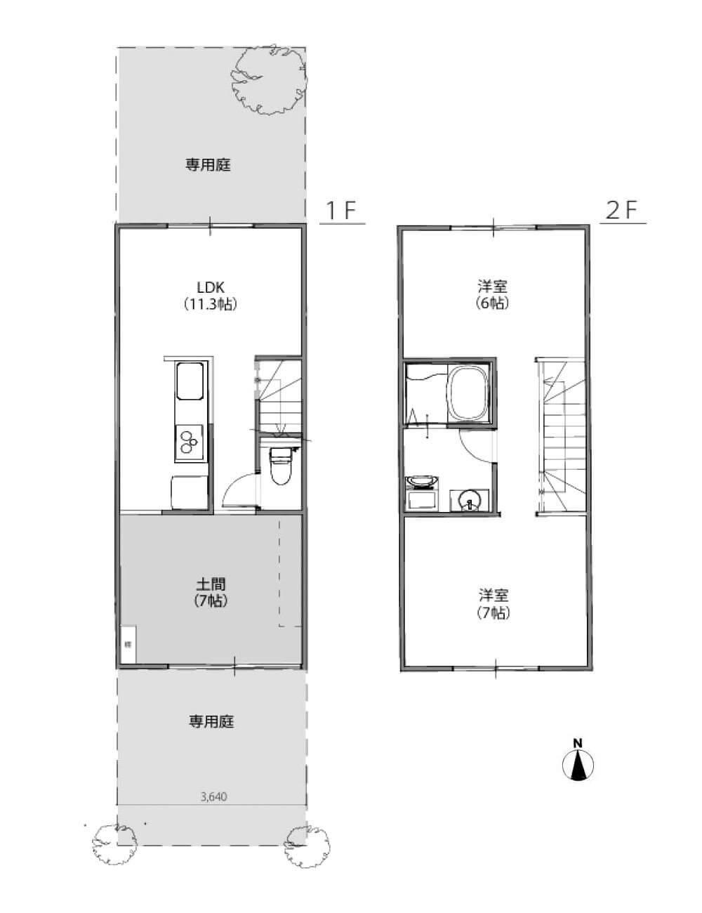
世田谷とは思えないのどかなロケーションで、自宅の土間玄関を使って小さな店を構えられる長屋です。長屋のほかの区画では、住居をベースにお花屋さんや美容室・写真館などがゆるりと営業しています。 駅から距離がある場所なので、通りかかるのはほぼ地元の人。しかも今回募集する区画は、その通りにさえ面しておらず敷地内の奥のほうに位置するため、店の存在を知っている人しかやってこれません。もしお店を開くなら生計を立てるガチの商いというより、口コミを頼りにのんびり始める小商いがちょうどいい感じで、改装も相談できます。 住居以外に利用できるスペースは7帖の土間だけになりますが、今回は上記の理由から個人オフィスの利用のほうが向いているかもしれません。音や匂いや振動がなければ、趣味のアトリエや教室などもイメージしやすく、手頃なサイズの使いやすい空間だと思います。 小商いができる=しなきゃいけないわけではありません。 家の一部を転用する形なら、やってみたいことに低リスクでチャレンジできるし、試行錯誤や方向転換、いざというときは営業を終了しても、住居として使い続けることができるのもメリットです。 シンプルな住居使用でも、広い土間になった玄関は店のように入りやすく、人が集まるリビングとしても大活躍しそう。なんなら気合を入れて、店と見紛うほどすてきにスタイリングしたいくらいです。 土間の奥にはリビングとキッチンが続き、1階は人が集まったり庭と繋がったり、開放的に楽しみたいオンな場所。2階はがらりとモードが変わり、こもってプライベートを過ごせるオフな場所。 注意点はクローゼットなどの収納スペースが何もないことと、2階は壁の仕切りがなく、2つの個室がオープンに繋がっていることです。 隣接するアパートとは良好な関係で、境界なく交わる敷地は自由に行き来ができ、草木に囲まれたすてきな庭では、どちらの住人という境界もなくなり、ときに焚火を囲む夕べが始まることもあるそうです。 地域や人とのゆるやかなつながりを楽しみながら、何気なく見える川や緑に癒しをもらい、世田谷でちょとした田舎暮らしを体験できる場所。リモートワークが日常化し、住む場所の選択肢が広がったいま、移住を見据えた予行練習にも向いているかもしれません。 ※土間部分に限り店舗/事務所など相談可(内容により敷金2ヶ月~) ※ペット飼育相談可(敷金1ヶ月追加) ※駐車場空きなし |
![]() |
|
| 入口の土間部分だけを、店やオフィスに使えます |
|
| 7帖の小さな空間は軽めの改装でも様変わりしそう |
|
| 棚などの残置物はそのまま利用させてもらうことも |
|
| 土間の前は緑の小道と青空が広がる心地いい眺め |
|
|
| 賃料 | 17万5,000円 | 専有面積 | 66.24㎡ |
| 敷金 | 1ヶ月 | 礼金 | 1ヶ月 |
| 償却 | なし | 管理費 | 3,000円 |
| 所在地 | 世田谷区宇奈根 | ||
| 交通 |
小田急線「成城学園前」駅 バス12分 「 」バス停 徒歩3分 東急田園都市線・東急大井町線「二子玉川」駅 バス14分 「 」バス停 徒歩3分 |
||
| 建物構造 | 木造 2階建て | 所在階 | 1-2階 |
| 築年 | 2021年 | 取引態様 | 媒介 |
| 設備 | エアコン/追焚バス/ウォシュレット/モニター付インターホン | ||
| 備考 | ペット可(敷金1ヶ月追加)/定期借家契約(期間:2年間/再契約:相談)/兼用住宅相談可(内容により敷金2ヶ月~)/保証会社利用必須/駐車場空きなし/住居兼事務所可/1階・路面/要火災保険契約 | ||
| 情報修正日時 | 2026年4月30日 | 情報更新予定日 | 2026年5月14日 |
あなたにおすすめの物件

