|
|
|
||||||||||||||||||
のんびりエブリデイ |
||||||||||||||||||||
|
||||||||||||||||||||
|
||||||||||||||||||||
|
||||||||||||||||||||
|
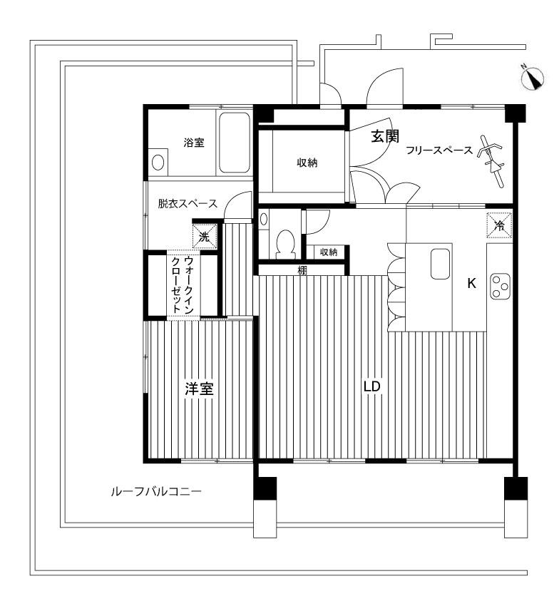
さわやかな風が通り抜け、太陽の光がたっぷりと入る最上階の角部屋。それだけで魅力的なのに、コの字型の広いルーフバルコニーまでついてきます。 そんな素材にひと目惚れしたオーナー。こだわりの世界観ある空間を作り出す工務店「ゆくい堂」とタッグを組み、10年ほど前にフルリノベーションされた空間です。 内装は思わず心奪われてしまうような、完成度の高さ。白い塗り壁とコンクリートむき出しの壁面、幅広の無垢材とモルタル土間。素材のコントラストを見ているだけで、うっとりとしてきます。 大きなキッチンカウンターは人研ぎ(セメントに小さな石を混ぜ、硬化後に研磨したもの)の天板に古材を組み合わせたもの。思う存分料理が楽しめるうえ、収納の機能も果たす空間のアクセント。 玄関入ってすぐの土間は、自転車やアウトドアの道具を置く以外に、アトリエや書斎として使うのにも良さそうな出立ち。また現在の間取りは1LDKですが、この土間部分をいずれか個室にする想定で設計されているため、家族の形に合わせて2LDKとすることも可能です。(買主側での工事が必要です。) 最寄りの駅からは少し距離のある立地ですが、だからこそ得られるのんびりとした空気感が個人的には大好きで。散歩にもサイクリングにもおすすめしたい、多摩川の土手までは歩いて3分ほど。 日中であれば、田園都市線の二子玉川駅や東横線の多摩川駅まで、15分に1本程度バス便が出ています。途中に急な坂道があるので電動であることが必須になりそうですが、自転車で九品仏駅や尾山台駅も使える立地。 内装の良さ、そして居心地の良さ、共に高得点なこの家。のんびりマイペースに暮らしたい方へ心からおすすめしたいと思います。 ※エレベーターなしの4階です |
![]() |
|
| 無垢材や、モルタル、人研ぎなど、さまざまなマテリアルが散りばめられた空間 |
|
| 南西向きの窓からはたっぷりと光が入ります |
|
| 心地よい風が通り抜けていく、実に気持ちが良い部屋 |
|
| ほとんどの壁面を白く塗装した中、あえてキッチン側の壁面は無塗装。キッチンから続く古材のカウンターは作業デスクとして利用中 |
|
|
| 価格 | 6,800万円 | 専有面積 | 78.73㎡ |
| 管理費 | 11,740円 | 修繕積立金 | 26,420円 |
| 所在地 | 世田谷区玉堤 | ||
| 交通 |
東急東横線「田園調布」駅 徒歩19分 東急東横線・東急多摩川線「多摩川」駅 バス3分 「玉川温室村」バス停 徒歩3分 東急田園都市線・東急大井町線「二子玉川」駅 バス8分 「玉川温室村」バス停 徒歩3分 |
||
| 建物構造 | 鉄筋コンクリート造 4階建て | 所在階 | 4階 |
| 築年 | 1980年 | 土地権利 | 所有権 |
| 敷地面積 | 1,167.08㎡ | 都市計画 | 市街化区域 |
| 用途地域 | 第一種中高層住居専用地域 | 建蔽率/容積率 | 60%/200% |
| その他費用 | 取引態様 | 媒介 | |
| 設備 | 宅配ボックス | ||
| 備考 | ペット不可/地目:宅地/分譲会社:株式会社三明・三明建物株式会社/施工会社:大末建設株式会社/管理会社:日本ハウズイング株式会社/管理形態:全部委託/総戸数:22戸/バルコニー面積:35.97㎡/現況:居住中/引渡時期:相談/オートロックなし/駐輪場空きあり(月額300円)/バイク置き場空きなし(月額2,000円)/駐車場空きなし(月額13,000円) | ||
| 情報修正日時 | 2026年4月24日 | 情報更新予定日 | 2026年5月8日 |
あなたにおすすめの物件

