|
|
|
||||||||||||||||||||
軽重のハーモニー |
||||||||||||||||||||||
|
||||||||||||||||||||||
|
||||||||||||||||||||||
|
||||||||||||||||||||||
|
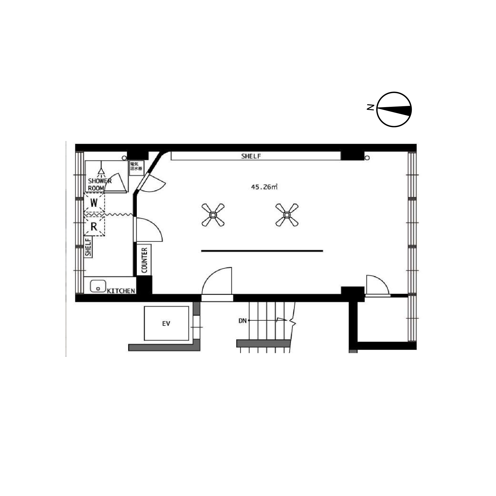
東京の中心、千代田区。オフィスビルが密集するエリアに佇む、黒タイルが渋いレトロなビル。 ずっしりとした扉を開けると、外観からは想像しにくい、品よく整えられた空間がお出迎え。この街で、ちょっと上品なオフィスを構えてみませんか? 広さは、4〜5人での利用にちょうどよいサイズ感。躯体表しのラフで重厚なベースに、ライティングレールや半透明のガラスパーテーションといった軽やかな要素を重ねたつくり。重さと軽さが心地よく調和しています。 日中は南向きの大きな窓からたっぷりと光が入り、室内を明るく照らします。ブラインドを閉めれば一転、しっとりと落ち着いた雰囲気に。時間帯やシーンに応じて、異なる表情を楽しめそうです。 備え付けの大きな棚は使い勝手が良く、スピーカーまで設置されているのも嬉しいポイント。仕事に集中するための環境はしっかり整っています。 バックヤードにはシャワールーム付きのゆとりある水回りがあり、メインスペースと切り分けられている点も好印象です。ご注意いただきたいのは、トイレは専用ではなく共用部のものを利用する形となります。 徒歩5分圏内に6路線が集まる、アクセスの良さも特長のひとつです。クライアントを招くにも、申し分のない立地。 周辺はオフィスだけでなく、スポーツ店や大学も集まる落ち着いたエリア。古くからの喫茶店や飲食店も点在し、新旧が混ざり合う街の空気も、この場所の魅力です。 重さと軽さが心地よく調和する、品のある空間。古ビルの渋さと、この上品な空間とのギャップに、グッとくる方も多いのではないでしょうか。 |
![]() |
|
| 上品な空間に仕上げられています |
|
| ガラスパーテーションが、動線をやわらかく区切る |
|
| 南向きの大きな窓 |
|
| 外観。レトロな黒タイルが渋い |
|
|
| 賃料 | 33万円(税込) | 専有面積 | 45.26㎡ |
| 保証金 | 3ヶ月 | 礼金 | 1ヶ月 |
| 償却 | 2ヶ月分(税別) | 管理費 | なし |
| 所在地 | 千代田区神田小川町 | ||
| 交通 |
丸ノ内線「淡路町」駅 徒歩1分 千代田線「新御茶ノ水」駅 徒歩1分 半蔵門線・都営新宿線・都営三田線「神保町」駅 徒歩5分 中央線・丸ノ内線「御茶ノ水」駅 徒歩5分 |
||
| 建物構造 | 鉄筋コンクリート造 地下1階付き 5階建て | 所在階 | 3階 |
| 築年 | 1974年 | 取引態様 | 媒介 |
| 設備 | エアコン2基/ミニキッチン/シャワールーム/トイレ(共用)/エレベーター | ||
| 備考 | ペット不可/保証会社利用必須(初回保証料:月支払い総額の100%、継続保証料:月額16,500円)/喫煙不可/2年未満の短期解約の場合、違約金1ヶ月/解約予告3ヶ月前/要火災保険契約 | ||
| 情報修正日時 | 2026年4月11日 | 情報更新予定日 | 2026年4月25日 |
あなたにおすすめの物件


