|
|
|
||||||||||||||||||||
公園の舞台 |
||||||||||||||||||||||
|
||||||||||||||||||||||
|
||||||||||||||||||||||
|
||||||||||||||||||||||
|
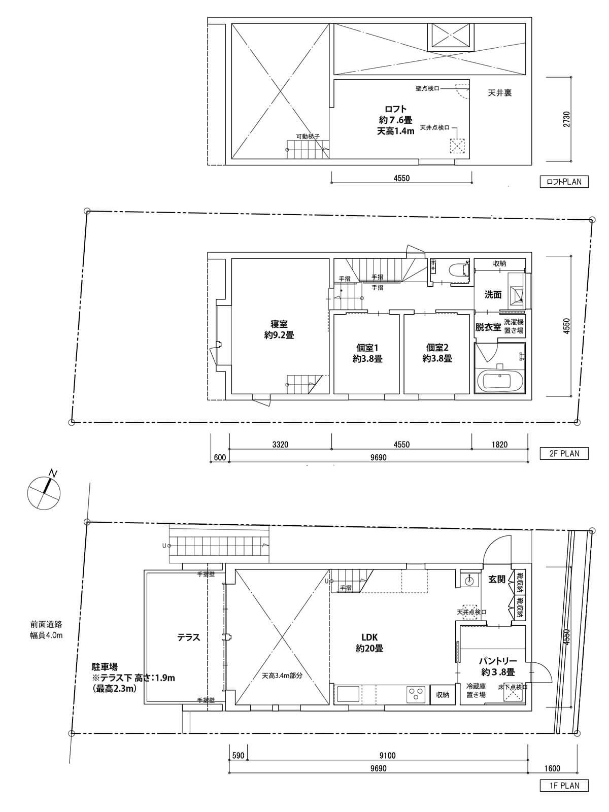
約20畳のLDKに面した広々としたテラス。それはまるで公園の中につくられた舞台のようです。 写真を撮影した日はちょうど桜の花が咲き始めた頃。目の前に広がる公園の木々も、ちょうど芽吹き始めた時期でした。厳密には前面道路がありますが、手を伸ばせば木々に触れられるんじゃないかと思わせるくらい、気持ちのいい景色が楽しめます。 ここは杉並区善福寺。南北それぞれに池がある善福寺公園に面した戸建が今回募集する物件です。周りは静かな住宅街ですが、公園に近いので、割と子どもが遊ぶ声などが聞こえてくる、のどかな場所です。 駅からは距離がありますが、近くにバス停がいくつかあるので、普段の足はバスか自転車になりそう。ちなみに、最寄りのバス停である「善福寺公園」は荻窪駅へ、その他のバス停からは吉祥寺と西荻窪に向かうので、好みで利用する駅を変えてもいいかもしれません。特に荻窪駅は中央線だけではなく丸の内線の始発駅でもあるので、通勤・通学先が丸の内線の駅の方は嬉しいポイントかもしれません。 建物は2024年末に建てられた、約88㎡の3LDKの戸建てです。この物件のハイライトはなんと言っても広々とし、且つ約3.4mの天高のLDK。広さは約20畳で、これまた広々としたテラスが付いています。 キッチンは壁面に機能的につくり込まれ、使い勝手と雑多に見えない工夫が施されています。玄関とキッチンの間にパントリーを儲けているのもポイントですね。 パントリーは文字通り食材等の保管に使用できますが、オーナーさんは家事仕事やお子さんの勉強スペースとしても利用していたとのこと。食材だけではなく、掃除用具や消耗品のストック場所としても利用できるので、入居される方の生活に合わせることができそうです。 2階は水回り・個室・寝室がまとまっています。特筆するのは寝室。この部屋には約7.6畳のロフトがついています。ご家族で暮らしているオーナーさんはこのロフトを寝室として、「寝室」を第2のリビングのように使っているとのことです。 2室ある個室は子ども部屋とファミリークローゼットに使っていますが、どちらもお子さんの部屋として使うことは可能。もちろん、ひと部屋を書斎や仕事スペースにしてもいいかもしれません。 2024年末の建築ということもあり、断熱性能はもちろん屋根に太陽光パネルも設置されています。断熱性能によりエアコンの冷暖房効率が向上するだけではなく、発電した電力を売電もできるのは嬉しいポイントではないでしょうか?ちなみに、この家はオール電化なので、発電した電力は無駄なく自己使用可能です。 テラスの下にある駐車場の高さは、最低1.9m(最高2.3m)。車の駐車をお考えの方は事前にご確認ください。 なぜこんな家を募集するかというと、オーナーさんが海外に赴任することになったため。今のところ定期借家契約4年間の期間限定での賃貸になりますが、性能の良い住宅での暮らしなどを体験できるのはいい機会ではないでしょうか? 将来的にこういった家を持ちたいとお考えの方にも、ぜひおすすめしたい家です。 |
![]() |
|
| LDKに面したテラス。目の前は善福寺公園です。2階相当の高さにあるので、道路からの目線は気になりません |
|
| LDKの壁際にはベンチにもなる棚が。大きな窓から入る日の光と風が心地いい空間です |
|
| キッチンは壁に機能的に収まっています。写真左の扉の中はパントリーなので、意外とごちゃつくキッチンをスッキリ使うことが可能です |
|
| 善福寺公園の木々の隙間から建物を見るとこんな感じ |
|
|
| 賃料 | 29万8,000円 | 専有面積 | 88.16㎡ |
| 敷金 | 1ヶ月 | 礼金 | 1ヶ月 |
| 償却 | なし | 管理費 | なし |
| 所在地 | 杉並区善福寺 | ||
| 交通 |
中央線・丸ノ内線「荻窪」駅 バス9分 「善福寺公園」バス停 徒歩1分 中央線・井の頭線「吉祥寺」駅 バス9分 「桃井第四小学校」バス停 徒歩4分 中央線「西荻窪」駅 バス4分 「桃井第四小学校」バス停 徒歩4分 西武新宿線「上石神井」駅 バス3分 「善福寺」バス停 徒歩5分 西武新宿線「上石神井」駅 徒歩21分 中央線「西荻窪」駅 徒歩23分 中央線・井の頭線「吉祥寺」駅 徒歩25分 |
||
| 建物構造 | 木造 2階建て | 所在階 | |
| 築年 | 2024年 | 取引態様 | 媒介 |
| 設備 | エアコン(リビング、個室1、個室2、主寝室、パントリー)/IHコンロ3口/食洗機/浴室乾燥機/ウォシュレット/駐車場:高さ最低1.9m(最高2.3m) | ||
| 備考 | ペット不可/定期借家契約(期間:4年間)/ロフト面積:12.42㎡/保証会社利用必須(初回保証料:月支払い総額の50%、更新料:年額10,000円〜)/禁煙/現在入居中(入居時期は要相談となります)/学区:桃井第四小学校、井草中学校/駐車場あり/楽器演奏可/要火災保険契約 | ||
| 情報修正日時 | 2026年4月11日 | 情報更新予定日 | 2026年4月25日 |
あなたにおすすめの物件


