|
|
|||||||||||||||||||||
おとなの隠れ家-原宿編- |
||||||||||||||||||||||
|
||||||||||||||||||||||
|
||||||||||||||||||||||
|
||||||||||||||||||||||
|
あえてこもり感を重視した、まさに大人の隠れ家のような部屋。 黒いスライドドアを閉めれば、外の世界をシャットアウト。自分だけの世界に没入できる間取りが、この物件の強みです。 スライドドア以外にも、アイランドカウンターやキッチンと、黒い部材が絶妙なバランスで取り入れられているため、どこかスマートな佇まい。 リノベーションにあたって、住宅というよりはショップのようなデザインに重きを置いたとオーナー。収納内にはスポットライトが設けられ、黒い透明の戸を閉めた状態でも、中の物が映えて見える設計です。 こもり感のある室内とは対照的に、室外には思いきり開放感を味わえるデッキ敷きのテラス。残置物扱いですが、外用のソファー&テーブルも付いてくるので、コーヒーブレイクに晩酌にと、存分にくつろいでください。 人の出入りが多くなければ、事務所利用も相談。事務スペースとミーティングスペースといったように、部屋を分けやすく、事務所利用でもすんなりイメージができる空間だと思います。また1階のロビーも事前予約のうえ利用可能なため、来客があった際の打ち合わせはこちらを利用するのも一つの手かもしれません。 うれしいことに今なら、屋根付きの駐車場区画にも空きがあります。またマンションの1階にある、二畳ほどのトランクルームも付いてくるので、アウトドアグッズや仕事道具をしまっておくのにも重宝しそうです。 神宮前にひそむ、大人の隠れ家。スマートに使いこなしていただけたら。 ※写真は前回募集時のもの ※居住中につき、下見は3月27日以降でご相談 |
![]() |
|
| 壁面は漆喰の塗装、床にはグレーのフロアタイル |
|
| ワイドなバルコニーに面した空間 |
|
| ワイドなバルコニーには、オーナーが残したソファーやテーブル。原宿にいながら広い空が楽しめる、癒しの場所 |
|
| 明治通り沿いのレトロマンション。雁行した立ち姿がそそります |
|
|
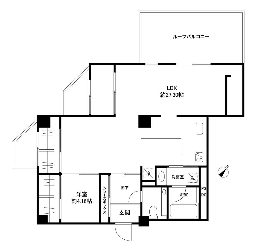
| 賃料 | 42万円 | 専有面積 | 77.85㎡ |
| 敷金 | 1ヶ月 | 礼金 | 1ヶ月 |
| 償却 | なし | 管理費 | 10,000円 |
| 所在地 | 渋谷区神宮前 | ||
| 交通 |
山手線「原宿」駅 徒歩9分 副都心線・千代田線「明治神宮前<原宿>」駅 徒歩8分 副都心線「北参道」駅 徒歩7分 |
||
| 建物構造 | 鉄骨鉄筋コンクリート造 11階建て | 所在階 | 10階 |
| 築年 | 1970年 | 取引態様 | 媒介 |
| 設備 | エレベーター/オートロック/エアコン2基/2口ガスコンロ/追いだき/ウォシュレット | ||
| 備考 | ペット相談可(小型犬が猫どちらか1匹まで、敷金2ヶ月、償却1ヶ月)/定期借家契約(期間:2年間/再契約:相談)/保証会社利用必須(初回保証料:月支払い総額の50%、更新料:年額10,000円)/駐車場空きあり:月額35,000円/駐輪場空きあり:月額1,500円/食洗機は残置物扱い/事務所利用の場合:賃料等に別途消費税、敷金2ヶ月、マンション管理組合へ特別管理費として月額10,000円/駐車場あり/要火災保険契約 | ||
| 情報修正日時 | 2026年3月17日 | 情報更新予定日 | 2026年5月2日 |
あなたにおすすめの物件


