|
|
|
||||||||||||||||||
火の灯る住処 |
||||||||||||||||||||
|
||||||||||||||||||||
|
||||||||||||||||||||
|
||||||||||||||||||||
|
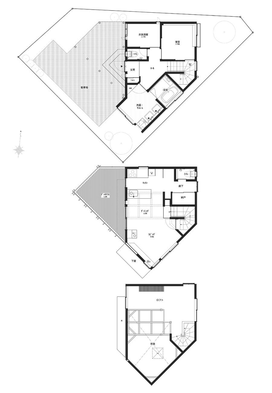
めらめら、パチパチと、燃える火を眺められる家。リビングに憧れの薪ストーブを据え、2012年に建てられた注文住宅です。 ほどよい広さのリビングには、吹き抜けと天窓が設けられ、面積以上の開放感。さらにその先には、床と同じ高さのウッドデッキ。気候が良い時期には窓を全開にして、外と内をあいまいにして過ごしたくなります。 リビングの上には8.9畳ほどの秘密基地感あるロフト。リクライニングチェアなどを置いて、読書したり、好きな映画を見たりと、こもって楽しむ第二のリビングのような感覚で使えそうなスペースです。 全方位に窓があるため、日当たりや風通しは良好。売主は猫を2匹飼っていますが、ウッドデッキでゴロンと休んだり、階段で眠ったりと、時間帯や日の当たる場所によって居場所を変え、心地よさそうにくつろいでいるそうです。 ミニバンでも駐車可能な駐車場があるので、車がある方にもおすすめ。駐車場の奥には小庭があり、家庭菜園も楽しめます。 物件が立つのは、低層の戸建てが広がるとても静かな住宅街。バスや自転車を利用すれば、浦和駅もすぐの距離です。浦和駅から池袋駅までは最短で18分ほど、新宿駅までは24分ほどと、都心部への通勤も問題のない立地。徒歩圏内にはスーパーやドラッグストア、ファミリー向けの飲食店があり、生活しやすい印象です。 自由に暮らせる、小さなかわいらしい戸建て。寒い冬も薪ストーブがあるからなんだか楽しみ。そんな暮らしを始めてみませんか? |
![]() |
|
| 各方向に窓があり、明るい室内 |
|
| リビングには憧れの薪ストーブ。ゆらゆら揺れる炎や、薪の香りが楽しめる |
|
| 斜めに張られた濃いめのフローリングがいい感じ |
|
|
|
| 価格 | 3,500万円 | 建物面積 | 62.12㎡ |
| 管理費 | なし | 修繕積立金 | なし |
| 所在地 | 埼玉県さいたま市南区大字大谷口 | ||
| 交通 |
宇都宮線・湘南新宿ライン「浦和」駅 バス10分 「広ヶ谷戸」バス停 徒歩9分 武蔵野線・京浜東北線「南浦和」駅 徒歩26分 武蔵野線・京浜東北線「南浦和」駅 バス4分 「太田窪五丁目」バス停 徒歩10分 |
||
| 建物構造 | 木造 2階建て | 所在階 | |
| 築年 | 2012年 | 土地権利 | 所有権 |
| 敷地面積 | 106.09㎡ | 都市計画 | 市街化区域 |
| 用途地域 | 第一種中高層住居専用地域 | 建蔽率/容積率 | 60%/200% |
| その他費用 | 取引態様 | 媒介 | |
| 設備 | |||
| 備考 | ペット可/地目:宅地/現況:居住中/引渡時期:相談/庭付き/バイク置場あり/駐車場あり/住居兼事務所可/楽器演奏可 | ||
| 情報修正日時 | 2026年2月25日 | 情報更新予定日 | 2026年3月12日 |
あなたにおすすめの物件


