|
|
|
||||||||||||||||||||
亀戸で基地をつくる |
||||||||||||||||||||||
|
||||||||||||||||||||||
|
||||||||||||||||||||||
|
||||||||||||||||||||||
|
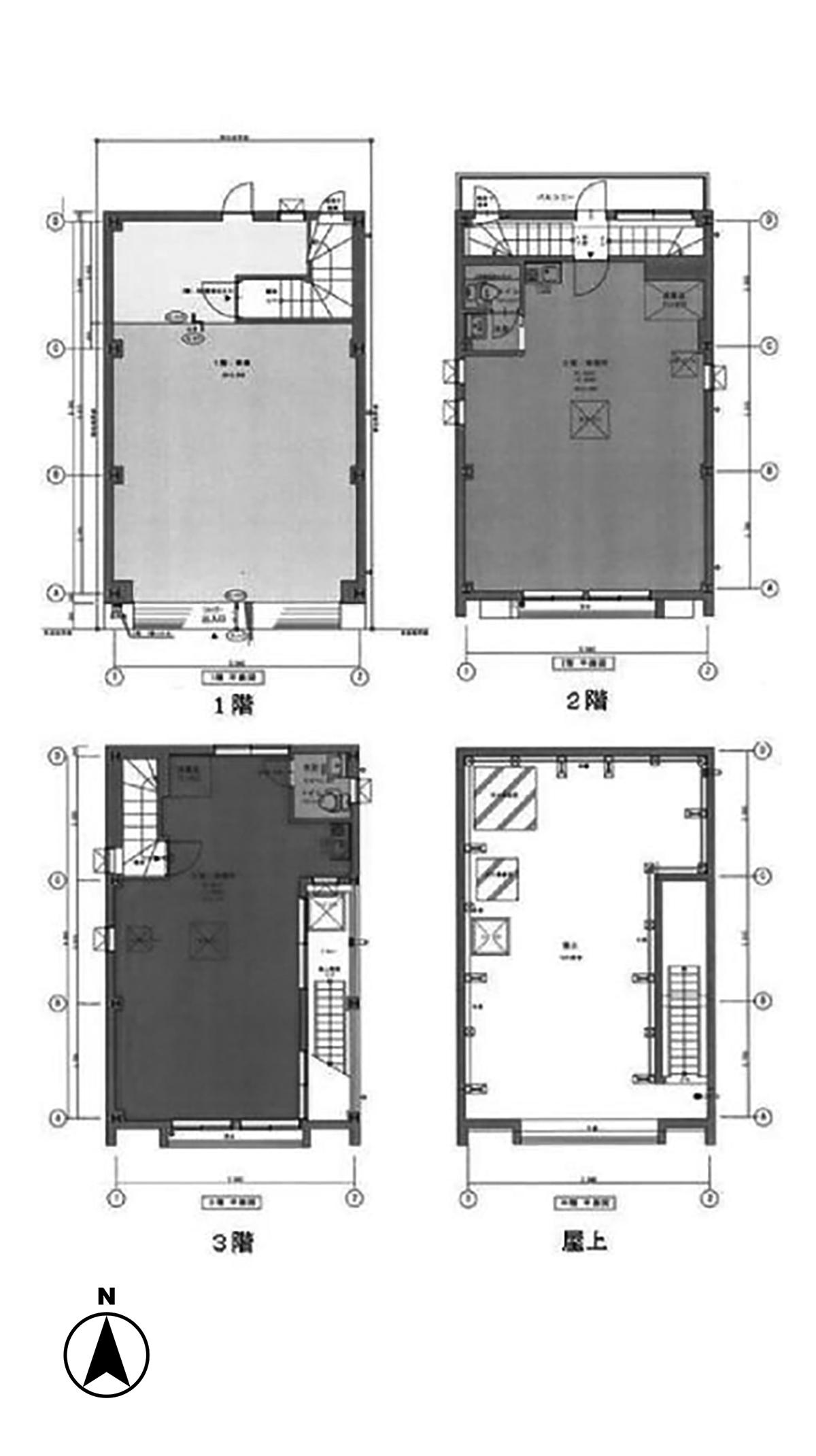
総武線亀戸駅から京葉道路を東へ歩いて10分。下町の空気が残るエリアを超えたあたりに、左右対称の整った顔立ちをしたレトロな一棟ビルが現れます。 一棟借りという贅沢。 1階は電動シャッター付きの土間スペース。車2台が収まる広さがあり、壁と天井に施された水色のペイントがどこか軽やかな印象です。ガレージとしてはもちろん、什器を持ち込んでアトリエやショールームとして使ってもイイ。 2階と3階は、白壁紙にタイルカーペットと、潔いほどシンプルな事務所仕様。 それぞれにミニキッチンとトイレが備わっているので、フロアごとにチームを分けたり、片方をワークスペース、もう片方をストックヤードにしたりと、使い勝手は想像以上に良さそう。 そして仕上げは、3階の外階段からつながる専有の屋上。 周囲の視線を気にせず、亀戸の空を独り占めできるこの場所をどう育てるか。ベンチを置いて一息つくもよし、植物を並べて都会のオアシスにするもよし。 注意事項としては、前面の京葉道路の交通量が多く、車の走行音が大きく聞こえること。静かな環境ではありません。 ガレージ、オフィス、そして屋上。 基地をつくるようなイメージでこの一棟をまるごと使いこなし、自分たちの拠点を築きたい方に。 ※飲食・民泊は不可 |
![]() |
|
| 1F:電動シャッターの前面。高さと幅も十分あります |
|
| 1F:おおよそ5.5m×5.5mのモルタルのスペース。車は2台置けます |
|
| 1F:壁と天井には水色の塗装がされています |
|
| 1F:前面からの視認性も◎。日もしっかり入ってきます |
|
|
| 賃料 | 47万3,000円(税込) | 建物面積 | 156.19㎡ |
| 敷金 | 8ヶ月 | 礼金 | 2ヶ月 |
| 償却 | なし | 管理費 | なし |
| 所在地 | 江東区亀戸 | ||
| 交通 | 総武線「亀戸」駅 徒歩10分 | ||
| 建物構造 | 鉄骨造 3階建て | 所在階 | |
| 築年 | 1972年 | 取引態様 | 媒介 |
| 設備 | エアコン2基(2・3F)/キッチン/トイレ/洗面台 | ||
| 備考 | ペット不可/保証会社利用必須(初回保証料:月支払い総額の100%)/バイク置場あり/駐車場あり/要火災保険契約 | ||
| 情報修正日時 | 2025年12月23日 | 情報更新予定日 | 2026年1月6日 |
あなたにおすすめの物件


