|
|
|||||||||||||||||||||
魅せる働く、モノトーン |
||||||||||||||||||||||
|
||||||||||||||||||||||
|
||||||||||||||||||||||
|
||||||||||||||||||||||
|
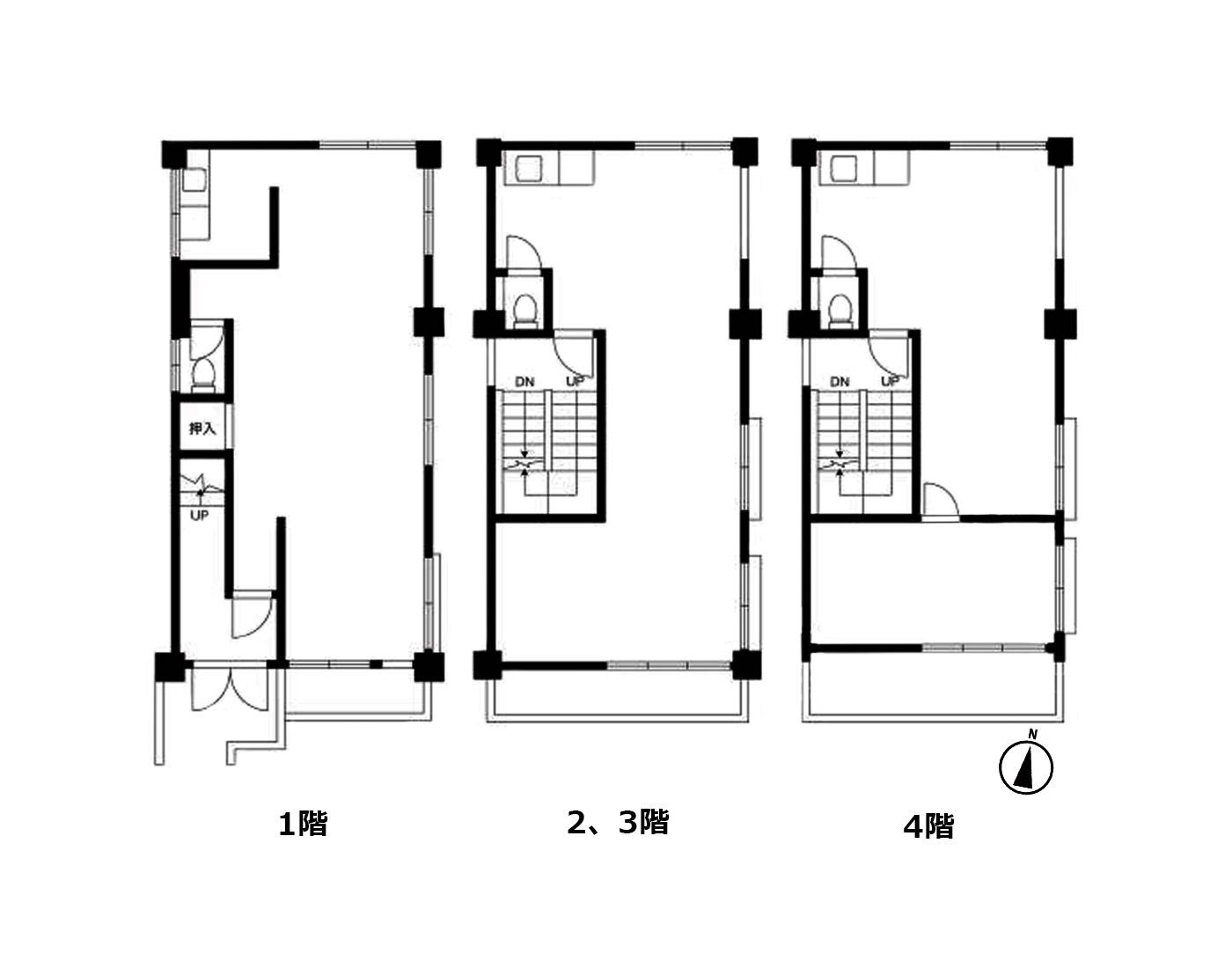
ショールームのあるオフィスにちょうど良さそうな、千駄ヶ谷のレトロな一棟。 原宿駅からは歩いて7分ほど。千駄ヶ谷小学校近くの交差点に立つ、モノトーンの4階建て。各フロアは階段室でしっかりと区切られていて、使い分けがしやすい間取りとなっています。 天井を抜いて雰囲気よく改装された1階は、道路からの視認性も良好。ギャラリーやショールームにうってつけの空間で、会社の顔として良い印象を与えてくれそうです。 都心では貴重な駐車スペース付きというのも良いポイント。ただし出入り口の高さが約2mと低めで、車種によっては駐車できない場合があるのでご注意ください。 まわりには中華やイタリアンなど、ジャンルを問わずおいしい店が点在していて、クライアントとの会食やランチの場所には困りません。利便性に加えて街の魅力も感じられるエリアなので、働く仲間のモチベーションアップにもつながるはず。 都心の立地を味方につけながら、オフィスとしてちょうどいいバランス感を備えた物件です。 |
![]() |
|
| 1階は白塗装の壁天井にモルタル床と、雰囲気よく改装されている |
|
| 奥行きのある空間。ギャラリーやショールームとしてすぐにでも使い始められそう |
|
| 2階以上はタイルカーペット敷きの、オーソドックスなオフィス仕様 |
|
| 建物を正面からみる。ガレージは地下、道路より少し上がったところが1階 |
|
|
| 賃料 | 108万9,000円(税込) | 専有面積 | 209㎡ |
| 敷金 | 6ヶ月 | 礼金 | 2ヶ月 |
| 償却 | なし | 管理費 | なし |
| 所在地 | 渋谷区千駄ヶ谷 | ||
| 交通 |
山手線「原宿」駅 徒歩7分 副都心線「北参道」駅 徒歩6分 |
||
| 建物構造 | 鉄筋コンクリート造 地下1階付き 4階建て | 所在階 | |
| 築年 | 1972年 | 取引態様 | 媒介 |
| 設備 | |||
| 備考 | ペット不可/保証会社利用必須(初回保証料:月支払い総額の100%、更新料:年額10,000円~)/エアコン5基は残置物扱い/エレベーターなし/要火災保険契約 | ||
| 情報修正日時 | 2025年12月23日 | 情報更新予定日 | 2026年4月13日 |
※掲載の情報が現状と異なる場合には、現状を優先するものとします。
あなたにおすすめの物件


