|
|
|
||||||||||||||||||||
楽しみをつめ込んだテラスハウス |
||||||||||||||||||||||
|
||||||||||||||||||||||
|
||||||||||||||||||||||
|
||||||||||||||||||||||
|
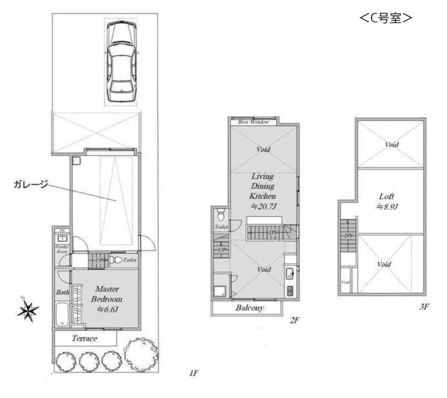
車が置けて、ペットが飼えて、楽器演奏もできる。井の頭公園と吉祥寺は徒歩圏内。そんな楽しげな暮らしのイメージができる条件の揃った新築テラスハウス。 クールな外観とは裏腹に、内装は木のぬくもりを感じるシンプルなデザインというギャップにも、魅力を感じます。 募集はビルトインガレージ付きのC号室と、防音室付きのA号室の2区画。 まずはC号室のご説明から。大切な愛車を屋内に保管できるガレージは、水栓やトイレ、空調付き。しっかりとコンセントも確保されていて、アトリエや事務所としても利用が可能です。 またガレージ前面にも駐車スペースがあるため、2台車を停めるもよし、ガレージをアトリエスペースとして車は前面に停めたりと、生活スタイルに合わせてアレンジすることができます。 ガレージから室内へ入り、1階には寝室、2階には天井が高く開放的なLDK。表記の面積とは別途、8畳ほどのロフトもついてきます。 A号室は1階に防音室と寝室、2階にLDKという間取り。こちらの区画にも表記の面積とは別途、4畳ほどのロフトがついてきます。 防音室は楽器演奏をしたり、好きなレコードや映画を大音量で鑑賞したりと、夢が膨らむスペース。楽器の搬入出がしやすいよう、玄関側のテラスに面しているため、駐車場の車へ玄関を経由せずに楽器等の搬入出が可能です。 2区画ともに1階寝室の先にはウッドデッキと小庭があり、縁側のように腰掛けてプライベートな時間を過ごせます。 物件が立つのは井の頭通りを脇に入った、とても静かな住宅街。家で趣味の時間を存分に楽しみ、外出したくなったら歩いて吉祥寺の街や、愛車に乗って都心まで。朝起きて井の頭公園を散歩なんてコースもいいかもといった具合に、楽しげな暮らしのイメージが次から次にわいてしまう家です。 設計:プラッツデザイン+ベル建築事務所 |
![]() |
|
| C号室:南向きの大きな窓から、太陽の光がたっぷりと入ります |
|
| C号室:リビングは階段を挟んで、ふわりと2つのスペースに別れるイメージ |
|
| C号室:ビルトインガレージ入り口。電動で開閉できるオーニングもついてます |
|
| C号室:ビルトインガレージ内。床はモルタル、天井にはライティングレール。アトリエにも良さそうな空間 |
|
|
| 賃料 | 29万~32万円 | 専有面積 | 77.84㎡~83.02㎡ |
| 敷金 | 1ヶ月 | 礼金 | 1ヶ月 |
| 償却 | なし | 管理費 | なし |
| 所在地 | 武蔵野市吉祥寺南町 | ||
| 交通 |
中央線・井の頭線「吉祥寺」駅 徒歩16分 井の頭線「井の頭公園」駅 徒歩9分 井の頭線「三鷹台」駅 徒歩9分 |
||
| 建物構造 | 木造 2階建て | 所在階 | |
| 築年 | 2025年 | 取引態様 | 媒介 |
| 設備 | エアコン3基/追いだき/ウォシュレット/3口IHコンロ/グリル | ||
| 備考 | ペット相談可(敷金2ヶ月)/保証会社利用必須(初回保証委託料:月支払い総額の40%〜、月額1,000円〜)/喫煙不可/バイク置場あり(無料)/駐車場あり(無料)/住居兼事務所可(賃料等に消費税、敷金3ヶ月、保証会社の条件変更あり)/楽器演奏可/要火災保険契約 | ||
| 情報修正日時 | 2025年12月15日 | 情報更新予定日 | 2025年12月29日 |
あなたにおすすめの物件


