|
|
|
||||||||||||||||||||
静寂の秘訣は、御苑の緑 |
||||||||||||||||||||||
|
||||||||||||||||||||||
|
||||||||||||||||||||||
|
||||||||||||||||||||||
|
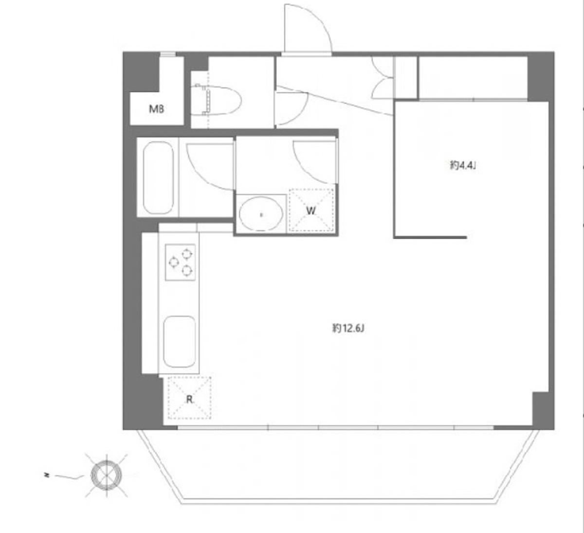
リビング一面の窓の先に広がる、新宿御苑の緑。都市にいながらも、深い森の中にいるような静寂を味わうことができる一室でした。 1969年にたてられたマンション。当初からの築年はかなり経っていますが、建物は外壁含め全体的に改修が行われていて、ピッカピカに整えられた状態。エントランスを抜けると、ホテルライクな空間が続いています。 室内もその雰囲気を受け継ぐように、モダンなテイストで統一された内装です。窓の先に広がる御苑の緑と、いい具合にマッチしている印象を受けました。 部屋のつくりは1LDK。寝室は壁で明確に区切られているわけではなく、透明ガラスで緩やかに区切られています。朝起きて一番最初に見る景色も、御苑の緑になるのではないでしょうか。 1階ながらもセキュリティ面に配慮されているつくりであることも魅力のひとつ。一面が緑で外側からの視線は気になることなく、ベランダの先にもしっかりとフェンスがあるため、不安感はそこまで感じないかと。 立地は外苑西通りと甲州街道の交差点から、一本入った静かな環境。新宿方面と千駄ヶ谷方面、どちらにも行きやすいエリアです。 設備面、セキュリティ面についても申し分のない空間。落ち着いた環境を求めながらも、利便性は切り離せないという方にはピッタリな空間です。 |
![]() |
|
| ベランダからの眺め、大小様々な緑を味わうことができます |
|
| 室内別角度から。床は程よいテイストのフローリング |
|
| 室内別角度から |
|
| マンションは共用部含め改修が行われています |
|
|
| 賃料 | 18万3,000円 | 専有面積 | 41.33㎡ |
| 敷金 | 1ヶ月 | 礼金 | 1ヶ月 |
| 償却 | なし | 共益費 | 15,000円 |
| 所在地 | 新宿区内藤町 | ||
| 交通 |
丸ノ内線「新宿御苑前」駅 徒歩7分 丸ノ内線「四谷三丁目」駅 徒歩7分 都営大江戸線「国立競技場」駅 徒歩11分 |
||
| 建物構造 | 鉄筋コンクリート造 7階建て | 所在階 | 1階 |
| 築年 | 1969年 | 取引態様 | 媒介 |
| 設備 | エアコン/ガスコンロ3口/温水洗浄便座/モニター付きインターホン/追いだき/浴室乾燥機/オートロック | ||
| 備考 | ペット不可/保証会社利用必須(初回保証料:月支払い総額の50%、年間保証料:10,000円、月額保証料:月支払い総額の1.5%)/宅配ボックスあり/駐輪場あり/24Hコールセンター利用料:22,000円/鍵交換費用:38,500円/1年未満の短期解約の場合、違約金として賃料1ヶ月分//バイク置場あり(ミニバイク限定)/要火災保険契約 | ||
| 情報修正日時 | 2026年4月30日 | 情報更新予定日 | 2026年5月15日 |
あなたにおすすめの物件

