台東区竜泉の賃貸物件/12階、最上階からの爽快な眺めを存分に楽しめるルーフバルコニー
台東区竜泉の賃貸物件/少し東に目をやるとスカイツリーも見えます。
台東区竜泉の賃貸物件/ルーフバルコニーを部屋に向かって
台東区竜泉の賃貸物件/南西向きの角部屋で明るいリビング
台東区竜泉の賃貸物件/ルーフバルコニーへ出る窓。日の光もたっぷり取り込んでくれます
台東区竜泉の賃貸物件/西側のベランダから見たリビング
台東区竜泉の賃貸物件/リビングから洋室に向かって。リビングとは引き戸で区切ることができます
台東区竜泉の賃貸物件/6畳の洋室。落ち着きのあるアクセントクロスが貼ってあります
台東区竜泉の賃貸物件/6畳の洋室。こちらにもエアコンもあります
台東区竜泉の賃貸物件/西側ベランダ。こちらも少しゆとりがあるサイズ感
台東区竜泉の賃貸物件/西側ベランダ
台東区竜泉の賃貸物件/西側ベランダからの眺望
台東区竜泉の賃貸物件/洋室のクローゼット
台東区竜泉の賃貸物件/キッチン背面のスペース
台東区竜泉の賃貸物件/3口ガスコンロのキッチン
台東区竜泉の賃貸物件/洗面台
台東区竜泉の賃貸物件/浴室
台東区竜泉の賃貸物件/トイレ
台東区竜泉の賃貸物件/玄関。シューズインクローゼット
台東区竜泉の賃貸物件/玄関外、共用部
台東区竜泉の賃貸物件/オートロックのエントランス
台東区竜泉の賃貸物件/外観

rent   NEW 住宅

入谷の街を最上階から

 
賃料:
19万5,000円
面積:
42.68㎡
所在地: 台東区竜泉
交通: 日比谷線「入谷」駅 徒歩6分/日比谷線「三ノ輪」駅 徒歩8分
共益費 15,000円
敷 金 1ヶ月  礼金: 1ヶ月

◯先行申し込みのみ受付中◯


青空を目いっぱい感じるルーフバルコニーと、開放感のある部屋。ルーフバルコニーから少し東に目をやると、スカイツリーが見えます。


部屋は最上階、12階。ルーフバルコニーはもちろん、部屋の中からでも空が見える開放感がたまりません。リビングは南西向きの角部屋で日当たりも良好です。


内装もまだまだ新しくて清潔感があって、設備も充実。


入谷駅から鶯谷駅までの間にはカフェが多いのが特徴的。辺りを散策してみるのも楽しい街かもしれません。


入谷駅から上野駅までは電車で1分。気軽にアクセスできる距離感に上野があるというのもいいですよね。


※写真はすべて前回募集時のものです。

※現在居住中につき内見不可(内見開始:5月中旬以降予定、ご入居:6月中旬以降予定)

※先行申し込み受付中

先行申込(先着順)→審査可決→内見(契約を進めるかの最終ご判断)→ご契約という流れです。

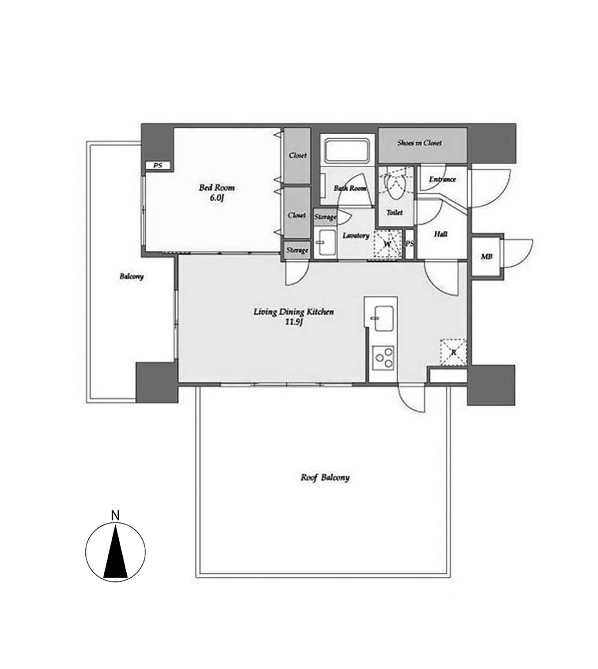
賃料 19万5,000円 専有面積 42.68㎡
敷金 1ヶ月 礼金 1ヶ月
償却 なし 共益費 15,000円
所在地 台東区竜泉
交通 日比谷線「入谷」駅 徒歩6分
日比谷線「三ノ輪」駅 徒歩8分
建物構造 鉄筋コンクリート造 12階建て 所在階 12階
築年 2020年 取引態様 媒介
設備 エアコン2基/浴室乾燥機/追いだき/ウォシュレット/エレベーター/宅配ボックス
備考 ペット不可/駐輪場:無料(1台まで)/無料インターネット:テンフィートライト(他引き込み不可)/保証会社利用必須(初回保証料:月支払い総額の50%、月次保証料:月支払い総額の1%)/鍵交換代:44,000円/解約予告:2ヶ月前/1年未満の短期解約の場合、違約金1ヶ月/法人契約の場合、敷金+1ヶ月/要火災保険契約
情報修正日時 2026年4月28日 情報更新予定日 2026年5月12日
※掲載の情報が現状と異なる場合には、現状を優先するものとします。