|
|
|
||||||||||||||||||||
川とフットワーク |
||||||||||||||||||||||
|
||||||||||||||||||||||
|
||||||||||||||||||||||
|
||||||||||||||||||||||
|
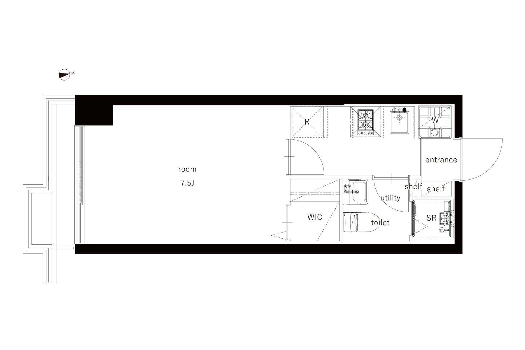
家ではなかなか作業に集中できない。東京の拠点として使える部屋がほしい。そんな願いに応えてくれる、リバービューが楽しめる部屋。 住まいと分けた仕事場や、第二の拠点としておすすめしたい理由はいくつかあります。 まずは五反田駅の近くという利便性。新幹線が使える品川駅へは5分、羽田空港へも30分とかからず、移動が多い方にはかなり使いやすいと思います。山手線と都営浅草線、池上線の3沿線が使えて通いやすいのもポイント。 それに目黒川の一列目というのもたまらない。窓辺に居れば、室内からでも川面が見えます。春には川沿いに咲く桜も楽しめて、オフィス街とは思えない穏やかな時間が流れています。 極めつけは、シンプルながら雰囲気よく整えられた室内。つい最近リノベーションされて設備類も一新。省スペースながらサッと汗を流せるシャワールーム仕様なのもうれしいところ。 今日は頑張ったなぁという日は、角打ちが楽しめる「桑原商店」で一杯やって、名店「おにやんま」で美味しいうどんをすする。ほかにも居酒屋やラーメン屋など、行きつけにできそうな店が揃いぶみ。 なんだか仕事に行くのも楽しみになりそうな居場所です。 |
![]() |
|
| 窓辺から見ることができる目黒川 |
|
| ちょっとへこんだスペースに、棚を収めたい |
|
| 壁天井は白でまとめて、床はオーク材のフローリング |
|
| 外観 |
|
|
| 賃料 | 10万9,000円 | 専有面積 | 21.88㎡ |
| 敷金 | 2ヶ月 | 礼金 | 1ヶ月 |
| 償却 | なし | 共益費 | 4,000円 |
| 所在地 | 品川区西五反田 | ||
| 交通 |
山手線「五反田」駅 徒歩5分 都営浅草線「五反田」駅 徒歩3分 |
||
| 建物構造 | 鉄骨鉄筋コンクリート造 10階建て | 所在階 | 4階 |
| 築年 | 1976年 | 取引態様 | 媒介 |
| 設備 | エアコン/2口ガスコンロ/浄水器/ウォシュレット/エレベーター | ||
| 備考 | ペット不可/定期借家契約(期間:2年/再契約:相談)/保証会社(初回保証料:月支払い総額の50%〜、更新料:年額10,000円~)または連帯保証人必須/事務所利用の場合:賃料等に別途消費税/住居兼事務所可/要火災保険契約 | ||
| 情報修正日時 | 2026年4月1日 | 情報更新予定日 | 2026年4月16日 |
あなたにおすすめの物件


