|
|
|
||||||||||||||||||||
オフィスこそ眺望重視 |
||||||||||||||||||||||
|
||||||||||||||||||||||
|
||||||||||||||||||||||
|
||||||||||||||||||||||
|
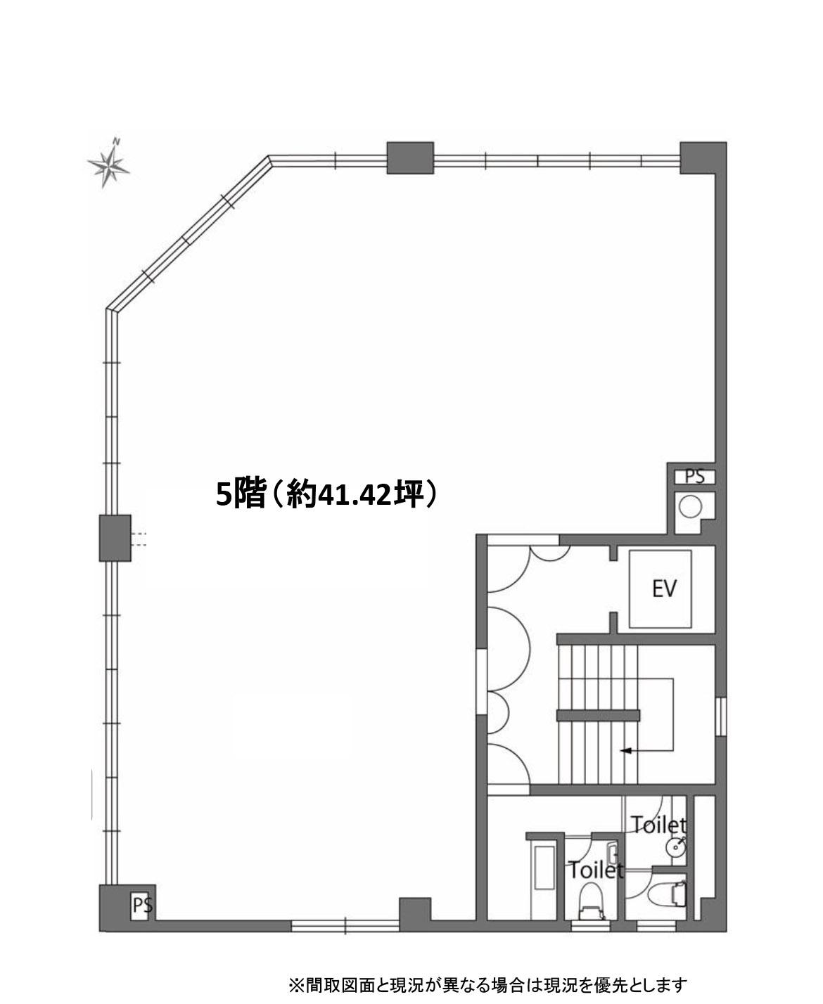
赤坂御用地の、ほぼ “となり”。 一本道をはさんだだけで、景色はもうあちら側。 窓の向こうは、緑・緑・緑! 「オフィス=リフレッシュ?」相反するようですが、そんなオフィスがあったらいいな。という希望的な目線で、こちらの物件を見ていきましょう。 室内写真は前テナントさん入居中(5年まえぐらい)に撮らせていただいたもの。写真は4階部分なので、その上の5階の区画。窓の抜け感だけでも感じてもらえたら。 ※内装は、オフィス仕様にて引渡し予定です(一番最後の写真参照) このビルのいちばんのご褒美は屋上。 共用ですが、ちゃんと開放されています。東京の真ん中なのに、視界をさえぎるものがない。 テーブルとベンチがあって、コーヒーも、ちょっとした作戦会議も。どうぞ存分にリフレッシュしてください。 明治神宮球場の花火も見えそうですね。 仕事の合間に、空を見上げてリセット、意外と大事です。 男女別のトイレと給湯室が各階の共用部にあるため、専有部はまるっと仕事場に。無駄なく気持ちよく使えそうです。 他のフロアには法律事務所や企業向けセミナーの会社など。派手さはないけれど、落ち着きと安心感のある顔ぶれです。気づけば長く入っているテナントが多いのも、なんだか納得です。きっと、交通の利便性からも離れられなくなってしまうのかもしれませんね。 また管理が行き届いていて、清潔感のあるエントランスは、来客がある事務所では大切なポイントになると思います。セコム・防犯カメラが設置されていることに加えて、赤坂御用地がビルの前のため、セキュリティ面も安心感あり。 ※写真は現況と異なります。 ※面積は、給湯室とトイレの面積を含みます。 ※現在賃貸中につき、内見はテナント様のアポイントが必要です。 ※5月上旬退去予定につき、入居は6月中旬以降になります。 |
![]() |
|
| 写真は4階からの眺望、募集区画は5階です |
|
| ベンチで一休み |
|
| リフレッシュタイムはほどほどにね |
|
| 港区赤坂とは思えない、、、 |
|
|
| 賃料 | 59万4,000円 | 専有面積 | 136.94㎡ |
| 敷金 | 6ヶ月 | 礼金 | 1ヶ月 |
| 償却 | なし | 共益費 | 121,000円 |
| 所在地 | 港区元赤坂 | ||
| 交通 |
丸ノ内線・銀座線「赤坂見附」駅 徒歩5分 有楽町線・南北線・半蔵門線「永田町」駅 徒歩6分 |
||
| 建物構造 | 鉄筋コンクリート造 地下1階付き 6階建て | 所在階 | 5階 |
| 築年 | 1969年 | 取引態様 | 媒介 |
| 設備 | エアコン/エレベーター/トイレ・給湯室(共用部) | ||
| 備考 | ペット不可/定期借家契約(期間:3年/再契約:相談)/平置き駐車場55,000円/月(2026年3月31日現在空きあり)/要火災保険契約 | ||
| 情報修正日時 | 2026年3月31日 | 情報更新予定日 | 2026年4月14日 |
あなたにおすすめの物件


