世田谷区太子堂の賃貸物件/コンクリートとフローリングが室内のテイストを程よく整えてくれています
世田谷区太子堂の賃貸物件/天井は約3mほどあり開放的
世田谷区太子堂の賃貸物件/リビング別角度から
世田谷区太子堂の賃貸物件/キッチン周りは紺色のタイルが貼られています
世田谷区太子堂の賃貸物件/室内別角度から
世田谷区太子堂の賃貸物件/キッチン
世田谷区太子堂の賃貸物件/リビングにワイドな収納がついています
世田谷区太子堂の賃貸物件/寝室。3.5畳ほどのスペース
世田谷区太子堂の賃貸物件/寝室別角度から
世田谷区太子堂の賃貸物件/寝室はウォークインクローゼットつき
世田谷区太子堂の賃貸物件/ベランダ
世田谷区太子堂の賃貸物件/廊下
世田谷区太子堂の賃貸物件/バスルーム
世田谷区太子堂の賃貸物件/洗面台
世田谷区太子堂の賃貸物件/トイレ
世田谷区太子堂の賃貸物件/マンション外観

rent   NEW 住宅

オーセンティックなバランス感

 
賃料:
18万4,000円
面積:
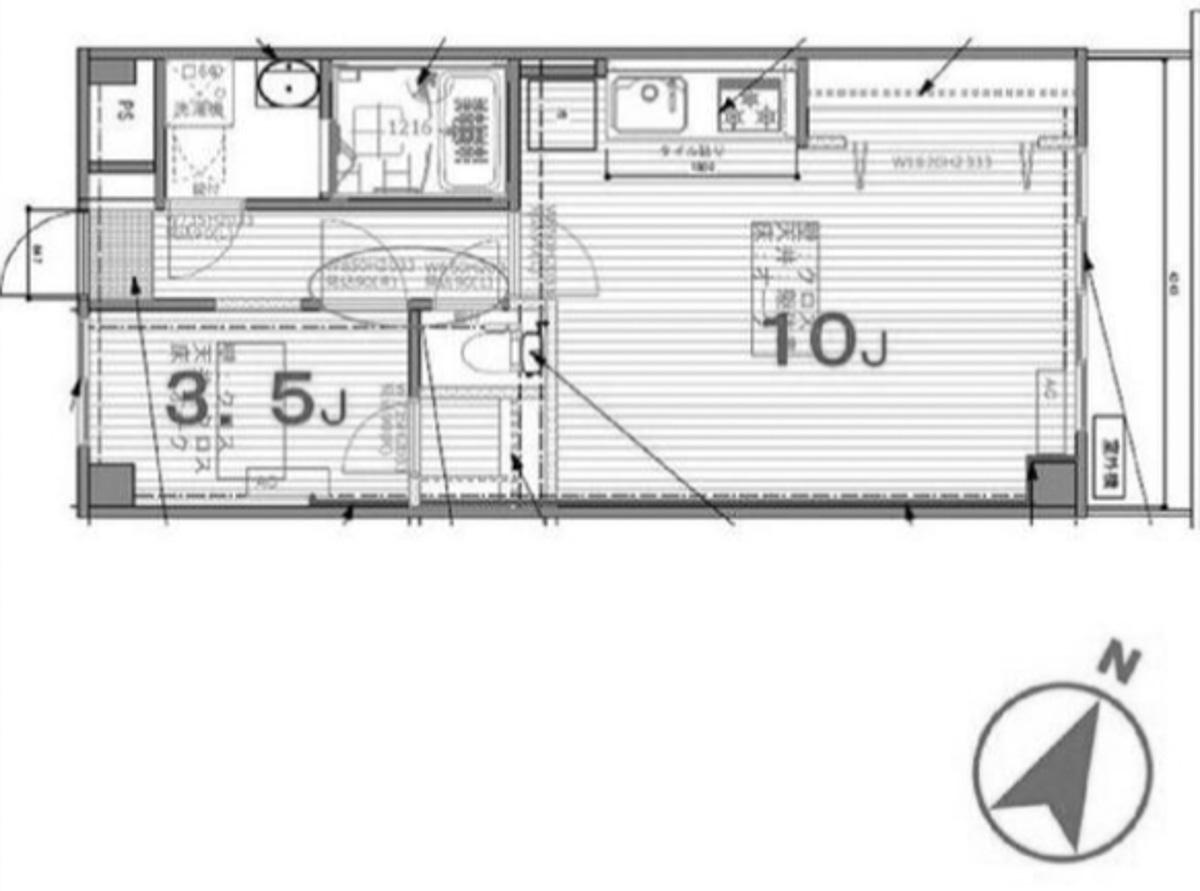
42.75㎡
所在地: 世田谷区太子堂
交通: 東急田園都市線「三軒茶屋」駅/世田谷線「三軒茶屋」駅 徒歩8分
管理費 8,000円
敷 金 なし  礼金: 192,000円

コンクリートの天井と、厚みのあるフローリング。近年よく見るようになった定番の組み合わせですが、やはり定番たる”所以”を感じるようなバランス感覚がありました。


2021年にリノベーションされた一室。フローリングは程よく使用感のあるテイストになっていますが、設備面は綺麗に残されています。


際立った存在感というより、入居者のレイアウトの好みにうまくフィットしてくれるような造作が特徴的。天井のコンクリートやキッチンのタイルも、大切な家具や雑貨の存在感を邪魔しないほどのアクセント加減です。


東に向いたリビング窓の先は、そこまで景観としても抜けているわけではないため、午前中以外は直射が望めません。、日々しっかりと自然光を浴びて生活したいという人には少々物足りないと思うので、ご注意を。


寝室は3.5畳ほどの広さのため、ベッドルームとしての使い方が最大限です。コンパクトながらも、エアコンはついているため快適にこの空間使うことはできそうです。


ひとり暮らし、ふたり暮らし両方にフィットするような間取りと広さでした。


立地は「三軒茶屋」駅から茶沢通りをまっすぐ歩いた住宅街。駅前の華やかな雰囲気から少し距離がある分、落ち着いて過ごせる環境です。


マンションの隣の隣には昔ながらの銭湯「八幡湯」があり、徒歩2分ほどで御神木が有名な「太子堂八幡神社」があったりと、周囲の環境含めて落ち着いた生活をイメージすることができます。

賃料 18万4,000円 専有面積 42.75㎡
敷金 なし 礼金 192,000円
償却 なし 管理費 8,000円
所在地 世田谷区太子堂
交通 東急田園都市線「三軒茶屋」駅/世田谷線「三軒茶屋」駅 徒歩8分
建物構造 鉄筋コンクリート造 3階建て 所在階 2階
築年 1988年 取引態様 媒介
設備 ガスコンロ3口/エアコン/浴室乾燥機
備考 ペット不可/保証会社利用必須(初回保証料:月支払い総額の50%、月額保証料:月支払い総額の1.2%)/鍵交換費用:27,500円/退去時ルームクリーニング費用:47,300円/喫煙不可/宅配ボックスあり/1年未満の短期解約の場合、違約金1ヶ月/要火災保険契約
情報修正日時 2026年3月31日 情報更新予定日 2026年4月15日
※掲載の情報が現状と異なる場合には、現状を優先するものとします。