|
|
|
||||||||||||||||||||
内と外のグラデーション |
||||||||||||||||||||||
|
||||||||||||||||||||||
|
||||||||||||||||||||||
|
||||||||||||||||||||||
|
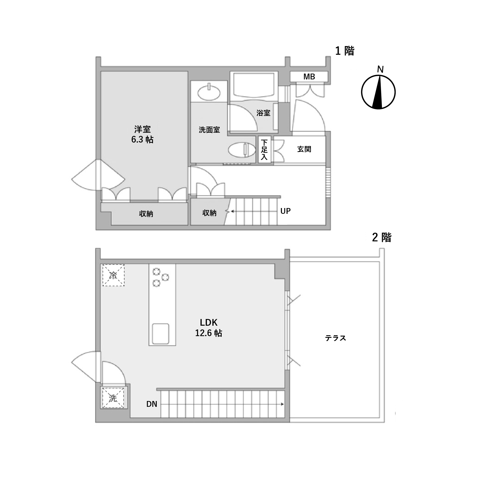
大きな窓を開けると、ゆるやかにテラスとつながる心地よい空間。 テーブルを出してモーニングを楽しんだり、日光を浴びながら読書をしたり。使い方を想像するだけで、ワクワクしてきます。 今回募集するのは、1〜2階のメゾネットタイプの部屋。2階のリビングは、ゆとりのあるキッチンが付いたシンプルな間取り。室内は明るい光がたっぷりと入り、日中は照明いらずで過ごせそう。テラスは高さのある壁で囲われていて、外にひらきながらも、どこか落ち着ける空間となっています。 1階には防音仕様のコンパクトな洋室。寝室として使うのが現実的なサイズ感ですが、プロジェクターを使って大音量で映画鑑賞を楽しんだり、楽器を演奏したりと、趣味を満喫できそうです。 立地は沼袋駅から徒歩10分。駅前には小さな飲食店や昔ながらの喫茶店が並び、どこか気取らない雰囲気が魅力です。近所には哲学堂公園があり、ゆったり散歩するのも気持ちよさそう。自転車があれば中野駅まで気軽にアクセスできます。 外へひらく空間と、内にこもるための空間。その両方があることで、暮らしに自然なグラデーションが生まれる部屋だと思います。 |
![]() |
|
| たっぷりと光が入り、心地よい |
|
| 料理をしながら外を感じる程よい距離感 |
|
| テラスから見たリビング |
|
| 壁に囲われたテラスにさりげなく仕込まれた緑の抜け |
|
|
| 賃料 | 15万7,000円 | 専有面積 | 53.35㎡ |
| 敷金 | 1ヶ月 | 礼金 | 1ヶ月 |
| 償却 | なし | 共益費 | 15,000円 |
| 所在地 | 中野区沼袋 | ||
| 交通 |
西武新宿線「沼袋」駅 徒歩10分 中央線・総武線・東西線「中野」駅 バス10分 「丸山営業所」バス停 徒歩4分 |
||
| 建物構造 | 鉄筋コンクリート造 3階建て | 所在階 | 1-2階 |
| 築年 | 2007年 | 取引態様 | 媒介 |
| 設備 | エアコン2基/IHコンロ/グリル/ウォシュレット/追いだき/浴室乾燥機/宅配ボックス/オートロック | ||
| 備考 | ペット不可/保証会社利用必須(初回保証料:月支払い総額の50%〜、継続保証料:月額1570円)/鍵交換費用:33,000円/駐輪無料//楽器演奏可/要火災保険契約 | ||
| 情報修正日時 | 2026年3月28日 | 情報更新予定日 | 2026年4月11日 |
あなたにおすすめの物件


