|
|
|
||||||||||||||||||||
護国寺ノスタルジー |
||||||||||||||||||||||
|
||||||||||||||||||||||
|
||||||||||||||||||||||
|
||||||||||||||||||||||
|
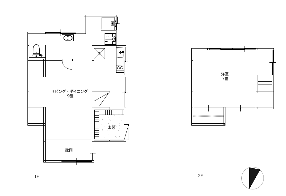
護国寺の落ち着いた住宅街にある、ノスタルジックな木造長屋の一角。 用途は住居兼事務所まで相談可能。生活と仕事をひとつの場所にまとめたい方にも検討しやすい物件だと思います。 間取りは1階にダイニングと水まわり、2階に一部屋とバルコニーという構成です。内装はシンプルな合板仕上げですが、モダンな雰囲気が漂います。 色味や素材に統一感があり、無駄を削いだ造作は古家具や植物などとも相性が良さそうで、住み手が空間を作りこめる余白が残っています。 改装もご相談は可能ですので、具体的なプランをもらえれば貸主側で判断させて頂きます。 2階の居室は三方向に窓があり、日中はやわらかな自然光が入ります。小窓が多く、こもりがちな1階部分にも風が抜けていく、昔の家ならではの工夫もこの家の魅力です。 水まわりはアップデートされており、清潔感がありますが、設備としてはミニマムなつくり。自炊を頻繁にする方や、お風呂での時間を大切にされている方には不向きかもしれません。 築年数相応の木造建築のため、注意点がいくつかあります。 断熱性や気密性は高くなく、季節によって暑さ寒さの影響は受けやすいと思います。建て付けにややクセのある箇所もあり、それも古い物件ならではと受け入れていただける方が向いていそうです。 また、木造長屋ゆえ、隣の方の生活音や在宅の気配はある程度伝わるため、完全に独立した建物の静けさとは異なる環境かと思います。 多少の物音などはある程度お互い様と許容頂きつつ、できれば、古い家を丁寧に使ってくださる方をお待ちしております。 |
![]() |
|
| レトロな照明と建具が素敵な、玄関部分(いい顔ですが店舗は不可です) |
|
| 1階:天井の高いリビングダイニングスペース。ギャラリーのような雰囲気が漂う |
|
| 1階:玄関からのアングルで、土間から上がります。回遊するような間取り。 |
|
| 2階:風も抜け日当たりも良く、時期がよければ気持ちよさそう。寝室兼作業場などに |
|
|
| 賃料 | 14万円 | 専有面積 | 51.30㎡ |
| 敷金 | 1ヶ月 | 礼金 | 1ヶ月 |
| 償却 | なし | 管理費 | なし |
| 所在地 | 文京区大塚 | ||
| 交通 |
有楽町線「護国寺」駅 徒歩10分 丸ノ内線「新大塚」駅 徒歩7分 |
||
| 建物構造 | 木造 地下1階付き 2階建て | 所在階 | 1・2階 |
| 築年 | -年 | 取引態様 | 媒介 |
| 設備 | エアコン | ||
| 備考 | ペット不可/定期借家契約(期間:2年/再契約:相談)/築年不詳/保証会社利用必須(初回保証料:月支払い総額の50%〜)/駐輪場、バイク置き場なし/住居兼事務所利用の場合、賃料等に別途消費税/住居兼事務所可/要火災保険契約 | ||
| 情報修正日時 | 2026年4月5日 | 情報更新予定日 | 2026年4月19日 |
あなたにおすすめの物件


