墨田区業平の賃貸物件/モルタルの床に、白く塗装した壁天井。明るく爽やかな空間にリノベーションしています。1フロア1区画なので、窓が多く、風抜けがいいのも気持ちがいい
墨田区業平の賃貸物件/4階の区画にセットとなった屋上。スカイツリーを仰ぎ見ることができます
墨田区業平の賃貸物件/3階の区画は天井高が約2.9mと開放感があります
墨田区業平の賃貸物件/給湯室もかわいくデザイン。タイル貼りのシンクカウンターを造作しています
墨田区業平の賃貸物件/1階。左手の扉から階段室へ。右手は1階路面店舗として同時に募集をしています
墨田区業平の賃貸物件/1階の扉をあけると黄色いアクセントカラーがかわいい階段室が待っています
墨田区業平の賃貸物件/レトロでかわいい階段室
墨田区業平の賃貸物件/踊り場の照明もかわいい。かなりコンパクトな階段室ですが、上がる時間も楽しくなるようなデザインです
墨田区業平の賃貸物件/各フロア階段室の脇に専用トイレ
墨田区業平の賃貸物件/トイレ。こちら結構コンパクトです。
墨田区業平の賃貸物件/3階フロア
墨田区業平の賃貸物件/3階はフロアにバルコニー付き
墨田区業平の賃貸物件/ライティングレールが設置され、好きな照明がつけられます。フォクトリーランプも好きな位置にアクセントで配置可能です(3階)
墨田区業平の賃貸物件/レトロでかわいいスチールドア(3階)
墨田区業平の賃貸物件/給湯室が右手に(3階)
墨田区業平の賃貸物件/給湯室(3階)
墨田区業平の賃貸物件/4階フロア。こちら断熱の関係で、天井高が約2.6m
墨田区業平の賃貸物件/4階も窓が多く気持ちいい
墨田区業平の賃貸物件/反対のアングルで
墨田区業平の賃貸物件/右奥に給湯室。4階は�入口が給湯室脇に
墨田区業平の賃貸物件/階段で屋上に
墨田区業平の賃貸物件/約30㎡の屋上
墨田区業平の賃貸物件/屋上に電気、水道、シンクがついています
墨田区業平の賃貸物件/4階のテナントは塔屋スペースを倉庫スペースなどに使用可能
墨田区業平の賃貸物件/押上駅B2出口を出ると、このビルが待ち構えています。奥にはスカイツリー。1・2階は店舗で募集中
墨田区業平の賃貸物件/かわいいカラーの扉。これからポスト上にビルサインと照明がつきます

rent   NEW 住宅 オフィス

押上の爽快オフィス

 
賃料:
17万6,000円~19万8,000円 (税込)
面積:
43.14㎡~49.30㎡
所在地: 墨田区業平
交通: 半蔵門線・都営浅草線・京成線「押上」駅 徒歩1分
管理費 なし
敷 金 3ヶ月  礼金: なし

仕事の合間に、屋上へ。スカイツリーを眺めながら、ちょっとひと息。押上駅すぐの古ビルに、屋上付きのリノベーションオフィスができました。


押上駅B2出口を出てすぐの古ビル。一棟リノベーションされた中に、少人数で働くのに程よいオフィス区画をつくりました。


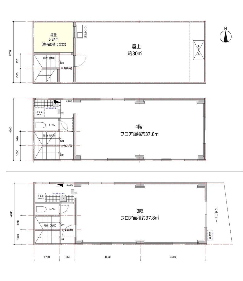
オフィス区画の募集は2つ。屋上つきの4階区画と、屋上は使えませんが天井高が約2.9mと開放感のある3階区画。どちらもそれぞれの魅力があります。


4階の区画は5階の塔屋と屋上が使えるワクワク感が魅力。屋上からはスカイツリーがしっかり見えます。屋上に電源、水道、シンクも用意されているので、ちょっとした打ち合わせや休憩の場としても活躍しそうです。


3階は、約2.9mの天井高。窓にぐるりと囲まれた、明るく気持ちのいい区画です。ちょっとした商品撮影などもしやすく、こちらも魅力的な選択肢になりそうです。


内装はどちらもモルタルの床に白の塗装。シンプルですが、かっこよさも感じる空間に仕上がっています。デスクを並べるだけで、雰囲気のいいオフィスになりそうです。


店舗での利用はできませんが、予約制のサロンのような使い方やショールームのような使い方であれば、相談も可能です。


注意点として、エレベーターはなく、階段でのアクセスになります。階段はコンパクトですが、黄色のカラーがアクセントになった可愛い階段室は、上がる時間も楽しくなるようなデザインです。


建物は一棟丸ごとリノベーション済みで1・2階には店舗区画。下階を組み合わせて借りることも可能です。ショップ+アトリエ、店舗+事務所など、広がりのある使い方も想像できます。


押上といえばスカイツリーのイメージが強いですが、ここ数年、街には小さく個性的なカフェやショップが増え始めています。宿泊施設も多く、外国人の往来も多いエリア。半蔵門線、浅草線、京成線などが利用でき、渋谷・大手町・羽田方面へも一本でアクセスできる立地です。


屋上のある4階か、開放感のある3階か。どちらも気持ちよく働ける場所になると思います。この場所から、押上の次の空気をつくってくれる方をお待ちしています。


■募集区画

4-5階 49.30㎡+屋上約30㎡ 賃料19.8万円(税込)

3階 43.14㎡ 賃料16.7万円(税込)


賃料 17万6,000~19万8,000円(税込) 専有面積 43.14㎡~49.30㎡
敷金 3ヶ月 礼金 なし
償却 なし 管理費 なし
所在地 墨田区業平
交通 半蔵門線・都営浅草線・京成線「押上」駅 徒歩1分
建物構造 鉄筋コンクリート造 5階建て 所在階 3・4-5階
築年 1972年 取引態様 媒介
設備 エアコン/トイレ/電気温水機
備考 定期借家契約(期間:5年/再契約:相談)/募集戸数:2戸/エレベーターなし/保証会社利用必須(初回保証料:賃料の80〜100%、年間保証料:賃料の10%)/要火災保険契約
情報修正日時 2026年4月14日 情報更新予定日 2026年4月29日
※掲載の情報が現状と異なる場合には、現状を優先するものとします。