|
|
|
||||||||||||||||||||
長〜いレトロマンション、その4階 |
||||||||||||||||||||||
|
||||||||||||||||||||||
|
||||||||||||||||||||||
|
||||||||||||||||||||||
|
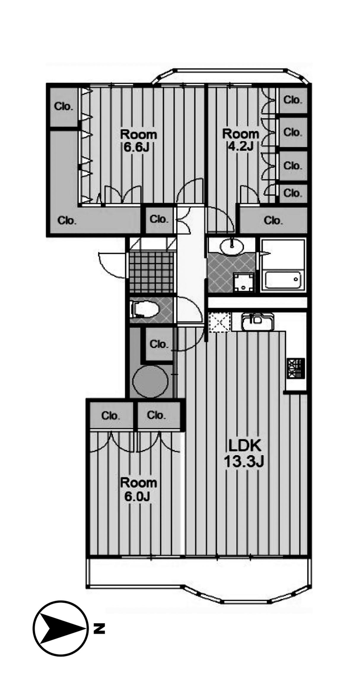
ゆったりとした敷地に、長〜くのびやかに立つレトロなマンションの4階。 約20畳のリビング。これだけ広ければ、ダイニングテーブルだけでなく、お気に入りのソファや大きな観葉植物、なんなら趣味の自転車だって余裕で受け止めてくれます。 窓の外に広がる緑と青空を背景に、自分だけの景色を室内に作り込んでいく。そんな贅沢な悩みが頭をよぎります。 スリムな4.2畳の洋室は集中できるワークスペースに、6.6畳の洋室はゆったりとした寝室に。そんな使い方がイメージできます。 洗面所の扉にさりげなく配されたアーチ状のガラス。浴室を覗けば、そこには懐かしのタイル貼り。このレトロな雰囲気もきっと気に入っていただけるはずです。 そして、「服はすべて収まると思います」と言い切れるほどのクローゼットが、これでもかと備わっています。荷物が多い方も、ここならスッキリとまとめられます。 駅の南側にある『武蔵野プレイス』は個人的にもおすすめのスポット。22:00まで開いているこの場所を、自分の書斎代わりに使う生活もいいですね。 |
![]() |
|
| 上には青空、下には緑。のどかで心安らぐ景色です |
|
| どーんと約20畳のリビングにたっぷり家具を置けます |
|
| 青空と緑が同時にリビングから望めます |
|
| ベランダ。ちょっとだけ、ゆとりのあるサイズ感 |
|
|
| 賃料 | 18万5,000円 | 専有面積 | 83.22㎡ |
| 敷金 | 1ヶ月 | 礼金 | 1ヶ月 |
| 償却 | なし | 共益費 | 15,000円 |
| 所在地 | 三鷹市井口 | ||
| 交通 | 中央線・西武多摩川線「武蔵境」駅 徒歩11分 | ||
| 建物構造 | 鉄筋コンクリート造 4階建て | 所在階 | 4階 |
| 築年 | 1974年 | 取引態様 | 媒介 |
| 設備 | エアコン3基/ウォシュレット | ||
| 備考 | ペット相談可/駐輪場:無料/駐車場:空き要確認(月額:15,000円)/保証会社利用必須(初回保証料:月支払い総額の50%、更新料:年額10,000円〜)/24時間サポート:23,100円(2年間)/要火災保険契約 | ||
| 情報修正日時 | 2026年3月21日 | 情報更新予定日 | 2026年4月4日 |
あなたにおすすめの物件


