|
|
|
||||||||||||||||||
宮古島文化浪漫サロン |
||||||||||||||||||||
|
||||||||||||||||||||
|
||||||||||||||||||||
|
||||||||||||||||||||
|
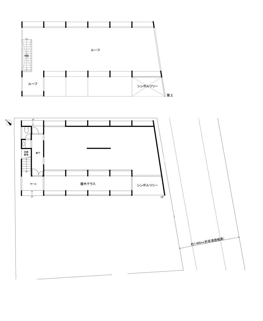
南の楽園、宮古島。1年を通して温暖な気候、コバルトブルーの美しい海。観光地として人気なこの島で、何か商いを始めてみませんか? 2022年に沖縄で多くの作品を手がける建築家へ依頼し建てられた、コンクリート打ち放しのスタイリッシュなビル。 建物が立つのは、宮古島の中で最も栄えている平良地区。数多くの飲食店がひしめき合う中、この場所は不思議と局地的に静かで落ち着いた、都会のオアシスのような場所とオーナーは言います。 1階には現代作家の新城大地郎氏と写真家石川直樹氏がディレクションする、カフェ併設のアートギャラリー「PALI GALLERY」が入居中。観光地としてのイメージが強い宮古島において、現代アートやカルチャーに触れられる希少な場所として、島内のみならず、島外からも人が集まる文化の交流地となっています。 屋根が設けられた半屋内のような屋上は、直近までオープンエアーが気持ち良い飲食店として使われていました。いずれか屋内スペースを増やしたいとなった時に、壁を立てて、2階として増築できるような設計となっていて、このスペースを改装して自らの住処としたり、宿泊施設として運用できるようにするのも一つの手かもしれません。 物件には南国らしい緑が生い茂る、広い中庭もついてきます。ここでは宮古島のユニークな人や店が出店するマルシェのようなイベントが定期的に開催され、人と人が出会い、新たなつながりが生まれる場所となっているそうです。 さらにこの庭に面する隣地にはレトロな平屋があり、宮古島で大人気のアジアンカフェ「ウエスヤ」が新たにそこで飲食店を始める予定。決して強制ではありませんが、できれば現在のように敷地の境界には塀を設けず、中庭を介して人の繋がりが生まれるような使い方ができれば良いなとのこと。 宮古島に魅せられ、いつかこの島で暮らしたい、商いを始めたい。そんな理想を描いていた方にぜひご検討いただけたら。 ※一部写真は竣工直後のもの |
![]() |
|
| 道路側から見た建物 photo:Kenta Hasegawa |
|
| 1階には現代作家新城大地郎氏と石川直樹氏がディレクションする「PALI GALLERY」が入居中 photo:Kenta Hasegawa |
|
| ギャラリーらしい無機質で洗練された空間 photo:Kenta Hasegawa |
|
| 大きな窓から明るい自然光が入る photo:Kenta Hasegawa |
|
|
| >>大きな地図で見る  |
| 価格 | 1億4,000万円 | 建物面積 | 88.46㎡ |
| 管理費 | なし | 修繕積立金 | なし |
| 所在地 | 沖縄県宮古島市平良字下里 | ||
| 交通 | 宮古空港 5.7㎞(車約12分) | ||
| 建物構造 | 鉄筋コンクリート造 1階建て | 所在階 | |
| 築年 | 2022年 | 土地権利 | 所有権 |
| 敷地面積 | 365.40㎡ | 都市計画 | 非線引き区域 |
| 用途地域 | 商業地域 | 建蔽率/容積率 | 80%/400% |
| その他費用 | 取引態様 | 媒介 | |
| 設備 | 上下水道/プロパンガス | ||
| 備考 | ペット可/地目:宅地/現況:居住中/引渡時期:相談/屋上テラス面積:88.46㎡/庭付き/1階・路面/シェア可/楽器演奏可/飲食店可 | ||
| 情報修正日時 | 2026年3月16日 | 情報更新予定日 | 2026年3月30日 |
あなたにおすすめの物件


