|
|
|||||||||||||||||||||
リズムを刻む、間の暮らし |
||||||||||||||||||||||
|
||||||||||||||||||||||
|
||||||||||||||||||||||
|
||||||||||||||||||||||
|
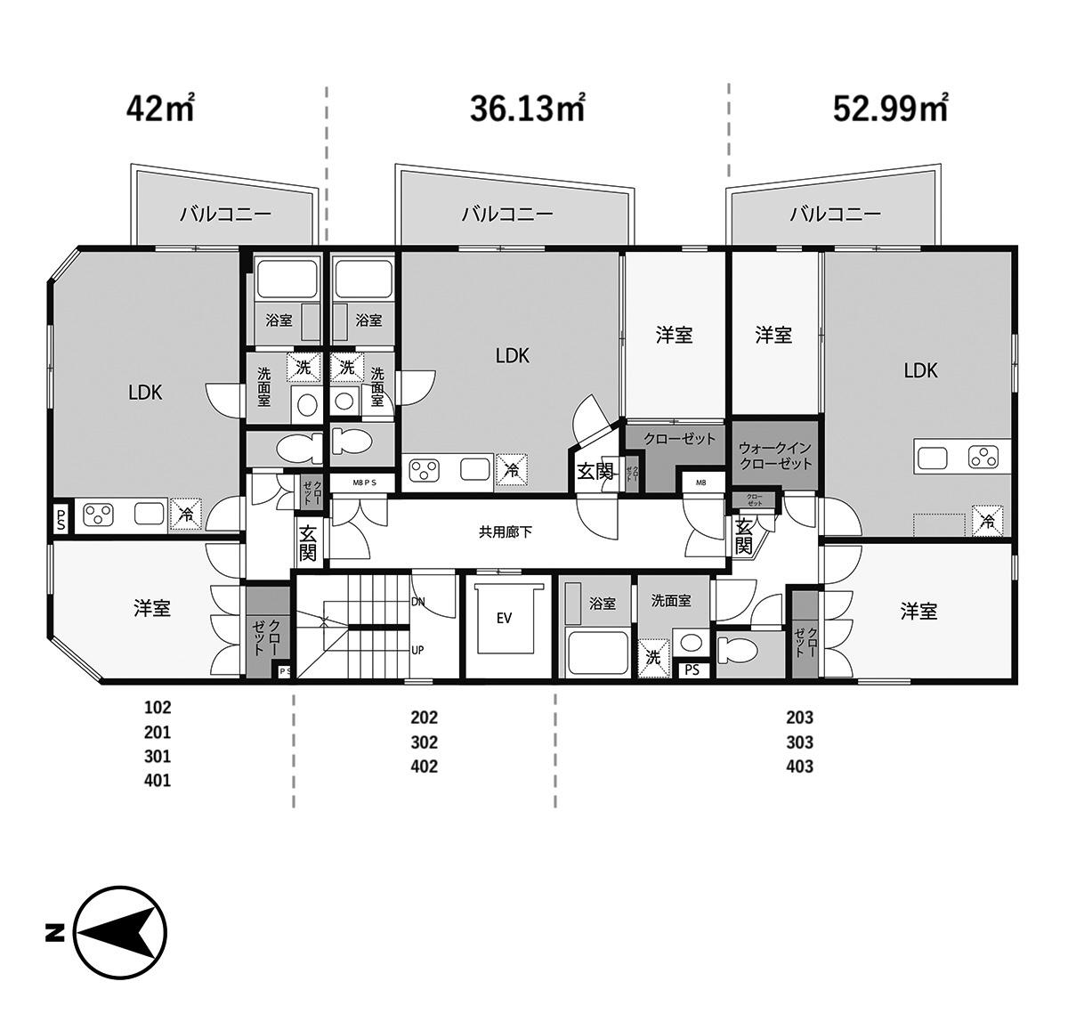
○賃料下がりました○ ○フリーレント1ヶ月付き○ 高円寺と中野。その両方を日常にできるポジションに、思わず目が留まるコンクリートの建物が現れました。 まず惹かれるのは、その表情。 動きのあるベランダの配置は、まるで静かな住宅街の中でリズムを刻んでいるかのよう。この動きが、単なるマンションではない個性を生んでいます。 室内へ入ると、そこにはシンプルでストイックな空気が。 天井は、艶感の残るコンクリートの打ちっぱなし。壁には素直に白いクロスを、床には落ち着いたグレーのタイルを選び、近しいトーンで統一されています。 そして、光の捉え方。 東向きの大きな開口部からは朝の光が存分に差し込み、さらに部屋の随所に配された小窓や、光を柔らかく通す曇りガラスのアクセント。光にも個性を持たせる工夫を設計しました。 間取りは3タイプ。クローゼットのサイズ感や、3口コンロのキッチン、デザインだけではなく、生活に寄り添うように使いやすさもしっかり確保されているのも嬉しい。 高円寺と中野で暮らし、遊び、このリズムのある部屋で自分に還る。 いいとこ取りな立地で、中央線のカルチャーを愛しつつも生活の拠点はあくまで静かに整えておきたい。そんなイメージを、さらりと叶えてくれそうです。 ▪︎募集条件▪︎ 全10区画 一律、管理費:5,000円 =========== ◯42㎡ (1LDK) 102 - 募集終了 201 - 募集終了 301 - 募集終了 401 - 募集終了 ◯36.13㎡ (1LDK) 202 - 募集終了 302 - 募集終了 402 - 募集終了 ◯52.99㎡ (2LDK) 203 - 賃料:208,000円 303 - 賃料:210,000円 403 - 賃料:212,000円 =========== ※掲載の図面は2階(201・202・203)のもの |
![]() |
|
| ベランダの配置にリズムを持たせた、動きのある外観がひときわ目を引きます |
|
| 203:白いクロスの壁に、天井はつるりとしたコンクリート打ちっぱなし。床にはグレーのフロアタイルを敷き、全体を落ち着いたトーンでまとめています |
|
| 203:主要採光部は東側。朝から気持ちのいい光を感じることができます |
|
| 203:周囲は戸建てやアパートが並ぶ住宅街です |
|
|
| 賃料 | 20万8,000~21万2,000円 | 専有面積 | 52.99㎡ |
| 敷金 | 1ヶ月 | 礼金 | 0.5ヶ月 |
| 償却 | なし | 管理費 | 5,000円 |
| 所在地 | 杉並区高円寺南 | ||
| 交通 |
中央線「高円寺」駅 徒歩9分 中央線「中野」駅 徒歩13分 丸ノ内線「東高円寺」駅 徒歩10分 |
||
| 建物構造 | 鉄筋コンクリート造 4階建て | 所在階 | 1,2,3,4階 |
| 築年 | 2026年 | 取引態様 | 媒介 |
| 設備 | エアコン/追いだき/浴室乾燥機/ウォシュレット/エレベーター/オートロック | ||
| 備考 | ペット不可/禁煙/駐輪場:無料(1台まで)/無料インターネット/保証会社利用必須(初回保証料:月支払い総額の50%、更新料:年額10,000円)/短期解約違約金:1年未満の場合、1ヶ月/新築/要火災保険契約 | ||
| 情報修正日時 | 2026年3月27日 | 情報更新予定日 | 2026年5月5日 |
あなたにおすすめの物件

