|
|
|
||||||||||||||||||||
上野桜木の立体長屋 |
||||||||||||||||||||||
|
||||||||||||||||||||||
|
||||||||||||||||||||||
|
||||||||||||||||||||||
|
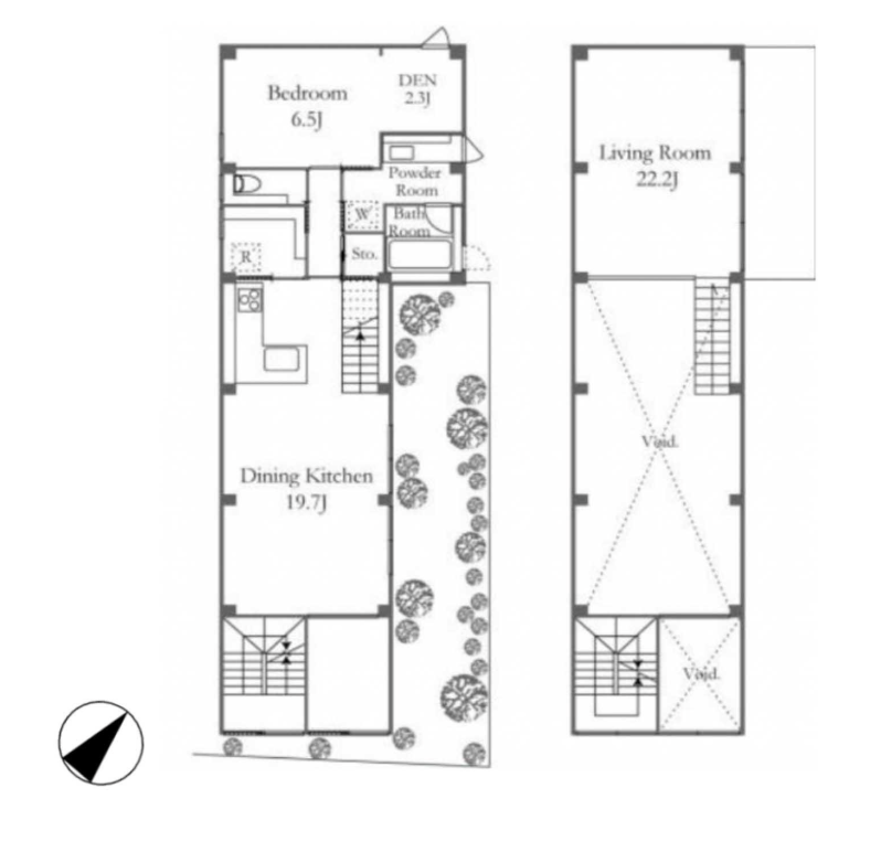
一棟貸しの宿を思わせる、賃貸住居とは思えないダイナミックな空間。住居としてはもちろん、住居兼用であればアトリエやギャラリー、オフィスとしての利用も相談可能です。 「上野恩賜公園」のほど近く、古い家屋が今なお残る、どこか懐かしい風情の上野桜木。この地で生まれ育ったオーナーの「町の雰囲気に馴染む家を残していきたい」という想いから、一軒の長屋が誕生しました。 吹き抜けの開放的な空間と、クローズドで落ち着いた個室の両方が備えられています。パブリックとプライベートが緩やかに共存する設計で、単なる住居というよりも事務所やアトリエを兼ねたSOHO利用のイメージがしやすい物件です。 建築的な特徴としては、防火性や断熱性といった安全性・快適性に配慮しながら、土や木などの自然素材を可能な限り取り入れている点が挙げられます。庭とバルコニーには石畳や植栽が施されており、この地の土壌を引き継ぎ、微生物を含む生命が自生できる環境を目指したデザインとなっているそうです。 周辺には、昭和13年築の建物を改装した複合施設「上野桜木あたり」や、町家を再生した「カヤバ珈琲」、銭湯をリノベーションしたギャラリー「SCAI THE BATHHOUSE」など、古き良き建築を活かした個性的な店舗が点在。上野の美術館や博物館も徒歩圏内です。 最寄り駅は鶯谷ですが、気候の良い日には公園を抜けて上野駅まで歩くルートもおすすめです。 ※住居兼事務所利用の場合、賃料等へ消費税。内容によっては敷金積み増しになる可能性あり ※写真の家具は付随しません |
![]() |
|
| 2階リビング |
|
| 建物外観 |
|
| 入口。今回募集は右半分の区画 |
|
| 入口兼サンルーム |
|
|
| 賃料 | 52万5,000円 | 専有面積 | 94.96㎡ |
| 敷金 | 1ヶ月 | 礼金 | 1ヶ月 |
| 償却 | なし | 管理費 | 25,000円 |
| 所在地 | 台東区上野桜木 | ||
| 交通 |
山手線・京浜東北線「鶯谷」駅 徒歩8分 各線「上野」駅 徒歩20分 |
||
| 建物構造 | 鉄骨造 3階建て | 所在階 | |
| 築年 | 2024年 | 取引態様 | 媒介 |
| 設備 | エアコン/IHコンロ3口/追いだき/浴室乾燥機/ウォシュレット/インターフォン | ||
| 備考 | ペット不可/定期借家契約(期間:2年間/再契約:相談)/募集戸数:2戸/保証会社加入必須(初回保証料:総賃料の50%〜、1年ごとに更新料:12,000円〜)/庭付き/住居兼事務所可(賃料等に消費税/用途によっては敷金積み増し有)/要火災保険契約 | ||
| 情報修正日時 | 2026年4月30日 | 情報更新予定日 | 2026年5月14日 |
あなたにおすすめの物件

