|
|
|
||||||||||||||||||||
心休まる白金別荘 |
||||||||||||||||||||||
|
||||||||||||||||||||||
|
||||||||||||||||||||||
|
||||||||||||||||||||||
|
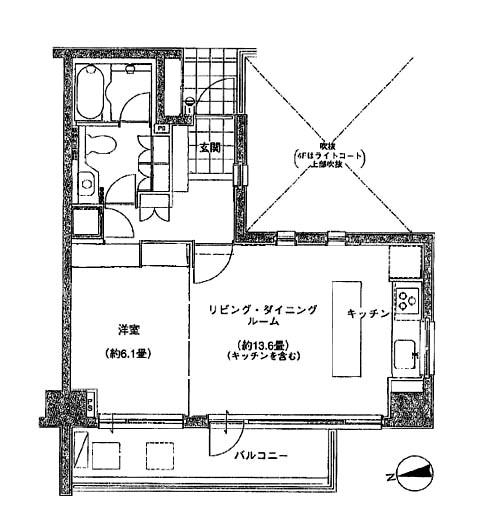
別荘といったら大袈裟かもしれませんが、窓の外に神社の緑を望み、ときには鳥のさえずりが聞こえ、心が休まりそうな穏やかな部屋。 場所は白金、紛れもない都心のマンションで、駅からアクセスのよい好立地にこの環境っていうのは、心憎いほどのもてなしです。 漆喰の壁と、質感を合わせたマットな無垢板のフローリング。寝室部分は床だけでなく、建具や天井まで無垢板に包まれて、緑の景色に映える山小屋のような雰囲気に、より一層別荘気分を味わえます。 アレルギー持ちのオーナー自身が住み始めるときに手を入れたこの部屋は、意匠的な雰囲気のよさもさることながら、実はできるかぎり化学物質を抑えた材料選びや施工にもなっているそうです。 バストイレなどの水まわりは玄関横にまとめ、その先のリビング・キッチン・寝室はオープンに使えるので、ワイドに繋がる窓面は開放感たっぷり。寝室は必要に応じて引戸で仕切れるようになっています。 都心居住が必須、でも家では忙しさを忘れ、心と体をしっかり休めて静かに過ごしたい。そんな大人におすすめしたい空間です。 地下鉄のほかに、渋谷-恵比寿-田町を繋ぐバスが近くを走っているので、通勤やお出かけにバス移動も使えるかもしれません。 ※喫煙不可 |
![]() |
|
| リビングとフルオープンで繋げられる寝室 |
|
| 寝室は天井まで木に包まれて山小屋の雰囲気に |
|
| 壁一面のクローゼット、引戸を閉めれば1LDKに |
|
| ワイドな窓から気持ちよく広がる緑の借景 |
|
|
| 賃料 | 24万円 | 専有面積 | 47.28㎡ |
| 敷金 | 2ヶ月 | 礼金 | 1ヶ月 |
| 償却 | なし | 管理費 | 賃料に含む |
| 所在地 | 港区白金 | ||
| 交通 | 南北線「白金高輪」駅 徒歩4分 | ||
| 建物構造 | 鉄骨鉄筋コンクリート造 13階建て | 所在階 | 4階 |
| 築年 | 2000年 | 取引態様 | 媒介 |
| 設備 | オートロック/エレベーター/宅配ボックス/エアコン/浴室乾燥機/ウォシュレット | ||
| 備考 | ペット不可/定期借家契約(期間:2年間/再契約:相談)/保証会社利用必須/要火災保険契約 | ||
| 情報修正日時 | 2026年3月30日 | 情報更新予定日 | 2026年4月14日 |
あなたにおすすめの物件


