新宿区北新宿の賃貸物件/素朴な佇まいの一軒家。開放感のあるお庭が出迎えてくれる
新宿区北新宿の賃貸物件/玄関からお部屋を見る。玄関がオープンで開放的なので人を招きやすい
新宿区北新宿の賃貸物件/いい雰囲気の玄関。写真のように小物を並べて、ギャラリースペースに
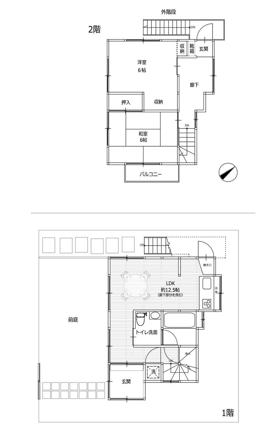
新宿区北新宿の賃貸物件/1階リビングは廊下も含めて約12.5帖の広さ
新宿区北新宿の賃貸物件/2階には6帖のお部屋が2つ並んでいます
新宿区北新宿の賃貸物件/和室の雰囲気も素敵。壁がヤマブキ色なのも可愛い
新宿区北新宿の賃貸物件/通りからくるとこのような感じで建物が待ち構えます
新宿区北新宿の賃貸物件/取り残された門扉がユニーク。開けるとコンクリート平板のアプローチが玄関まで続く
新宿区北新宿の賃貸物件/ガラス引き戸の玄関がお出迎え
新宿区北新宿の賃貸物件/玄関入ったところに水回りが集約
新宿区北新宿の賃貸物件/リビング、奥にキッチン
新宿区北新宿の賃貸物件/かわいい造作のキッチン
新宿区北新宿の賃貸物件/ラワン、タイル、ステンレスの素材使いがかわいい
新宿区北新宿の賃貸物件/キッチン奥に勝手口。その脇が冷蔵庫置き場
新宿区北新宿の賃貸物件/キッチンからリビングを見渡す。窓は南西向きで晴れていれば日が入ります
新宿区北新宿の賃貸物件/掃き出し窓越しに庭を見る
新宿区北新宿の賃貸物件/お庭。好みのかたちにアレンジしていくのもよい
新宿区北新宿の賃貸物件/1階の玄関入って右手に進むと2階に上がる階段が
新宿区北新宿の賃貸物件/渋い階段が待っています
新宿区北新宿の賃貸物件/階段をあると少し広めの廊下スペース
新宿区北新宿の賃貸物件/廊下に面して6帖の個室が2部屋並ぶ
新宿区北新宿の賃貸物件/床をグレーのプレーンな素材に張り替え、レトロな部分とのコントラストが可愛い洋室
新宿区北新宿の賃貸物件/ヤマブキ色の壁が可愛い和室。窓先にはレトロなバルコニー
新宿区北新宿の賃貸物件/バルコニーに出ると向かいには渋いアパート
新宿区北新宿の賃貸物件/昭和なアパート越しに新宿の高層ビルを眺める
新宿区北新宿の賃貸物件/南西側の眺望
新宿区北新宿の賃貸物件/2階にサブの玄関。外から2階に直接アプローチできる動線がユニーク
新宿区北新宿の賃貸物件/外観。左脇に2階に直接上がれるアプローチ、外階段
新宿区北新宿の賃貸物件/新しく交換されたばかりのトイレ、洗面、浴室
新宿区北新宿の賃貸物件/浴室は追いだき機能付き
新宿区北新宿の賃貸物件/玄関脇に扉で隠せる洗濯機置き場
新宿区北新宿の賃貸物件/お庭
新宿区北新宿の賃貸物件/コンクリート平板のアプローチが、もの寂しげで雰囲気がある

rent   NEW 住宅 オフィス 店舗・その他

副都心のタイムカプセル

 
賃料:
24万円
面積:
65.27㎡
所在地: 新宿区北新宿
交通: 丸ノ内線・都営大江戸線「中野坂上」駅 徒歩7分/丸ノ内線「西新宿」駅 徒歩10分
管理費 なし
敷 金 1ヶ月  礼金: 1ヶ月

大きなオフィスビルが立ち並ぶ副都心のすぐ脇に、こんなにも昭和の空気を色濃く残した一角があったとは。大通りから一本入ると、急に時間の流れが切り替わるような、不思議なエリア。「〇〇荘」と名のつくアパートがたくさん残っている場所です。


この建物もまた、かつては下宿所のようなつくりだったもの。今回のリノベーションでは、その記憶を消し去るのではなく、昭和の面影をほどよく残しながら、改装しています。


事務所や店舗としての利用も可能なので、ありきたりではない空気感のオフィスをつくりたい方や、レトロな建物の個性を生かしたショップを構えたい方には、ぐっとくるはず。アートスペースのような使い方も似合いそうです。改装についても事前相談のうえで可能なので、この場所ならではの世界観をじっくりつくり込んでいく楽しさもあります。


お風呂・キッチン・トイレが新しく交換されていて、きれいに整っていますので、住宅として使うことも可能です。ただ、LDKはややコンパクトなので、ソファとダイニングをしっかり分けるというよりは、大きめのテーブルを中心にして、食べる・くつろぐをゆるやかに兼ねるような暮らし方がしっくりきそう。2階には2つの個室が並んでいて、ルームシェアで使うのも楽しそうだなと思いました。


前庭はどこか開かれた雰囲気があり、2階へ上がる動線が内階段と外階段の2つあるのもユニーク。窓から空を見上げれば、空に向かってぐんとそびえる巨大なオフィスビル。いっぽう建物の両サイドには、昭和なアパートたちが向かい合うように建っています。その新旧のギャップも、この場所ならではの魅力として味わってもらえたら。


少しずつ姿を消しつつある昭和の忘れ形見を、令和のいまに、軽やかに、楽しく引き継いでいける方に出会えたらうれしいです。


賃料 24万円 専有面積 65.27㎡
敷金 1ヶ月 礼金 1ヶ月
償却 なし 管理費 なし
所在地 新宿区北新宿
交通 丸ノ内線・都営大江戸線「中野坂上」駅 徒歩7分
丸ノ内線「西新宿」駅 徒歩10分
建物構造 木造 2階建て 所在階 1-2階
築年 1978年 取引態様 媒介
設備 エアコン3基/IH2口コンロ/追いだき/ウォシュレット/モニター付きインターホン
備考 ペット不可/定期借家契約(期間:2年/再契約:相談)/室内禁煙/保証会社利用必須(【住居利用時】初回保証料:賃料の50%、月額保証料:月額670円、口座振替手数料:月額330円、【店舗事務所利用時】保証会社初回保証料:賃料の80%、年間保証料:賃料の10%、口座振替手数料:月額330円)/庭付き/バイク置場あり/住居兼事務所可/1階・路面/シェア可/楽器演奏可/要火災保険契約
情報修正日時 2026年3月22日 情報更新予定日 2026年4月6日
※掲載の情報が現状と異なる場合には、現状を優先するものとします。