横浜市神奈川区入江の賃貸物件/ワイドで開放的な開口部
横浜市神奈川区入江の賃貸物件/住み方によって部屋を分ける事も可能
横浜市神奈川区入江の賃貸物件/シンプルで使いやすそうなキッチン
横浜市神奈川区入江の賃貸物件/バルコニーには目隠しがあります
横浜市神奈川区入江の賃貸物件/シャープな外観
横浜市神奈川区入江の賃貸物件/エアコンは壁に埋め込まれているので、スッキリと収まっています
横浜市神奈川区入江の賃貸物件/玄関は広め
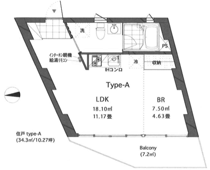
横浜市神奈川区入江の賃貸物件/水回りは一箇所にまとまっています
横浜市神奈川区入江の賃貸物件/窓付のユニットバス

rent   NEW 住宅

フレキシブルかつコンパクトなワンルーム

 
賃料:
10万6,900円
面積:
34.30㎡
所在地: 横浜市神奈川区入江
交通: 横浜線「大口」駅 徒歩6分/京浜東北線「新子安」駅 徒歩6分/京急本線「子安」駅 徒歩6分
管理費 5,000円
敷 金 1ヶ月  礼金: 1ヶ月

大口駅・新子安駅・子安駅の三つの駅から歩いて約6分。横浜線と京浜東北線、京急線と3路線が利用でき、東京や神奈川の主要エリアへのアクセスにも便利な場所に、小ぶりなデザイナーズを発見しました。


交通量の多い国道に近い物件なので、車の音を心配したのですが、防音がしっかりしているので室内に入るとほとんど気にならず、驚きました。


室内は、コンクリート打ち放しのいわゆるデザイナーズ物件。縦にも横にも移動できるラインカーテンが設置されているので広いワンルームとして、または途中で仕切ってベッドルームをつくったりと、フレキシブルに間取り変更が可能です。


開口部はワイドで明るく、バルコニー付き。バルコニーの柵は少し高めで、外からの目線にも配慮されており、ウッド調のダークブラウンが部屋の印象を引きしめています。キッチンやバスルームなどの水回りもキレイです。


コンビニやスーパー、スポーツジム等、周辺施設も近くて便利です。暮らしやすいカタチを探してみてください。

賃料 10万6,900円 専有面積 34.30㎡
敷金 1ヶ月 礼金 1ヶ月
償却 なし 管理費 5,000円
所在地 横浜市神奈川区入江
交通 横浜線「大口」駅 徒歩6分
京浜東北線「新子安」駅 徒歩6分
京急本線「子安」駅 徒歩6分
建物構造 鉄筋コンクリート造 4階建て 所在階 2階
築年 2009年 取引態様 媒介
設備 エアコン/IHキッチン/オートロック
備考 ペット不可/保証会社利用必須(初回保証料:月支払い総額の60%~)/高速インターネット無料/写真は前回募集時のものです/要火災保険契約
情報修正日時 2026年3月25日 情報更新予定日 2026年4月8日
※掲載の情報が現状と異なる場合には、現状を優先するものとします。