|
|
|||||||||||||||||||||
ちいさな貫禄 -新築戸建- |
||||||||||||||||||||||
|
||||||||||||||||||||||
|
||||||||||||||||||||||
|
||||||||||||||||||||||
|
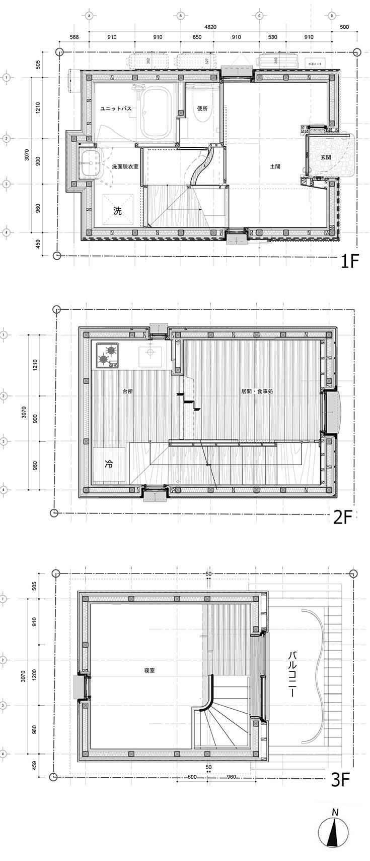
コンパクトですが、密度の濃い建築。「賃貸住宅」というより、小さな建築作品の中で暮らすような感覚に近いかもしれません。 設計を手がけたのは川口通正建築研究所。日本建築の趣や空間の美意識をぎゅっと詰め込んだ戸建てです。 まず目を引くのは外観。リシンの吹き付け仕上げの壁がザラザラとした質感をまとい、光を受けて奥行きのある陰影をつくっています。周囲の建物の中でも、一際目を引く雰囲気をまとった佇まいです。 建物は3階建てで、フロアごとに役割が分かれた構成。土間+1DKという少しユニークな間取りです。 1階は玄関を入ると雰囲気のある土間スペース。そしてもう一度玄関があり、そこから室内へと入るつくり。浴室・洗面・トイレなどの水回りはこのフロアにまとまっています。 2階はダイニングとキッチン。そして3階が寝室です。 内装も建築的な仕上がり。壁はリシンの吹き付けで、細かな凹凸が趣深く、床はオークの無垢材。手すりや扉なども木で丁寧に造作されていて、素材の質感を楽しめる空間です。 この雰囲気を活かして、商売の場所として使うのも面白そう。鍼灸などの予約制のサロンや、制作をしながら作品を展示販売するアトリエショップなども似合いそうだと思いました。 駅からは少し歩きますが、わざわざ訪れたくなる場所になりそう。最寄り駅は三ノ輪駅ですが、浅草駅からバスでアクセスするという手もあります。 住む場所としても、仕事や制作の拠点としても、面白く使っていただけそうな建物です。 |
![]() |
|
| ただならぬ雰囲気を感じさせる玄関まわり |
|
| 建物内は3層の空間に分かれています。こちらは2階のキッチン、ダイニング |
|
| キッチンも空間に馴染む木製のものを。温もりのある素材感を楽しめる空間です |
|
| こちらは3階の寝室。床はオークの無垢フローリングです |
|
|
| 賃料 | 17万8,000円 | 専有面積 | 39.56㎡ |
| 敷金 | 1ヶ月 | 礼金 | 1ヶ月 |
| 償却 | なし | 管理費 | なし |
| 所在地 | 台東区日本堤 | ||
| 交通 |
日比谷線「三ノ輪」駅 徒歩11分 常磐線・日比谷線・つくばエクスプレス「南千住」駅 徒歩13分 |
||
| 建物構造 | 木造 3階建て | 所在階 | 1-3階 |
| 築年 | 2025年 | 取引態様 | 媒介 |
| 設備 | エアコン2基/ガス2口コンロ/追いだき/浴室乾燥機 | ||
| 備考 | ペット不可/保証会社利用必須(初回保証料:賃料の50〜100%、年間保証料:10,000円)/事務所・店舗使用相談(別途消費税、敷金2ヶ月)/24時間サポート:月額1,100円/更新料:賃料1ヶ月分+更新事務手数料: 0.275ヶ月分/住居兼事務所可/1階・路面/新築/要火災保険契約/貸主インボイス未登録 | ||
| 情報修正日時 | 2026年3月14日 | 情報更新予定日 | 2026年5月22日 |
あなたにおすすめの物件

