大田区山王の賃貸物件/白い空間に無垢フローリングがアクセントになっている
大田区山王の賃貸物件/コンクリート板と砂利、配置された石が趣のあるアプローチ
大田区山王の賃貸物件/芝がきれいな中庭(植木は現在苗木に変わっています)
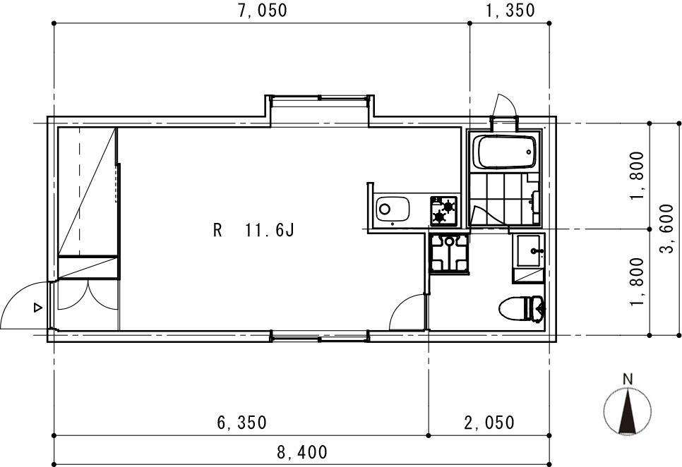
大田区山王の賃貸物件/11.6畳のワンルーム。窓に挟まれ、風通しがいい
大田区山王の賃貸物件/ベンチのような出窓がかわいい
大田区山王の賃貸物件/玄関。木製の玄関扉がオリジナリティがあって、かっこいい
大田区山王の賃貸物件/玄関には木製のフック(写真は別のお部屋のもの)
大田区山王の賃貸物件/玄関からお部屋を見て
大田区山王の賃貸物件/右手が収納。間口以上の幅があるので、約1間分の収納量が確保されています
大田区山王の賃貸物件/キッチンはガス2口コンロ。壁で囲まれていることにより、生活感が隠せて嬉しい
大田区山王の賃貸物件/左手に洗面台。トイレはウォシュレット付き
大田区山王の賃貸物件/お風呂。追いだき、浴室乾燥がついています
大田区山王の賃貸物件/洗濯機置き場の上には棚があり便利
大田区山王の賃貸物件/バルコニーはありませんが、室内にはハンガーパイプがあります。 天気を気にすることなく、室内でしっかりと洗濯物を干せる環境です◎
大田区山王の賃貸物件/フェンスが印象的で建物のアクセントになっている。中には郵便受けと宅配BOXスペースと駐輪場

rent   NEW 住宅

惹かれるアプローチ -ワンルーム-

 
賃料:
10万3,000円
面積:
30.24㎡
所在地: 大田区山王
交通: 京浜東北線「大森」駅 徒歩10分
管理費 4,000円
敷 金 0.5ヶ月  礼金: 1ヶ月

山王の住宅街に一際目を引く建物が。


コンクリート平板と砂利の引き込まれるようなアプローチに、ポツポツと配置された石が雰囲気をつくっています。奥に進むと爽やかな芝の中庭が広がり、入口とのコントラストが素敵です。


こちらのお部屋はワンルームの区画。コンパクトながら、効率のいい動線や設備のレイアウトによって居室が広く使えるようになっています。


白を基調とした空間の中に無垢フローリングや木のフックなどがアクセントのナチュラルな雰囲気が素敵です。


周囲はとても静かな住環境。その空気感を大切にしていただける方にお住まいいただけたらと思っています。


築が浅く、設備などきれいな状態。浴室乾燥機や宅配ボックスなどあったら助かる設備が揃っている感じもありがたいです。


凛とした空気を感じられる建物。シンプルながら心地のいいお部屋が待っています。


※写真は竣工時のもの

※3/14以降内見可能


41.85㎡の1LDKタイプ(2階)も現在募集中

惹かれるアプローチ


賃料 10万3,000円 専有面積 30.24㎡
敷金 0.5ヶ月 礼金 1ヶ月
償却 なし 管理費 4,000円
所在地 大田区山王
交通 京浜東北線「大森」駅 徒歩10分
建物構造 木造 2階建て 所在階 1階
築年 2020年 取引態様 媒介
設備 エアコン/ガス2口コンロ/浴室乾燥機/追いだき/ウォシュレット/宅配ボックス
備考 ペット不可/禁煙/保証会社利用必須(初回保証料:月支払い総額の50%、更新料:年額10,000円)/インターネット無料/解約予告2ヶ月前/短期違約金あり(1年未満の解約は、賃料・管理費の各1 ヶ月分)/駐輪場あり(月額300円)/要火災保険契約
情報修正日時 2026年3月7日 情報更新予定日 2026年3月21日
※掲載の情報が現状と異なる場合には、現状を優先するものとします。