|
|
|||||||||||||||||||||
神宮外苑の五つ星 |
||||||||||||||||||||||
|
||||||||||||||||||||||
|
||||||||||||||||||||||
|
||||||||||||||||||||||
|
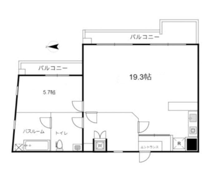
ビシッと洗練されたホテルのような空間。 左官仕上げのモルタルのようなクリーム色の床、塗装の壁。キッチンや一部の壁面はモールテックスで仕上げられ、建具にはガラス製のものが用いられていたりと、隅から隅までどこを見ても隙がありません。 部屋からの視界は良好。高層のオフィスビルも見えれば、神宮外苑のラグビー場やイチョウ並木も見えたりして、都会と自然が入り混じる眺望に非日常を感じます。 もちろん通常のオフィス利用も大歓迎なんですが、個人的にイメージができたのは、コレクションしてきた愛しの家具を並べて愛でることのできる書斎兼趣味の部屋。あるいは事務所で仕事に行き詰まったら気分転換に来れるような、リビングのようなサテライトオフィス。 そんな使い方、ぜいたく過ぎますかね? ※浴室は使用不可 |
![]() |
|
| 左官仕上げのモルタルのような床、塗装の壁面 |
|
| コレクションしてきた家具を並べてみたくなる雰囲気 |
|
| この余白に乾杯! |
|
| バルコニーからは神宮外苑ラグビー場やイチョウ並木が見えます |
|
|
| 賃料 | 41万8,000円(税込) | 専有面積 | 61.97㎡ |
| 敷金 | 3ヶ月 | 礼金 | 1ヶ月 |
| 償却 | なし | 管理費 | 22,000円(税込) |
| 所在地 | 港区北青山 | ||
| 交通 |
銀座線「外苑前」駅 徒歩2分 銀座線・半蔵門線・千代田線「表参道」駅 徒歩11分 |
||
| 建物構造 | 鉄骨鉄筋コンクリート造 12階建て | 所在階 | 12階 |
| 築年 | 1971年 | 取引態様 | 媒介 |
| 設備 | エアコン2基 | ||
| 備考 | ペット不可/定期借家契約(期間:2年間/再契約:相談)/保証会社利用必須(初回保証料:月支払い総額の100%、更新料:44,000円)/鍵交換費用:24,860円/要火災保険契約 | ||
| 情報修正日時 | 2026年2月28日 | 情報更新予定日 | 2026年5月2日 |
※掲載の情報が現状と異なる場合には、現状を優先するものとします。
あなたにおすすめの物件


