|
|
|
||||||||||||||||||||
クールなリビングとつながる庭 |
||||||||||||||||||||||
|
||||||||||||||||||||||
|
||||||||||||||||||||||
|
||||||||||||||||||||||
|
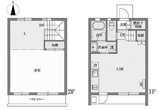
窓を開けると、室内からそのまま外へ繋がる。土に触れるもよし、野菜を育てるもよし、子どもやペットと転がるもよし。暮らしにもう一段の余白が生まれます。 洗濯物を干すだけの場所にしておくのはちょっともったいないですよね。夕焼けの日にはデッキに腰かけて、なんにもしない時間を過ごす。もちろん周囲への配慮は前提で。 駒込・田端駅から徒歩10分。JRがかつて社宅として建てた全8棟を、2013年にリノベーション。均質だった建物に今はきちんと個性が宿っています。 向かいにもきちんと距離があるので、日差しは素直に入り、風もまっすぐ抜けていきます。戸建てに近い感覚で、地面とつながって暮らせるのがうれしいところ。 雰囲気良くリノベされた内装は、モルタル仕上げの床と白い塗装の壁でクールな印象のリビング。天井はコンクリートを白く塗装で仕上げ、電気配線用の鉄管がいいアクセントになっています。 2階はどーんと大きい洋室。あえて広い空間のままにした、自由度のあるスペースです。家具やパーティションで寝室部分を区切るなど、好みの形に空間を分割してみてもいいかもしれません。 収納は階段下と2階のクローゼットのみ。ハンガーパイプなどは設置されていないので、ラックや棚などはご用意が必要です。 敷地内には、電車の見える公園。視界の抜けた先を新幹線や京浜東北線が走り抜けていきます。大人もつい足を止める風景です。 専用庭、戸建て感覚、そして大型犬まで相談可能という希少さ。静かな環境の中で、外とつながりながら暮らしたい人へ。 ※現在居住中につき内見不可(内見開始:4/18以降予定、ご入居:6月上旬以降予定) ※先行申し込み受付中 先行申込(先着順)→審査可決→内見(契約を進めるかの最終ご判断)→ご契約という流れです。 ※1枚目の写真以外は別部屋の近しい内容のものです。 |
![]() |
|
| 参考写真:リビングから出られる広々とした専用庭 |
|
| 参考写真:バルコニーからの眺め。前に高い建物がないため空が広い! |
|
| 戸建て感覚の2階建てテラスハウス。植栽は手入れ前のためモッサリしている状態 |
|
| 参考写真:2階はどーんと大きい開放的な空間 |
|
|
| 賃料 | 15万8,000円 | 専有面積 | 59.52㎡ |
| 敷金 | 1ヶ月 | 礼金 | 2ヶ月 |
| 償却 | なし | 管理費 | 7,000円 |
| 所在地 | 北区中里 | ||
| 交通 |
山手線「駒込」駅 徒歩13分 山手線・京浜東北線「田端」駅 徒歩10分 |
||
| 建物構造 | ブロック造 2階建て | 所在階 | 1-2階 |
| 築年 | 1974年 | 取引態様 | 媒介 |
| 設備 | エアコン2基/ガスコンロ3口/ウォシュレット/追いだき | ||
| 備考 | ペット相談可((小型犬・猫2匹まで、もしくは大型犬1匹まで、飼育の場合、敷金2ヶ月))/定期借家契約(期間:2年間/再契約:相談)/保証会社利用必須(初回保証料:月支払い総額の50%、月次保証料:月支払い総額の1.25%、年間保証料:10,000円)/鍵交換費用:22,000円/専用庭に自転車・バイク駐輪可/インターネット無料(iのぞみネット)※他社回線の引き込み不可/退去時の庭整備代:35,000円(税別)/庭付き/住居兼事務所可(敷金2ヶ月)/要火災保険契約 | ||
| 情報修正日時 | 2026年2月28日 | 情報更新予定日 | 2026年3月14日 |
あなたにおすすめの物件


