|
|
|
||||||||||||||||||
めぐり、抜けてゆく |
||||||||||||||||||||
|
||||||||||||||||||||
|
||||||||||||||||||||
|
||||||||||||||||||||
|
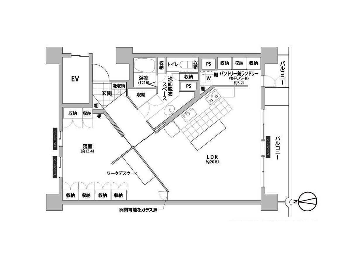
プライバシーは守りつつ、抜けのある空間。建築家が細部まで工夫を凝らし、ほんの少しの遊び心を忍ばせた住まいです。 玄関ホールからリビングへ進むにつれて、視界がすっとひらけていきます。ゆったりとしたリビングでソファに腰掛け、10階からの景色をぼんやりと眺める。それだけで仕事の疲れがほどけそうです。 そんなリビングをなるべく広く取るため、間取りはあえて斜めに切り分けられています。おかげで各部屋はやわらかくつながり、整然とした四角い間取りにはないユニークさも生まれました。 寝室もゆとりのあるつくり。十分な収納に加え、ワークスペースも確保されています。ほどよいこもり感がありながらも、光と風はきちんと抜けていく。家で仕事をする方には、頼もしい場所になりそうです。 リノベーションから約15年。フレンチパインの無垢床は飴色へと変化し、時間を重ねた味わいをまとっています。壁と天井は白塗装のシンプルな仕上げ。好みの家具やインテリアを並べて、ナチュラルな空間を自分色に染めていってもらえたら。 水回りのつくりは少し特徴的。まず目を引くのは、のびのびと使える洗面台。2、3人並んで朝の支度ができそうな余裕があります。 浴室と洗濯機置き場が離れている点は、人によっては気になるかもしれません。でもそのぶん洗濯機周りの生活感は隠せますし、物干しの動線はスムーズ。慣れてしまえば、合理的だと感じる方もいそうです。 都立大学駅からマンションへは、緑道沿いを南へ歩いて10分もかからない距離。駅前にスーパーがあり、近くには中根公園も。利便性と穏やかさ、そのどちらも手に入る物件です。 ペットの飼育が可能ですし、駐車場も比較的手ごろに利用できます。相棒や愛車とともに暮らせるのも、うれしいポイントですね。 |
![]() |
|
| ベランダからの景色 |
|
| リビングを広く取るために、斜めに切り分けられた間取り。隅がガラス扉になっていて、風と光が抜けるようになっている |
|
| 寝室。収納は十分ですし、ワークスペースもあります |
|
| 周辺の建物より、ひときわ高いレトロマンション |
|
|
| 価格 | 8,450万円 | 専有面積 | 80.45㎡ |
| 管理費 | 17,300円 | 修繕積立金 | 23,200円 |
| 所在地 | 目黒区平町 | ||
| 交通 |
東急東横線「都立大学」駅 徒歩8分 東急大井町線・東急目黒線「大岡山」駅 徒歩15分 |
||
| 建物構造 | 鉄骨鉄筋コンクリート造 13階建て | 所在階 | 10階 |
| 築年 | 1972年 | 土地権利 | 所有権 |
| 敷地面積 | 2,938.84㎡ | 都市計画 | 市街化区域 |
| 用途地域 | 第一種中高層住居専用地域 | 建蔽率/容積率 | 60%/200% |
| その他費用 | 取引態様 | 媒介 | |
| 設備 | エレベーター | ||
| 備考 | ペット可(小型犬または猫一匹まで)/地目:宅地/施工会社:鹿島建設株式会社/管理会社:伊藤忠アーバンコミュニティ株式会社/管理形態:全部委託(日勤)/総戸数:78戸/バルコニー面積:11.4㎡/現況:居住中/引渡時期:相談/駐輪場あり(空きあり、年額12,000円)/駐車場あり(月額7,000円) | ||
| 情報修正日時 | 2026年2月22日 | 情報更新予定日 | 2026年3月8日 |
あなたにおすすめの物件


